Offers over
£135,000
Land for saleLund Close, Barnsley S71
1 bath
Freehold
About this property
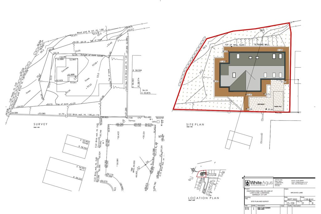
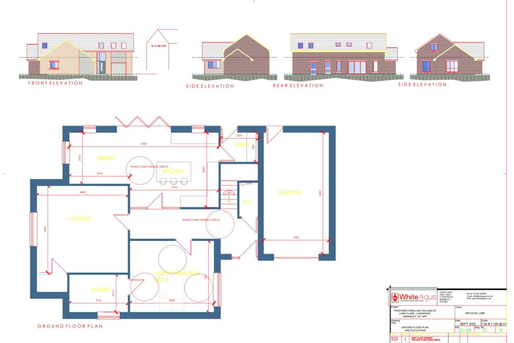
Land with planning permission
Perfect for investors
Freehold
Starting bids £140,000
Land with Planning Permission for Dormer Bungalow
A fantastic opportunity to acquire a plot of land with full planning permission granted for a substantial dormer bungalow. Situated in a desirable location, this site offers the chance to build a modern, bespoke home tailored to your own needs and lifestyle.
The approved plans provide for a spacious and well-designed layout, with modern living on the ground floor and three large bedrooms and a family bathroom upstairs. One of the upstairs bedrooms could be divided to create a fourth bedroom if desired, offering great flexibility for growing families or home working.
This is not a typical downsizer’s property - the proposed bungalow is generously proportioned, both in footprint and layout, making it ideal for those seeking the comfort of single-level living with the space of a large family home. We recommend reviewing the full plans and comparing to neighbouring homes and bungalows to fully appreciate the size and scope of this exceptional opportunity.
Located close to local amenities, schools, and excellent transport links, the site provides both convenience and the potential for a truly stunning new home.
Opportunities like this are rare – whether you’re an individual looking to create your dream property or a developer seeking your next project, this land with planning permission is not to be missed.
Property Ownership Information
Tenure
Freehold
Council Tax Band
Ask agent
Property Description Disclaimer
This is a general description of the property only, and is not intended to constitute part of an offer or contract. It has been verified by the seller(s), unless marked as "draft". Purplebricks conducts some valuations online and some of our customers prepare their own property descriptions, so if you decide to proceed with a viewing or an offer, please note this information may have been provided solely by the vendor, and we may not have been able to visit the property to confirm it. If you require clarification on any point then please contact us, especially if you’re traveling some distance to view. All information should be checked by your solicitor prior to exchange of contracts.
Successful buyers will be required to complete anti-money laundering and proof of funds checks. Our partner, Lifetime Legal Limited, will carry out the initial checks on our behalf. The current non-refundable cost is £80 inc. VAT per offer. You’ll need to pay this to Lifetime Legal and complete all checks before we can issue a memorandum of sale. The cost includes obtaining relevant data and any manual checks and monitoring which might be required, and includes a range of benefits. Purplebricks will receive some of the fee taken by Lifetime Legal to compensate for its role in providing these checks.
A fantastic opportunity to acquire a plot of land with full planning permission granted for a substantial dormer bungalow. Situated in a desirable location, this site offers the chance to build a modern, bespoke home tailored to your own needs and lifestyle.
The approved plans provide for a spacious and well-designed layout, with modern living on the ground floor and three large bedrooms and a family bathroom upstairs. One of the upstairs bedrooms could be divided to create a fourth bedroom if desired, offering great flexibility for growing families or home working.
This is not a typical downsizer’s property - the proposed bungalow is generously proportioned, both in footprint and layout, making it ideal for those seeking the comfort of single-level living with the space of a large family home. We recommend reviewing the full plans and comparing to neighbouring homes and bungalows to fully appreciate the size and scope of this exceptional opportunity.
Located close to local amenities, schools, and excellent transport links, the site provides both convenience and the potential for a truly stunning new home.
Opportunities like this are rare – whether you’re an individual looking to create your dream property or a developer seeking your next project, this land with planning permission is not to be missed.
Property Ownership Information
Tenure
Freehold
Council Tax Band
Ask agent
Property Description Disclaimer
This is a general description of the property only, and is not intended to constitute part of an offer or contract. It has been verified by the seller(s), unless marked as "draft". Purplebricks conducts some valuations online and some of our customers prepare their own property descriptions, so if you decide to proceed with a viewing or an offer, please note this information may have been provided solely by the vendor, and we may not have been able to visit the property to confirm it. If you require clarification on any point then please contact us, especially if you’re traveling some distance to view. All information should be checked by your solicitor prior to exchange of contracts.
Successful buyers will be required to complete anti-money laundering and proof of funds checks. Our partner, Lifetime Legal Limited, will carry out the initial checks on our behalf. The current non-refundable cost is £80 inc. VAT per offer. You’ll need to pay this to Lifetime Legal and complete all checks before we can issue a memorandum of sale. The cost includes obtaining relevant data and any manual checks and monitoring which might be required, and includes a range of benefits. Purplebricks will receive some of the fee taken by Lifetime Legal to compensate for its role in providing these checks.
Mortgage calculator
Monthly repayment
£675 per month
Whole of market comparison
70+ lenders and 10,000+ products
The monthly repayments provided are estimates and should be used as a guide only. The actual amount you can borrow will depend on your personal financial situation and subject to a full application. For a more precise estimate, please use the Mojo mortgage calculator. Your home or property may be repossessed if you do not keep up repayments on your mortgage.



.png)