Guide price
£585,000
4 bed end terrace house for saleCravan Avenue, Feltham, Middlesex TW13
4 beds
1 bath
2 receptions
Freehold
About this property
Immaculately presented
Extended to side
Driveway parking
Bonus boarded loft room
Garage & summer house to rear
Generously sized garden
An immaculately presented, four-bedroom end of terrace home, offering generous living space and A fantastic rear garden, situated on A popular development close to feltham high street.
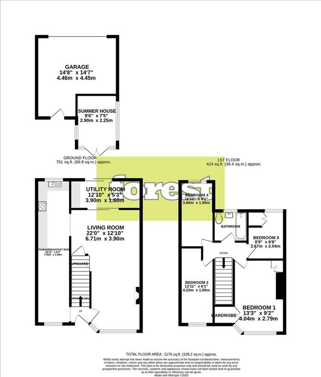
Entrance door: To;
hallway: Stairs to first floor, doors to;
living room: 22 x 12.10 (6.71 x 3.91m), Wood laminate floor, double glazed window, radiator, electric fire, understairs storage cupboard, archway to;
kitchen: 25.11 x 6.1 (7.9 x 1.85m), Double glazed windows, radiator, range of base and eye level units, roll top laminated worksurfaces, one and a half bowl sink and drainer with mixer tap, integral dishwasher, electric oven and gas hob with extractor over, space for fridge/freezer, tiled splashback, tiled floor.
Conservatory/utility: 12.10 x 5.3 (3.91 x 1.6m), Double glazed sliding doors to garden, base and eye level units, laminated worksurfaces, space and plumbing for washing machine and further appliances, radiator.
First floor landing: Doors to;
bedroom 1: 13.3 x 9.2 (4.04 x 2.79m), Double glazed window, radiator, built in wardrobes.
Bedroom 2: 13.11 x 6.1 (4.24 x 1.85m), Double glazed window, radiator.
Bedroom 3: 8.9 x 6.8 (2.67 x 2.03m), Double glazed window, radiator, cupboard, loft hatch and ladder to boarded loft room.
Bedroom 4: 11.10 x 6.1 (3.61 x 1.85m), Double glazed window, radiator.
Bathroom: Double glazed frosted window, three-piece suite comprising of panel enclosed bath with mixer tap and shower over, low level W.C., vanity wash hand basin, towel rail, fully tiled.
Outside:
Rear garden: Patio area leading to lawn, well maintained hedging, various shrubs and trees.
Garage: 14.8 x 14.7 (4.47 x 4.45m), Up and over door to rear access road.
Summer house: 9.6 x 7.5 (2.9 x 2.26m), UPVC double glazed window and double doors.
Council tax band: C - £1854 p.a.
Energy performance certificate rating: C
total floor area: 85 Sq. Mtrs.
Stamp duty payable: £19,250
£48,500 (If the purchase results in owning two or more properties).
Viewing: By appointment through this office only on . We are open Monday to Friday 9.00am till 6.00pm and Saturday 9.00am till 4.00pm.
Property misdescriptions act: For clarification, we wish to inform prospective purchasers that we have not carried out a detailed survey, nor tested the services, appliances and specific fittings for this property. Your solicitor should check any rights of way or planning permission for any extensions which may have been carried out.
Entrance door: To;
hallway: Stairs to first floor, doors to;
living room: 22 x 12.10 (6.71 x 3.91m), Wood laminate floor, double glazed window, radiator, electric fire, understairs storage cupboard, archway to;
kitchen: 25.11 x 6.1 (7.9 x 1.85m), Double glazed windows, radiator, range of base and eye level units, roll top laminated worksurfaces, one and a half bowl sink and drainer with mixer tap, integral dishwasher, electric oven and gas hob with extractor over, space for fridge/freezer, tiled splashback, tiled floor.
Conservatory/utility: 12.10 x 5.3 (3.91 x 1.6m), Double glazed sliding doors to garden, base and eye level units, laminated worksurfaces, space and plumbing for washing machine and further appliances, radiator.
First floor landing: Doors to;
bedroom 1: 13.3 x 9.2 (4.04 x 2.79m), Double glazed window, radiator, built in wardrobes.
Bedroom 2: 13.11 x 6.1 (4.24 x 1.85m), Double glazed window, radiator.
Bedroom 3: 8.9 x 6.8 (2.67 x 2.03m), Double glazed window, radiator, cupboard, loft hatch and ladder to boarded loft room.
Bedroom 4: 11.10 x 6.1 (3.61 x 1.85m), Double glazed window, radiator.
Bathroom: Double glazed frosted window, three-piece suite comprising of panel enclosed bath with mixer tap and shower over, low level W.C., vanity wash hand basin, towel rail, fully tiled.
Outside:
Rear garden: Patio area leading to lawn, well maintained hedging, various shrubs and trees.
Garage: 14.8 x 14.7 (4.47 x 4.45m), Up and over door to rear access road.
Summer house: 9.6 x 7.5 (2.9 x 2.26m), UPVC double glazed window and double doors.
Council tax band: C - £1854 p.a.
Energy performance certificate rating: C
total floor area: 85 Sq. Mtrs.
Stamp duty payable: £19,250
£48,500 (If the purchase results in owning two or more properties).
Viewing: By appointment through this office only on . We are open Monday to Friday 9.00am till 6.00pm and Saturday 9.00am till 4.00pm.
Property misdescriptions act: For clarification, we wish to inform prospective purchasers that we have not carried out a detailed survey, nor tested the services, appliances and specific fittings for this property. Your solicitor should check any rights of way or planning permission for any extensions which may have been carried out.
Mortgage calculator
Monthly repayment
£2,926 per month
Whole of market comparison
70+ lenders and 10,000+ products
The monthly repayments provided are estimates and should be used as a guide only. The actual amount you can borrow will depend on your personal financial situation and subject to a full application. For a more precise estimate, please use the Mojo mortgage calculator. Your home or property may be repossessed if you do not keep up repayments on your mortgage.



.png)