Guide price
£75,000
Land for saleLand At Meadowbrook, Off Durranhill Road, Carlisle, Cumbria CA1
Auction
About this property
For sale by auction on Thursday, 23 Oct 2025 at 12:00
Venue: The Halston Hotel, 20-34 Warwick Road • CA1 1AB
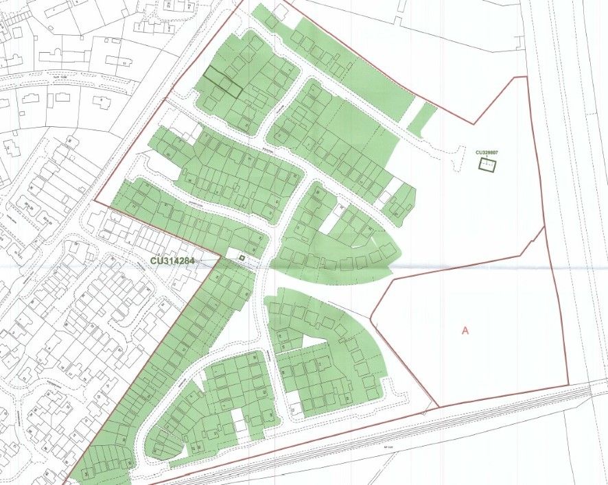
Potential development land
The site extends overall to approximately 4.1 acres and is situated off Rufus Road on the easterly outskirts of the City with easy access to the M6 at junction 43. It is marked A on the plan.
The site is allocated for residential development (U18) in the Cumberland Council local plan for 150 units, however Taylor Wimpey has already delivered 198 units on their Phase 1 scheme directly to the East which is part of the same allocation.
Taylor Wimpey previously submitted a planning application for 15 units on the site however this application was not determined and has now been finally disposed.
Interested parties should make their own enquiries to Cumberland Council regarding their proposed use.
What3words location ///sample.punchy.hooked
Additional Fees
Administration Charge - 1.2% inc VAT of the purchase price, subject to a minimum of £1500 inc VAT, payable on exchange of contracts.
Please see the legal pack for any disbursements listed that may become payable by the purchaser on completion.
Price Information
* Guides are provided as an indication of each seller's minimum expectation. They are not necessarily figures which a property will sell for and may change at any time prior to the auction. Each property will be offered subject to a Reserve (a figure below which the Auctioneer cannot sell the property during the auction) which we expect will be set within the Guide Range or no more than 10% above a single figure Guide.
Additional Fees Information
Please be aware there may be additional fees payable on top of the final sale price. This includes and are not limited to administration charges and buyer's premium fees payable on exchange, and disbursements payable on completion. Please ensure you check the property information page for a list of any relevant additional fees as well as reading the legal pack for any disbursements.
Venue: The Halston Hotel, 20-34 Warwick Road • CA1 1AB
Potential development land
The site extends overall to approximately 4.1 acres and is situated off Rufus Road on the easterly outskirts of the City with easy access to the M6 at junction 43. It is marked A on the plan.
The site is allocated for residential development (U18) in the Cumberland Council local plan for 150 units, however Taylor Wimpey has already delivered 198 units on their Phase 1 scheme directly to the East which is part of the same allocation.
Taylor Wimpey previously submitted a planning application for 15 units on the site however this application was not determined and has now been finally disposed.
Interested parties should make their own enquiries to Cumberland Council regarding their proposed use.
What3words location ///sample.punchy.hooked
Additional Fees
Administration Charge - 1.2% inc VAT of the purchase price, subject to a minimum of £1500 inc VAT, payable on exchange of contracts.
Please see the legal pack for any disbursements listed that may become payable by the purchaser on completion.
Price Information
* Guides are provided as an indication of each seller's minimum expectation. They are not necessarily figures which a property will sell for and may change at any time prior to the auction. Each property will be offered subject to a Reserve (a figure below which the Auctioneer cannot sell the property during the auction) which we expect will be set within the Guide Range or no more than 10% above a single figure Guide.
Additional Fees Information
Please be aware there may be additional fees payable on top of the final sale price. This includes and are not limited to administration charges and buyer's premium fees payable on exchange, and disbursements payable on completion. Please ensure you check the property information page for a list of any relevant additional fees as well as reading the legal pack for any disbursements.



.png)