£299,950
4 bed maisonette for saleCrabtree Lane, Lancing BN15
4 beds
1 bath
1 reception
EPC Rating: E
Leasehold
About this property
We have keys for viewings, call to book an appointment.
Producing immediate income of £2,320 pcm.
Avards Estate Agents are pleased to present this charming four-bedroom maisonette located on the sought-after Crabtree Lane in Lancing. Currently operating as a House in Multiple Occupation (HMO), this property generates an impressive rental income of £2,320 per calendar month, making it an excellent investment opportunity.
The maisonette is well-situated, with a delightful array of shops nearby, and is conveniently within walking distance to the high street and Lancing train station. This location offers excellent transport links to Brighton, Gatwick Airport, and London, making it ideal for commuters and those who enjoy the vibrancy of city life.
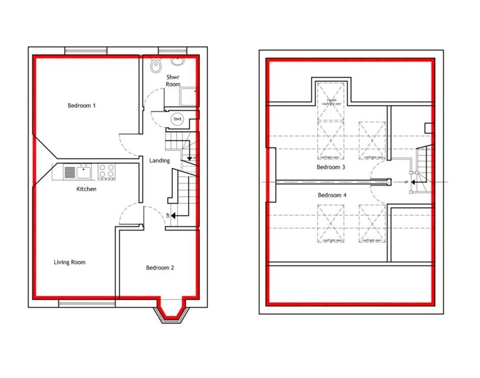
The accommodation is thoughtfully arranged over two floors. On the first floor, you will find a welcoming landing that leads to a spacious living area, which seamlessly integrates with a modern kitchen. This floor also features two comfortable bedrooms and a contemporary shower room. Ascending to the second floor, you will discover two additional bedrooms, providing ample space for family or guests.
Whether you are looking for a lucrative investment or a lovely family home, this maisonette offers versatility and convenience in a desirable location. Do not miss the chance to view this property, which is ready for immediate occupancy or continued rental.
First Floor
Landing
Living/Modern Kitchen Area
Bedroom
Bedroom
Second Floor
Bedroom
Bedroom
Disclaimer
Under the terms of the Estate Agency Act 1979 (section 21) please note that the Vendor of this property has an affiliation or connection with Avard Estate Agents.
All interested parties must verify accuracy with your solicitor, your solicitor also must verify lease and tenure information, where the property has been extended/converted, planning/building regulations consents and fixtures and fittings. All dimensions are approximate and quoted for guidance only as are floor plans which are not to scale and their accuracy cannot be confirmed. The information provided about this property does not constitute or form part of an offer or contract, nor maybe it be regarded as representations. Reference to appliances and/or services does not imply that they are necessarily in working order or fit for the purpose.
These particulars are believed to be correct, but their accuracy is not guaranteed. They do not form part of any contract.
Producing immediate income of £2,320 pcm.
Avards Estate Agents are pleased to present this charming four-bedroom maisonette located on the sought-after Crabtree Lane in Lancing. Currently operating as a House in Multiple Occupation (HMO), this property generates an impressive rental income of £2,320 per calendar month, making it an excellent investment opportunity.
The maisonette is well-situated, with a delightful array of shops nearby, and is conveniently within walking distance to the high street and Lancing train station. This location offers excellent transport links to Brighton, Gatwick Airport, and London, making it ideal for commuters and those who enjoy the vibrancy of city life.
The accommodation is thoughtfully arranged over two floors. On the first floor, you will find a welcoming landing that leads to a spacious living area, which seamlessly integrates with a modern kitchen. This floor also features two comfortable bedrooms and a contemporary shower room. Ascending to the second floor, you will discover two additional bedrooms, providing ample space for family or guests.
Whether you are looking for a lucrative investment or a lovely family home, this maisonette offers versatility and convenience in a desirable location. Do not miss the chance to view this property, which is ready for immediate occupancy or continued rental.
First Floor
Landing
Living/Modern Kitchen Area
Bedroom
Bedroom
Second Floor
Bedroom
Bedroom
Disclaimer
Under the terms of the Estate Agency Act 1979 (section 21) please note that the Vendor of this property has an affiliation or connection with Avard Estate Agents.
All interested parties must verify accuracy with your solicitor, your solicitor also must verify lease and tenure information, where the property has been extended/converted, planning/building regulations consents and fixtures and fittings. All dimensions are approximate and quoted for guidance only as are floor plans which are not to scale and their accuracy cannot be confirmed. The information provided about this property does not constitute or form part of an offer or contract, nor maybe it be regarded as representations. Reference to appliances and/or services does not imply that they are necessarily in working order or fit for the purpose.
These particulars are believed to be correct, but their accuracy is not guaranteed. They do not form part of any contract.
More information
Tenure
Leasehold (123 years)
Service charge
Council tax band
Ground rent
Ground rent date of next review



.png)