Guide price
£200,000
Land for saleKing Edwards Road, Barking IG11
EPC Rating: D
Sold STC
Freehold
About this property
Sold by green lane residential
Guide Price £200,000
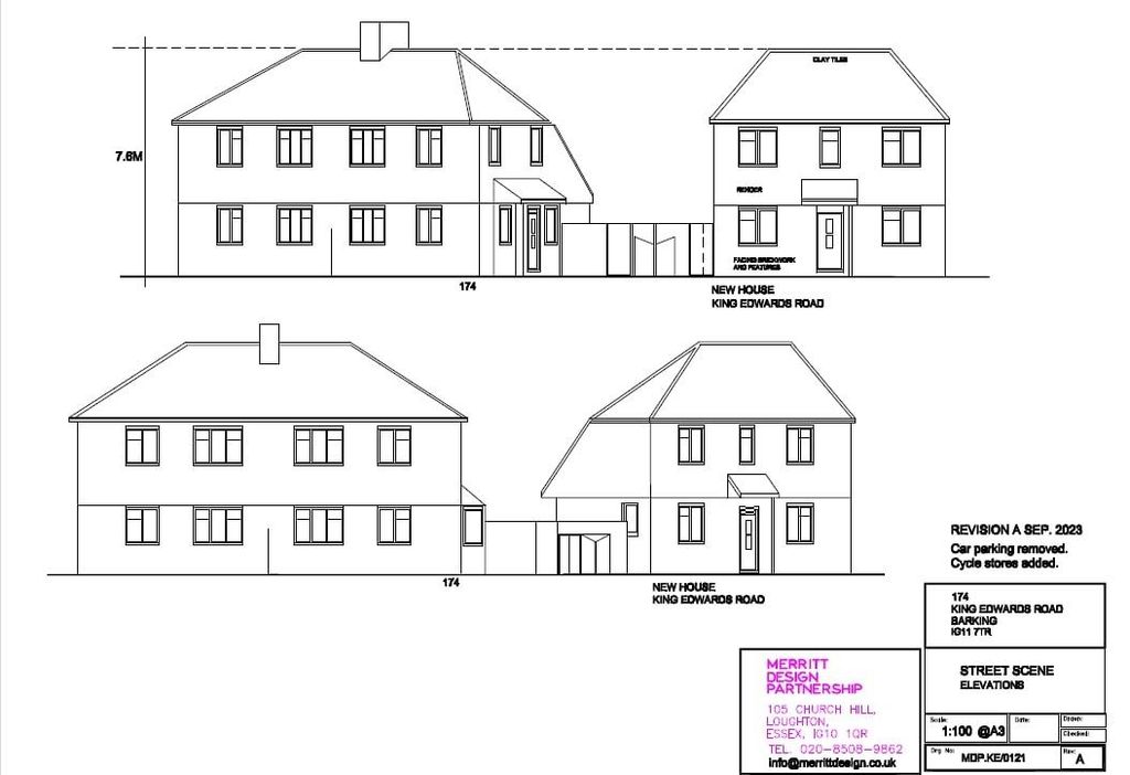
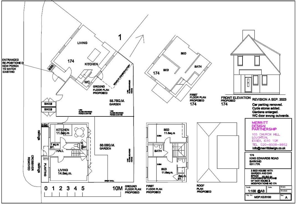
Full planning permission granted for a detached two-bedroom, two-bathroom house
Attractive double-fronted design with central front door
Thoughtfully designed layout offering spacious, modern living
Excellent transport links nearby
Walking distance to local shops, schools, and amenities
Located in a quiet residential close with green spaces nearby
Perfect for self-builders, developers, or buyers wanting to create their dream home
Rare opportunity in an established and sought-after location
Your award-winning local agents, Green Lane Residential, are pleased to offer this rare opportunity to acquire a prime building plot with full planning permission for a stylish, detached two-bedroom, two-bathroom home.
Designed with a double-fronted layout and a central front door, the approved plans offer a well-balanced and attractive frontage that complements the surrounding residential architecture.
Situated in a highly sought-after residential close near Barking Town Centre, this plot benefits from excellent local amenities, transport links, schools, and green spaces - making it an ideal location for both end users and investors alike.
Opportunities to build in such a central, established area are few and far between. Whether you're a self-builder, developer, or buyer looking to create your dream home, this is a plot not to be missed.
Designed with a double-fronted layout and a central front door, the approved plans offer a well-balanced and attractive frontage that complements the surrounding residential architecture.
Situated in a highly sought-after residential close near Barking Town Centre, this plot benefits from excellent local amenities, transport links, schools, and green spaces - making it an ideal location for both end users and investors alike.
Opportunities to build in such a central, established area are few and far between. Whether you're a self-builder, developer, or buyer looking to create your dream home, this is a plot not to be missed.



.png)