Offers over
£1,000,000
(£167/sq. ft)
Land for saleChurch Lane, Ardingly RH17
6,000 sq. ft
Just added
Freehold
About this property
Plot of land
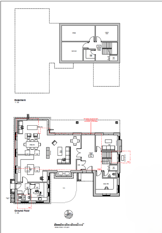
Planning permission for a four bedroom three storey dwelling house
Planning permission granted ref: DM/232282 for a detached four bedroom, three storey dwelling house (plus a basement) together with a detached two storey garage. (Garage below ground level) with home office over. Landscaping, pool and greenhouse.
Outside
Directions: Continue to the very end of Church Lane, Ardingly on to the uneven road, the entrance is on the left
Situation
Set in a stunning and hugely popular location between Ardingly and Lindfield and 3.9 miles from Haywards Heath Station. Ardingly has a village shop and an excellent bakery and Lindfield, in addition to excellent small shops also offers an extensive range of local facilities including a chemist, church, public houses, health centre and a supermarket. A wider range of facilities including a mainline station with fast and regular services to London (Victoria/London Bridge accessible within 45 mins) can be found in Haywards Heath. The M23 is just 8 miles away with access to the M25 and the rest of the motorway network, and airports at Gatwick and Heathrow.
Property Ref Number:
Ham-61433
Additional Information
Agents Note: There are restrictive covenants on the land, please contact Hamptons for details.
Outside
Directions: Continue to the very end of Church Lane, Ardingly on to the uneven road, the entrance is on the left
Situation
Set in a stunning and hugely popular location between Ardingly and Lindfield and 3.9 miles from Haywards Heath Station. Ardingly has a village shop and an excellent bakery and Lindfield, in addition to excellent small shops also offers an extensive range of local facilities including a chemist, church, public houses, health centre and a supermarket. A wider range of facilities including a mainline station with fast and regular services to London (Victoria/London Bridge accessible within 45 mins) can be found in Haywards Heath. The M23 is just 8 miles away with access to the M25 and the rest of the motorway network, and airports at Gatwick and Heathrow.
Property Ref Number:
Ham-61433
Additional Information
Agents Note: There are restrictive covenants on the land, please contact Hamptons for details.
Mortgage calculator
Monthly repayment
£5,002 per month
Whole of market comparison
70+ lenders and 10,000+ products
The monthly repayments provided are estimates and should be used as a guide only. The actual amount you can borrow will depend on your personal financial situation and subject to a full application. For a more precise estimate, please use the Mojo mortgage calculator. Your home or property may be repossessed if you do not keep up repayments on your mortgage.
More information
Tenure
Freehold
Council tax band
The Council Tax Band of the Property is currently unknown.



.png)