£1,550,000
4 bed detached house for saleHowe Drive, Beaconsfield, Buckinghamshire HP9
4 beds
2 baths
4 receptions
EPC Rating: E
Chain free
Freehold
About this property
Close to Train Station
Town Centre Location
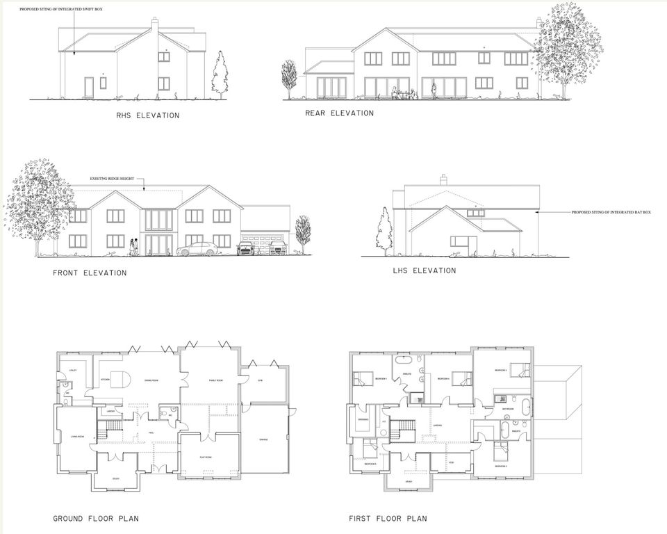
Two storey rear and front/single storey rear/first floor side extensions granted (pl/24/0033/fa)
Two brand new detached houses replacing existing house granted (pl/25/0007/fa)
Wide westerly facing rear garden
Superb sought after location
A detached house, enjoying A large westerly plot, which benefits from planning permissions granted for extending the existing house, or knocking down for two brand new detached houses
Situated in a sought after quiet location a detached house, enjoying a wide westerly facing rear garden, benefitting from planning permissions granted for:
• extending the existing house substantially (pl/24/0033/fa) to
circa 5,315 sq ft, or
• two brand new detached houses (pl/25/0007/fa).
The new houses are circa 2496 square feet (2281 sq ft house plus 215 sq ft garage).
Nb The vendor has advised the sizes of the existing house and the two new houses
No onward chain.
Situated in a sought after quiet location a detached house, enjoying a wide westerly facing rear garden, benefitting from planning permissions granted for:
• extending the existing house substantially (pl/24/0033/fa) to
circa 5,315 sq ft, or
• two brand new detached houses (pl/25/0007/fa).
The new houses are circa 2496 square feet (2281 sq ft house plus 215 sq ft garage).
Nb The vendor has advised the sizes of the existing house and the two new houses
No onward chain.
Mortgage calculator
Monthly repayment
£7,753 per month
Whole of market comparison
70+ lenders and 10,000+ products
The monthly repayments provided are estimates and should be used as a guide only. The actual amount you can borrow will depend on your personal financial situation and subject to a full application. For a more precise estimate, please use the Mojo mortgage calculator. Your home or property may be repossessed if you do not keep up repayments on your mortgage.



.png)