Guide price
£150,000
Land for saleCastles Close, Stotfold, Hitchin SG5
EPC Rating: D
Freehold
About this property
Rarely available Building Plot
Planning permission for a detached 2 bedroom bungalow
Quiet, cul-de-sac location
Ideal for a small local builder
Insight:
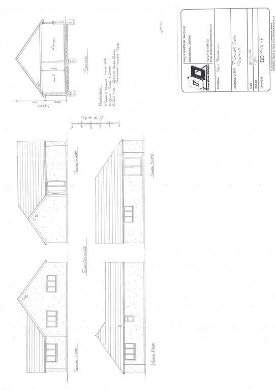
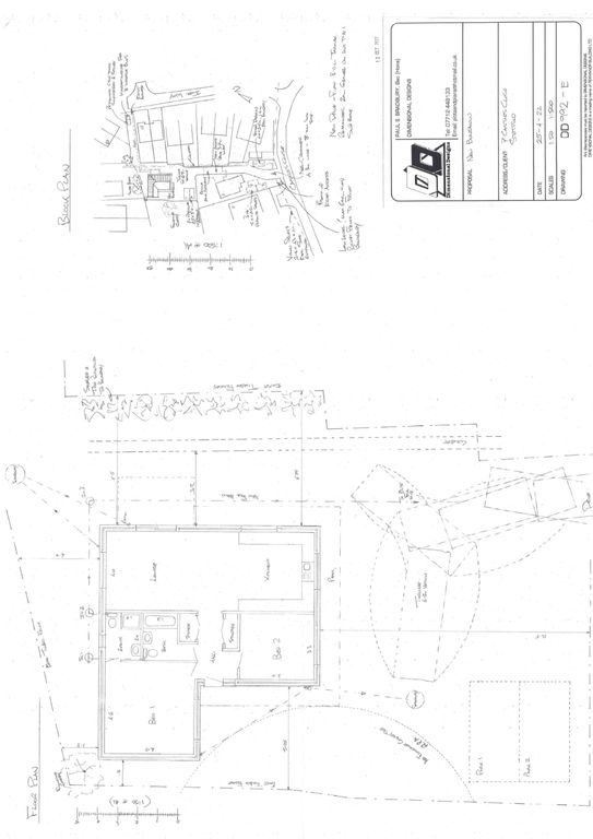
A rarely available single building plot with planning permission for a two-bedroom detached bungalow (cb/22/03992/full).
Ideal for a small local builder!
The plot at its longest and widest point measures approximately 25.7 metres by 19.5 metres.
The plot currently forms part of the garden for a residential property, so viewing is strictly by appointment.
Location:
Stotfold is a family-friendly town with plenty to offer, including well-regarded schools such as St Mary’s CofE Academy and Etonbury Academy. Stotfold also has a library, local Co Op, post office, pubs, cafes and green spaces, including Greenacre Park and Fairfield Park. The Stotfold Mill Meadows nature reserve and its walking trails provides a wonderful place for families to enjoy the outdoors and spot wildlife, while the historic Stotfold Watermill hosts events such as the Stotfold Steam Fair and annual open days. You’re also only a few minutes away from the historic market town of Hitchin with its cosmopolitan town centre and wealth of restaurants, bars and boutiques.
These particulars are intended to give a fair and reliable description of the plot but no responsibility for any inaccuracy or error can be accepted and do not constitute an offer or contract. All measurements are approximate.
EPC Rating: D
Location
Stotfold is a family-friendly town with plenty to offer, including well-regarded schools such as St Mary’s CofE Academy and Etonbury Academy. Stotfold also has a library, local Co Op, post office, pubs, cafes and green spaces, including Greenacre Park and Fairfield Park. The Stotfold Mill Meadows nature reserve and its walking trails provides a wonderful place for families to enjoy the outdoors and spot wildlife, while the historic Stotfold Watermill hosts events such as the Stotfold Steam Fair and annual open days. You’re also only a few minutes away from the historic market town of Hitchin with its cosmopolitan town centre and wealth of restaurants, bars and boutiques.
A rarely available single building plot with planning permission for a two-bedroom detached bungalow (cb/22/03992/full).
Ideal for a small local builder!
The plot at its longest and widest point measures approximately 25.7 metres by 19.5 metres.
The plot currently forms part of the garden for a residential property, so viewing is strictly by appointment.
Location:
Stotfold is a family-friendly town with plenty to offer, including well-regarded schools such as St Mary’s CofE Academy and Etonbury Academy. Stotfold also has a library, local Co Op, post office, pubs, cafes and green spaces, including Greenacre Park and Fairfield Park. The Stotfold Mill Meadows nature reserve and its walking trails provides a wonderful place for families to enjoy the outdoors and spot wildlife, while the historic Stotfold Watermill hosts events such as the Stotfold Steam Fair and annual open days. You’re also only a few minutes away from the historic market town of Hitchin with its cosmopolitan town centre and wealth of restaurants, bars and boutiques.
These particulars are intended to give a fair and reliable description of the plot but no responsibility for any inaccuracy or error can be accepted and do not constitute an offer or contract. All measurements are approximate.
EPC Rating: D
Location
Stotfold is a family-friendly town with plenty to offer, including well-regarded schools such as St Mary’s CofE Academy and Etonbury Academy. Stotfold also has a library, local Co Op, post office, pubs, cafes and green spaces, including Greenacre Park and Fairfield Park. The Stotfold Mill Meadows nature reserve and its walking trails provides a wonderful place for families to enjoy the outdoors and spot wildlife, while the historic Stotfold Watermill hosts events such as the Stotfold Steam Fair and annual open days. You’re also only a few minutes away from the historic market town of Hitchin with its cosmopolitan town centre and wealth of restaurants, bars and boutiques.



.png)