Guide price
£350,000
7 bed office for saleBank Barn, How Mill, Brampton CA8
7 beds
7 baths
3 receptions
EPC Rating: C
Freehold
About this property
Substantial Commercial Office with Granted Planning for Conversion (Subject to the implementation of a nutrient neutrality mitigation strategy)
Beautiful Sandstone Barn within a Peaceful Village Setting
Planning Permission Approved for Conversion into Three Residential Dwellings (STC)
Flexible Development Potential should you Require One Impressive Luxury Home (STC)
Original Timeless Character including Stone Arches and Exposed Beams
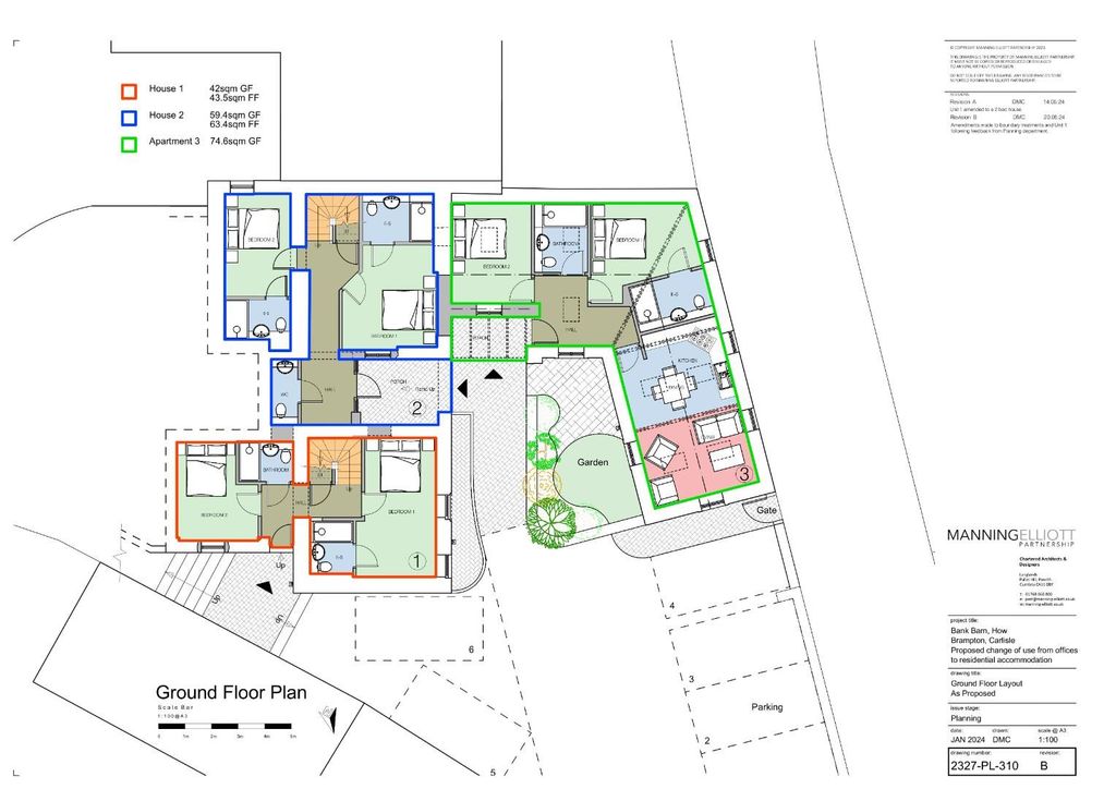
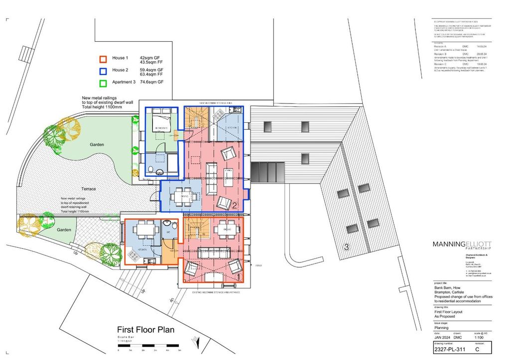
Plans Including 1 x Three Bedroom Home and 2 x Two Bedroom Homes
Ample Outdoor Space including Large Driveway & Garden Area
Peaceful Village Setting with Excellent Access to Brampton & Carlisle
Cumberland Council (Carlisle) Planning Reference: 24/0134
EPC - C
Bank Barn offers a rare opportunity to acquire a substantial sandstone barn in a highly desirable village setting, with exceptional potential for residential development. Full planning permission has been granted for conversion into three distinctive dwellings (subject to the implementation of a nutrient neutrality mitigation strategy - ask agent for details), making it an ideal prospect for developers, investors, or anyone with the vision to create something truly special.
Originally converted and later extended, the property has most recently served as a spacious commercial office and laboratory. Behind its traditional sandstone exterior, the interior combines character with functionality, featuring stone arches, exposed walls, arrow-slit windows, and original beams – providing the perfect foundation for transformation into highly desirable homes with timeless appeal.
The proposed plans and full planning conditions are available via the Cumberland Council website, reference 24/0134, and outline three residential dwellings: A 3-bed, 2-bath home; a 2-bed, 2-bath, both arranged over two floors; and then a characterful ground, single-level dwelling with 2 beds. Each is designed to maximise light, space, and individuality while retaining the charm of the original building.
Alternatively, subject to a planning variation, the barn could be remodelled into a single, impressive family residence, offering the scale and character to become a signature home blending heritage architecture with modern luxury.
Externally, the generous forecourt allows scope for private gardens and dedicated parking for each property, enhancing lifestyle appeal and long-term value. Located within easy reach of Carlisle and Brampton, the barn promises strong demand whether for sale or rental. Whether developed into multiple units or a single home, Bank Barn presents not just bricks and mortar but the opportunity to unlock significant value in one of the region’s most attractive rural setting.
How Mill is a charming rural hamlet set amidst the beautiful Cumbrian countryside, just a short distance from the villages of Corby Hill, Warwick Bridge and Hayton. The area offers a peaceful lifestyle while remaining conveniently close to everyday amenities such as local shops, butchers, garages and doctors’ surgeries. Outdoor enthusiasts are well catered for, with Talkin Tarn Country Park and Castle Carrock Reservoir nearby, and the wider landscapes of the North Pennines Area of Outstanding Natural Beauty and the Lake District National Park within easy reach. For commuters, the A69 is just a few minutes away, providing excellent connections east towards Newcastle and west to Carlisle and the M6 motorway.
Planning Permission:
Planning consent has been fully granted for the change of use of commercial office to 3no. Residential units subject to the implementation of a nutrient neutrality mitigation strategy - Cumberland Council (Carlisle) reference - 24/0134. Subject to a variation in Planning Permission the property could also be converted into a single, large, characterful and lovely sandstone dwelling.
Summary conditions to satisfy the nutrient neutrality mitigation strategy if converted into three dwellings.
A summary of the main conditions:
Prior to the commencement of the development of Bank Barn the following are required:
(A). The replacement of the septic tank at two adjoining properties in a local village with an operational biological package treatment plant (ptp, with an efficiency of 1.6 tp/litre).
(B). Planting of 13 Cox apple trees on the drainage field.
(C). The site for this work has been specified as a condition of the planning permission.
The current owners of Bank Barn assume that subject to negotiation items (2) and (3) below would be the responsibility of the owners of the two properties.
(2). The maintenance and management of the ptp, drainage fields, and 13 apple trees shall be reviewed after 2030 until the River Eden Special Area of Conservation (sac) is in a favourable condition or for 80 years whichever is the sooner. Maintenance reports shall be submitted to the local planning authority every 10 years within this period. The 13 apple trees shall be inspected every 2 years by a suitably qualified tree surveyor with any identified in poor health replaced.
(3). If the ptp needs to be replaced within the specified time they should be replaced with a plant of the same or lesser P load discharge.
What3Words:
For the location of this property, please visit the What3Words App and enter - trinkets.totally.shuts
Aml Disclosure:
Agents are required by law to conduct Anti-Money Laundering checks on all those buying a property. Hunters charge £30 (including VAT) for an aml check per buyer. This is a non-refundable fee. The charges cover the cost of obtaining relevant data, any manual checks that are required, and ongoing monitoring. This fee is payable in advance prior to the issuing of a memorandum of sale on the property you are seeking to buy.
Originally converted and later extended, the property has most recently served as a spacious commercial office and laboratory. Behind its traditional sandstone exterior, the interior combines character with functionality, featuring stone arches, exposed walls, arrow-slit windows, and original beams – providing the perfect foundation for transformation into highly desirable homes with timeless appeal.
The proposed plans and full planning conditions are available via the Cumberland Council website, reference 24/0134, and outline three residential dwellings: A 3-bed, 2-bath home; a 2-bed, 2-bath, both arranged over two floors; and then a characterful ground, single-level dwelling with 2 beds. Each is designed to maximise light, space, and individuality while retaining the charm of the original building.
Alternatively, subject to a planning variation, the barn could be remodelled into a single, impressive family residence, offering the scale and character to become a signature home blending heritage architecture with modern luxury.
Externally, the generous forecourt allows scope for private gardens and dedicated parking for each property, enhancing lifestyle appeal and long-term value. Located within easy reach of Carlisle and Brampton, the barn promises strong demand whether for sale or rental. Whether developed into multiple units or a single home, Bank Barn presents not just bricks and mortar but the opportunity to unlock significant value in one of the region’s most attractive rural setting.
How Mill is a charming rural hamlet set amidst the beautiful Cumbrian countryside, just a short distance from the villages of Corby Hill, Warwick Bridge and Hayton. The area offers a peaceful lifestyle while remaining conveniently close to everyday amenities such as local shops, butchers, garages and doctors’ surgeries. Outdoor enthusiasts are well catered for, with Talkin Tarn Country Park and Castle Carrock Reservoir nearby, and the wider landscapes of the North Pennines Area of Outstanding Natural Beauty and the Lake District National Park within easy reach. For commuters, the A69 is just a few minutes away, providing excellent connections east towards Newcastle and west to Carlisle and the M6 motorway.
Planning Permission:
Planning consent has been fully granted for the change of use of commercial office to 3no. Residential units subject to the implementation of a nutrient neutrality mitigation strategy - Cumberland Council (Carlisle) reference - 24/0134. Subject to a variation in Planning Permission the property could also be converted into a single, large, characterful and lovely sandstone dwelling.
Summary conditions to satisfy the nutrient neutrality mitigation strategy if converted into three dwellings.
A summary of the main conditions:
Prior to the commencement of the development of Bank Barn the following are required:
(A). The replacement of the septic tank at two adjoining properties in a local village with an operational biological package treatment plant (ptp, with an efficiency of 1.6 tp/litre).
(B). Planting of 13 Cox apple trees on the drainage field.
(C). The site for this work has been specified as a condition of the planning permission.
The current owners of Bank Barn assume that subject to negotiation items (2) and (3) below would be the responsibility of the owners of the two properties.
(2). The maintenance and management of the ptp, drainage fields, and 13 apple trees shall be reviewed after 2030 until the River Eden Special Area of Conservation (sac) is in a favourable condition or for 80 years whichever is the sooner. Maintenance reports shall be submitted to the local planning authority every 10 years within this period. The 13 apple trees shall be inspected every 2 years by a suitably qualified tree surveyor with any identified in poor health replaced.
(3). If the ptp needs to be replaced within the specified time they should be replaced with a plant of the same or lesser P load discharge.
What3Words:
For the location of this property, please visit the What3Words App and enter - trinkets.totally.shuts
Aml Disclosure:
Agents are required by law to conduct Anti-Money Laundering checks on all those buying a property. Hunters charge £30 (including VAT) for an aml check per buyer. This is a non-refundable fee. The charges cover the cost of obtaining relevant data, any manual checks that are required, and ongoing monitoring. This fee is payable in advance prior to the issuing of a memorandum of sale on the property you are seeking to buy.



.png)