Guide price
£350,000
Land for saleWillow Lane, Lancaster LA1
29 beds
EPC Rating: C
Auction
Freehold
About this property
Auction sale
18 November 2025
On behalf of Lancashire County Council
EPC Rating - C
To view: 6/11,13/11 at 2pm
Summary
auction sale 18 November 2025 - Substantial Freehold arranged as a flexible terrace of 5 properties requiring refurbishment,
Site area approx. 0.64 acres and approximately gea 549m2 / 5,910 sq ft accommodation,
Further development potential (STC),
Full vacant possession.
Description
Substantial Freehold arranged as a flexible terrace of 5 properties requiring refurbishment,
Site area approx. 0.64 acres and approximately gea 549m2 / 5,910 sq ft accommodation,
Further development potential (STC),
Full vacant possession.
Video Tours:
Part 1: Click Here
Part 2: Click Here
Part 3: Click Here
Location:
The property is situated on Willow Lane, with prominent corner frontages to St Thomas More Walk and Europa Way, to the west of Lancaster city centre. Transport options include local bus routes, Lancaster rail station (to Edinburgh, Glasgow, Liverpool, Manchester Airpoprt, Preston and London Euston) or road links via the M6 north and south.
Description:
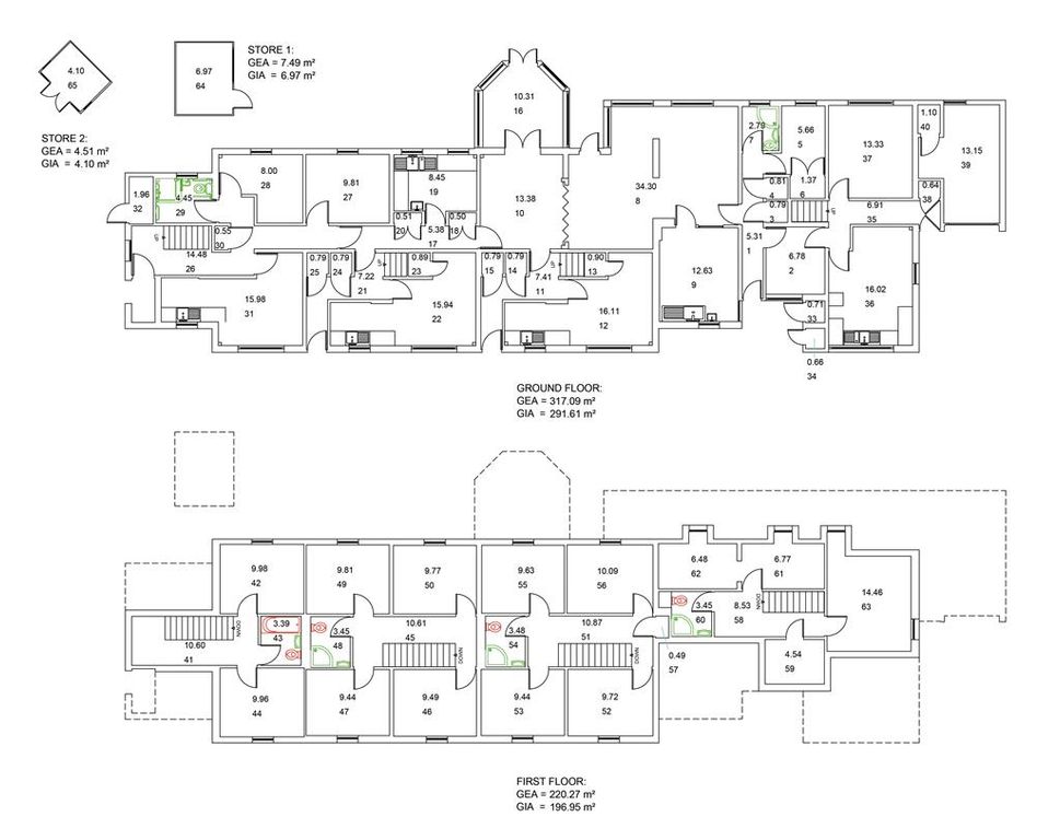
A flexible terrace of 5 properties interlinked and arranged over ground and first floor levels with gardens and parking. Approximately 29 rooms and ancillary accommodation plus storage and conservatory totalling approximately gea 549m2 / 5,910 sq ft) and previously utilised as an adult residential home.
Site Area:
Approx. 0.64 acres
EPC rating: C
Council Tax Band: E
Potential:
The property may be suitable for a variety of uses or potential development – subject to consents where necessary and purchasers must rely upon their own enquiries in this respect.
To view: 6/11,13/11 at 2pm
No booking required – Please arrive at the time stated
Important Notice:
For this Lot, a buyers premium of 0.45% (subject to maximum and minimum thresholds as described in the legal pack) is payable to Barnard Marcus Auctions by the buyer upon exchange of contracts. The seller may charge additional fees payable upon completion. If applicable, such fees are detailed within the Special Conditions of Sale. Buyers are deemed to bid in full knowledge of this.
The Guide Price quoted must not be relied upon by prospective purchasers as a valuation or assessment of value of the property. It is intended to provide purchasers with an indication of the region at which the reserve may be set at the time of going to press. The guide price may be subject to variation and interested parties are advised to make regular checks for variations and should be aware that the reserve price may be either below or above the quoted guide price.
Prospective purchasers should also be aware that the eventual sale price may be above or below the guide level dependent upon competition, and should therefore not presume the guide to be indicative of the final expected sale price or the price the property is available at.
When setting the guide price, the auctioneers have given consideration to the seller’s instructions in respect of their indicated reserve price at the time of instruction. The reserve price, (the level below which the property will not be sold), remains confidential between the seller and the auctioneer. The guide price therefore, is intended to indicate the region at which the reserve price is intended to be set. The seller will confirm their final reserve price close to the auction date and if appropriate the auctioneers may adjust the guide price to reflect this.
Whilst Barnard Marcus make every effort to ensure the safety and security of viewers at properties, we have not carried out a detailed Health & Safety inspection of properties in our auctions and cannot therefore guarantee the safety and security of viewers.
Prospective purchasers and bidders attend properties entirely at their own risk. Particular care should be taken when accessing cellars, attics, exterior grounds and outbuildings and boundaries. All non-conducted inspections of vacant sites should be made in daylight hours only and entry into such sites is entirely at the viewers risk.
1. Money laundering regulations: Intending purchasers will be asked to produce identification documentation at a later stage and we would ask for your co-operation in order that there will be no delay in agreeing the sale.
2. General: While we endeavour to make our sales particulars fair, accurate and reliable, they are only a general guide to the property and, accordingly, if there is any point which is of particular importance to you, please contact the office and we will be pleased to check the position for you, especially if you are contemplating travelling some distance to view the property.
3. Photographs and Measurements: Some images may have been taken by a wide angled lens camera. These approximate room sizes are only intended as general guidance. You must verify the dimensions carefully before ordering carpets or any built-in furniture.
4. Services: Please note we have not tested the services or any of the equipment or appliances in this property, accordingly we strongly advise prospective buyers to commission their own survey or service reports before finalising their offer to purchase.
5. These particulars are issued in good faith but do not constitute representations of fact or form part of any offer or contract. The matters referred to in these particulars should be independently verified by prospective buyers or tenants. Neither sequence (UK) limited nor any of its employees or agents has any authority to make or give any representation or warranty whatever in relation to this property.
1. Money laundering regulations: Intending purchasers will be asked to produce identification documentation at a later stage and we would ask for your co-operation in order that there will be no delay in agreeing the sale.
2. General: While we endeavour to make our sales particulars fair, accurate and reliable, they are only a general guide to the property and, accordingly, if there is any point which is of particular importance to you, please contact the office and we will be pleased to check the position for you, especially if you are contemplating travelling some distance to view the property.
3. Photographs and Measurements: Some images may have been taken by a wide angled lens camera. These approximate room sizes are only intended as general guidance. You must verify the dimensions carefully before ordering carpets or any built-in furniture.
4. Services: Please note we have not tested the services or any of the equipment or appliances in this property, accordingly we strongly advise prospective buyers to commission their own survey or service reports before finalising their offer to purchase.
5. These particulars are issued in good faith but do not constitute representations of fact or form part of any offer or contract. The matters referred to in these particulars should be independently verified by prospective buyers or tenants. Neither sequence (UK) limited nor any of its employees or agents has any authority to make or give any representation or warranty whatever in relation to this property.
auction sale 18 November 2025 - Substantial Freehold arranged as a flexible terrace of 5 properties requiring refurbishment,
Site area approx. 0.64 acres and approximately gea 549m2 / 5,910 sq ft accommodation,
Further development potential (STC),
Full vacant possession.
Description
Substantial Freehold arranged as a flexible terrace of 5 properties requiring refurbishment,
Site area approx. 0.64 acres and approximately gea 549m2 / 5,910 sq ft accommodation,
Further development potential (STC),
Full vacant possession.
Video Tours:
Part 1: Click Here
Part 2: Click Here
Part 3: Click Here
Location:
The property is situated on Willow Lane, with prominent corner frontages to St Thomas More Walk and Europa Way, to the west of Lancaster city centre. Transport options include local bus routes, Lancaster rail station (to Edinburgh, Glasgow, Liverpool, Manchester Airpoprt, Preston and London Euston) or road links via the M6 north and south.
Description:
A flexible terrace of 5 properties interlinked and arranged over ground and first floor levels with gardens and parking. Approximately 29 rooms and ancillary accommodation plus storage and conservatory totalling approximately gea 549m2 / 5,910 sq ft) and previously utilised as an adult residential home.
Site Area:
Approx. 0.64 acres
EPC rating: C
Council Tax Band: E
Potential:
The property may be suitable for a variety of uses or potential development – subject to consents where necessary and purchasers must rely upon their own enquiries in this respect.
To view: 6/11,13/11 at 2pm
No booking required – Please arrive at the time stated
Important Notice:
For this Lot, a buyers premium of 0.45% (subject to maximum and minimum thresholds as described in the legal pack) is payable to Barnard Marcus Auctions by the buyer upon exchange of contracts. The seller may charge additional fees payable upon completion. If applicable, such fees are detailed within the Special Conditions of Sale. Buyers are deemed to bid in full knowledge of this.
The Guide Price quoted must not be relied upon by prospective purchasers as a valuation or assessment of value of the property. It is intended to provide purchasers with an indication of the region at which the reserve may be set at the time of going to press. The guide price may be subject to variation and interested parties are advised to make regular checks for variations and should be aware that the reserve price may be either below or above the quoted guide price.
Prospective purchasers should also be aware that the eventual sale price may be above or below the guide level dependent upon competition, and should therefore not presume the guide to be indicative of the final expected sale price or the price the property is available at.
When setting the guide price, the auctioneers have given consideration to the seller’s instructions in respect of their indicated reserve price at the time of instruction. The reserve price, (the level below which the property will not be sold), remains confidential between the seller and the auctioneer. The guide price therefore, is intended to indicate the region at which the reserve price is intended to be set. The seller will confirm their final reserve price close to the auction date and if appropriate the auctioneers may adjust the guide price to reflect this.
Whilst Barnard Marcus make every effort to ensure the safety and security of viewers at properties, we have not carried out a detailed Health & Safety inspection of properties in our auctions and cannot therefore guarantee the safety and security of viewers.
Prospective purchasers and bidders attend properties entirely at their own risk. Particular care should be taken when accessing cellars, attics, exterior grounds and outbuildings and boundaries. All non-conducted inspections of vacant sites should be made in daylight hours only and entry into such sites is entirely at the viewers risk.
1. Money laundering regulations: Intending purchasers will be asked to produce identification documentation at a later stage and we would ask for your co-operation in order that there will be no delay in agreeing the sale.
2. General: While we endeavour to make our sales particulars fair, accurate and reliable, they are only a general guide to the property and, accordingly, if there is any point which is of particular importance to you, please contact the office and we will be pleased to check the position for you, especially if you are contemplating travelling some distance to view the property.
3. Photographs and Measurements: Some images may have been taken by a wide angled lens camera. These approximate room sizes are only intended as general guidance. You must verify the dimensions carefully before ordering carpets or any built-in furniture.
4. Services: Please note we have not tested the services or any of the equipment or appliances in this property, accordingly we strongly advise prospective buyers to commission their own survey or service reports before finalising their offer to purchase.
5. These particulars are issued in good faith but do not constitute representations of fact or form part of any offer or contract. The matters referred to in these particulars should be independently verified by prospective buyers or tenants. Neither sequence (UK) limited nor any of its employees or agents has any authority to make or give any representation or warranty whatever in relation to this property.
1. Money laundering regulations: Intending purchasers will be asked to produce identification documentation at a later stage and we would ask for your co-operation in order that there will be no delay in agreeing the sale.
2. General: While we endeavour to make our sales particulars fair, accurate and reliable, they are only a general guide to the property and, accordingly, if there is any point which is of particular importance to you, please contact the office and we will be pleased to check the position for you, especially if you are contemplating travelling some distance to view the property.
3. Photographs and Measurements: Some images may have been taken by a wide angled lens camera. These approximate room sizes are only intended as general guidance. You must verify the dimensions carefully before ordering carpets or any built-in furniture.
4. Services: Please note we have not tested the services or any of the equipment or appliances in this property, accordingly we strongly advise prospective buyers to commission their own survey or service reports before finalising their offer to purchase.
5. These particulars are issued in good faith but do not constitute representations of fact or form part of any offer or contract. The matters referred to in these particulars should be independently verified by prospective buyers or tenants. Neither sequence (UK) limited nor any of its employees or agents has any authority to make or give any representation or warranty whatever in relation to this property.



.png)