£350,000
3 bed detached house for saleBridge View, Shefford SG17
3 beds
2 baths
1 reception
EPC Rating: C
Freehold
About this property
Fantastic presentation throughout - just move in
Low Maintenance Rear Garden
Versatile ground floor family room with views onto rear garden
Bedroom 1 with built in wardrobe and en-suite
Off road parking for 1-2 cars
18ft Open plan Living/Diner/Kitchen area
New boiler installed 2026
This 2-3 bedroom freehold detached coach house with private garden is tucked away yet is within walking distance of the town centre amenities.
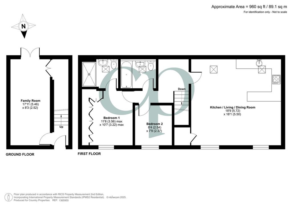
Entrance Hall
Stairs rising to first floor accommodation. Wood effect flooring. Door into:
Study/Family Room
17' 0" x 8' 3" (5.18m x 2.51m) Double glazed French doors opening onto rear garden. Large storage cupboard. Radiator. Wood effect flooring.
Landing
Access to loft space. Radiator.
Living/Diner/Kitchen Area
18' 9" x 18' 0" (5.71m x 5.49m) Lounge/Diner: Dual aspect with two double glazed windows to front plus further double glazed Velux window to rear. Built in storage cupboard. Two radiators.
Kitchen Area: A range of wall and base units with rolled edge worksurfaces and upstands plus further high gloss brick effect tiled surrounds. Integrated electric oven & gas hob with stainless steel extractor hood over. Integrated washing machine and dishwasher. Integrated fridge freezer. Cupboard housing wall mounted combi boiler (New 2026). Sink with drainer and mixer tap over. Ceramic tiled flooring. Two Velux windows to rear.
Bedroom 1
11' 8" x 10' 7" (3.56m x 3.23m) Double glazed window to front. A range of fitted wardrobes. Radiator. Door leading to:
En-Suite Shower Room
Suite comprising low level flush wc, pedestal mounted wash hand basin and double shower cubicle. Partially tiled walls and ceramic tiled flooring. Extractor. Shaver point. Radiator. Velux window to rear.
Bedroom 2
8' 4" x 7' 9" (2.54m x 2.36m) Double glazed window to front. Radiator.
Bathroom
Three piece suite comprising low level flush wc, pedestal mounted wash hand basin and panel enclosed bath with shower attachment. Partially tiled walls and ceramic tiled flooring. Shaver point. Radiator. Velux window to rear.
Rear Garden
Fully enclosed low maintenance south facing rear garden with paved patio area and gated access to side. Cold water tap.
Parking
Off road parking for 1-2 cars.
Agents Note
We have been advised that there is a service charge via Premier of approx £140 per annum, which is paid over 6 monthly instalments of £24 per month and is for the upkeep of the development.
We understand the study/bedroom 3 is a garage conversion completed by the previous owner. We would advise any buyer to check the paperwork/legal position in relation to the conversion prior to exchange of contracts.
For all your mortgage needs contact Dawn Olney at Mortgage Vision on or email:
Preliminary details - not yet approved and may be subject to changes
Entrance Hall
Stairs rising to first floor accommodation. Wood effect flooring. Door into:
Study/Family Room
17' 0" x 8' 3" (5.18m x 2.51m) Double glazed French doors opening onto rear garden. Large storage cupboard. Radiator. Wood effect flooring.
Landing
Access to loft space. Radiator.
Living/Diner/Kitchen Area
18' 9" x 18' 0" (5.71m x 5.49m) Lounge/Diner: Dual aspect with two double glazed windows to front plus further double glazed Velux window to rear. Built in storage cupboard. Two radiators.
Kitchen Area: A range of wall and base units with rolled edge worksurfaces and upstands plus further high gloss brick effect tiled surrounds. Integrated electric oven & gas hob with stainless steel extractor hood over. Integrated washing machine and dishwasher. Integrated fridge freezer. Cupboard housing wall mounted combi boiler (New 2026). Sink with drainer and mixer tap over. Ceramic tiled flooring. Two Velux windows to rear.
Bedroom 1
11' 8" x 10' 7" (3.56m x 3.23m) Double glazed window to front. A range of fitted wardrobes. Radiator. Door leading to:
En-Suite Shower Room
Suite comprising low level flush wc, pedestal mounted wash hand basin and double shower cubicle. Partially tiled walls and ceramic tiled flooring. Extractor. Shaver point. Radiator. Velux window to rear.
Bedroom 2
8' 4" x 7' 9" (2.54m x 2.36m) Double glazed window to front. Radiator.
Bathroom
Three piece suite comprising low level flush wc, pedestal mounted wash hand basin and panel enclosed bath with shower attachment. Partially tiled walls and ceramic tiled flooring. Shaver point. Radiator. Velux window to rear.
Rear Garden
Fully enclosed low maintenance south facing rear garden with paved patio area and gated access to side. Cold water tap.
Parking
Off road parking for 1-2 cars.
Agents Note
We have been advised that there is a service charge via Premier of approx £140 per annum, which is paid over 6 monthly instalments of £24 per month and is for the upkeep of the development.
We understand the study/bedroom 3 is a garage conversion completed by the previous owner. We would advise any buyer to check the paperwork/legal position in relation to the conversion prior to exchange of contracts.
For all your mortgage needs contact Dawn Olney at Mortgage Vision on or email:
Preliminary details - not yet approved and may be subject to changes
Mortgage calculator
Monthly repayment
£1,750 per month
Whole of market comparison
70+ lenders and 10,000+ products
The monthly repayments provided are estimates and should be used as a guide only. The actual amount you can borrow will depend on your personal financial situation and subject to a full application. For a more precise estimate, please use the Mojo mortgage calculator. Your home or property may be repossessed if you do not keep up repayments on your mortgage.



.png)