£385,000
Land for saleCamargue Road, Westbury BA13
About this property
A subperb development opportunity on the outskirts of westbury
Fantastic location, close to open countryside and within walking distance of the railway station and town centre
Non estate position
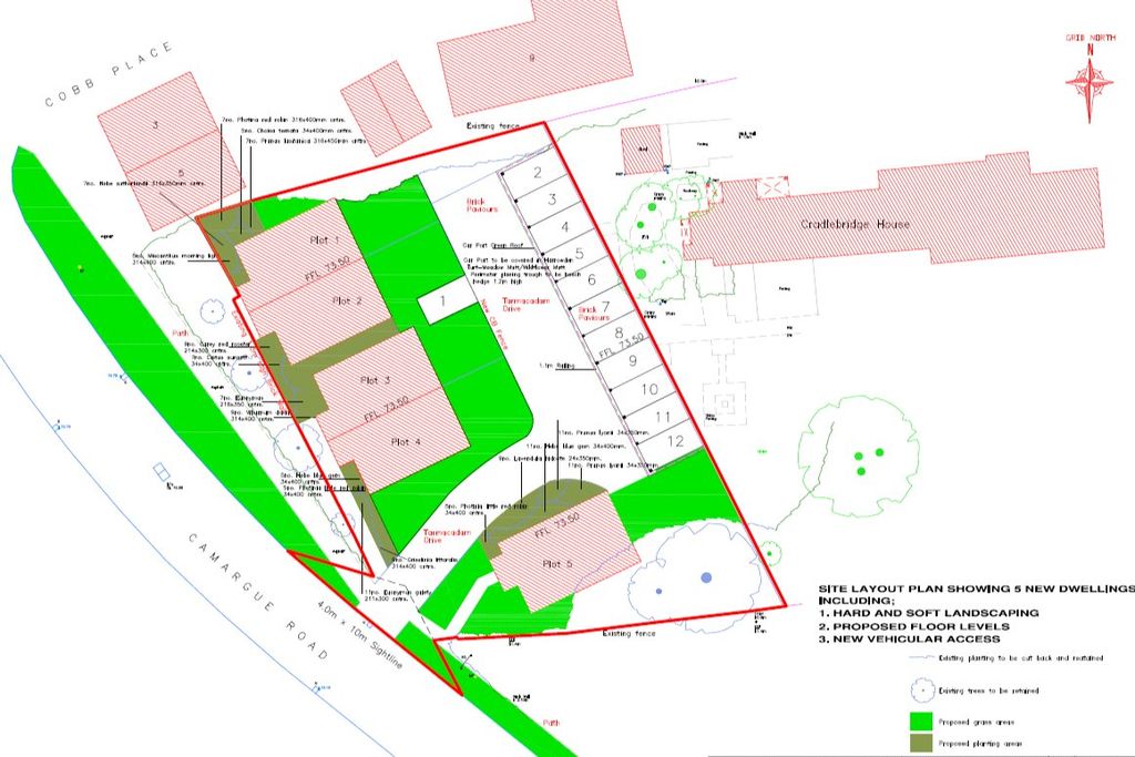
Planning permission obtained for the erection of five properties
A chance to create A select and exclusive small cul de sac
Cil having been paid
Further details available to view by visiting wiltshire council's planning portal and using ref: Pl/2022/08674
Please Note: The access has been revised and is indicated on the picture titled "revised plan". There has also been the following revisions: The removal of car port and simply provide 1400mm high retaining wall on eastern boundary. The existing western boundary wall is 2.1m high and will be reduced in height to 1.2m. The only frontage access will be the vehicle access with a path behind 1.2m high boundary wall. The existing sceptic tank for Cradlebridge House to be removed and the 100mm drain to be connected to the new drainage on plot 1. The new foul and surface water drainage system to be connected to existing manholes at junction with Cobb Place.
Westbury is a vibrant and popular market town located in the heart of Wiltshire which provides excellent access to Warminster, Salisbury, Frome and Bath via the A36. The town is well served with several respected Schools, Westbury Infants, Westbury Church Of England Junior and Matravers Secondary. Residents are able to take full advantage of the gorgeous countryside that surrounds the town, with some beautiful walks and cycle rides nearby not to mention Longleat which is 8 miles distant, so whether it be a stroll to enjoy the vista across the White Horse and beyond or perhaps a ramble in Clanger Woods this has it all. Superb rail links are on hand courtesy or the Railway Station which offers a direct line to Bath, London Paddington, Cardiff, Portsmouth and Swindon. The historic 14th century All Saints Church is located off the main square and you will find a number of independent shops and cafe's to enjoy along with a Farmers Market which meets on a weekly basis. The town has two large supermarkets with Aldi and Morrisons to choose from. On the sports and leisure side there is Leighton Recreation Centre a local swimming pool an several gyms to work up a sweat.
Mortgage calculator
£1,925 per month
70+ lenders and 10,000+ products
The monthly repayments provided are estimates and should be used as a guide only. The actual amount you can borrow will depend on your personal financial situation and subject to a full application. For a more precise estimate, please use the Mojo mortgage calculator. Your home or property may be repossessed if you do not keep up repayments on your mortgage.



.png)