Guide price
£140,000
Land for saleSt Aldams Drive, Bristol BS16
9 beds
6 baths
6 receptions
Auction
Freehold
About this property
0.28 acres
Development site
Freehold
Viewings – refer to details
Download free legal pack
Potential for 4 bed houses
Drone tour coming soon
Positive pre planning application
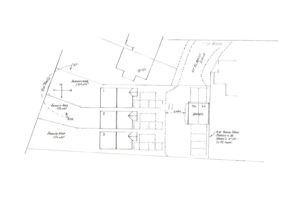
3 x 3 bed houses
Gdv £1.125m
Hollis Morgan – live online auction – A Freehold development site ( 0.28 acres ) with potential planning for 3 x houses with a gdv of circa £1.125m | positive pre app
For Sale By Live Online Auction
Address | Development Site @ St Aldams Drive, Pucklechurch, Bristol BS16 9QJ ( What 3 Words - ///speeds.pound.toast )
Lot Number tbc
Auction Date tbc
The Auction will be streamed live online via the Hollis Morgan website & you can chose to bid by telephone, proxy or via your computer.
Registration is a simple online process – please visit the Hollis Morgan auction website and click “register to bid”
The Property
A Freehold 0.28 Acres parcel of land, previously used for a compound and storage during the construction of hmp Ashfield, with vehicular access from Aldam's Drive.
Sold with Vacant Possession
Size - 0.28 acres | 0.11 hectares | 1,119 Sq M
Tenure - Freehold
Title # - GR208972
The Opportunity
Freehold development opportunity
The site benefits from a positive response to a Pre-Planning Application submitted in 2025. The application was submitted on the basis of 3 detached 3 bedroom houses with parking and gardens, but with the potential for 4 bedroom houses to be designed subject to a third storey.
The principle of development was well received by South Gloucestershire Council, though the final design and scale of the development will be for the incoming purchaser to decide.
The site offers a great opportunity to acquire a developable site in a popular, sought after location close to Bristol.
Based on the designs submitted within the Pre-Planning Application:
Subject to gaining the necessary consents
gdv | £1.125m
The Hollis Morgan New Homes team would be delighted to assist with appraisals for designed schemes.
For further details on the gdv and market conditions, please contact Dan Harris & Calum Melhuish on
Planning Information
A Pre-Planning Application for 3 x dwellings was submitted to the Local Planning Authority (South Gloucestershire). The principle of development was positively received by the authority, with design and scale to be decided by the incoming purchaser.
Full details of the proposed scheme and drawings can be downloaded with the online legal pack.
Location
The land is situated at the end of St Aldams Drive, a small cul-de-sac style road in Pucklechurch. Pucklechurch is an established country village lying in semi-rural surroundings about 2 miles East of Bristol. The popular and active village community includes local amenities such as village store, cafe/bakery, hairdresser, 2 pubs, primary school, church and other facilities. Sainsburys is under 3 miles away at Emersons Green, as is excellent 'commutability' via the A4174 North Bristol Ring Road - about 1 mile, an alternative access to M4 J18 at Tormarton via A46 - 5 miles, Bristol, Bath, Yate, M4 corridor.
Solicitors & Completion
Heather Jones
Wards
Extended completion
Completion is set for 8 weeks or earlier subject to mutual consent.
Important Auction Information
Viewings
The land can be viewed and accessed openly via St Aldams Drive. We ask that viewers be respectful of the neighbouring residents.
Material information
Information including utilities, Electricity supply, Water supply, Sewerage, Heating, Broadband, Mobile signal / coverage, Parking, Building safety, Restrictions and rights, Rights and easements, Flood risk, Erosion risk, Coastal erosion risk, Planning permission for proposal for development, Property accessibility / adaptations, Coalfield or mining area all of which will be supplied within the legal pack that can be accessed for free via the Hollis Morgan website or via your eig account.
Online legal packs
Digital Copies of the Online legal pack can be downloaded Free of Charge.
Please visit the Hollis Morgan Website and select the chosen lot from our Current Auction List.
Press the green button to "Download Legal Packs" For the first visit you will be required to register simply with your email and a password.
Having set up your account you can download legal packs or if they are not yet available, they will automatically be sent to you when we receive them.
You will be automatically updated by email if any new information is added.
There will be a note added to the list to confirm auction pack now complete when no further information is due to be added.
*** stay updated *** By registering for the legal pack we can ensure you are kept updated on any changes to this Lot in the build up to the sale.
Buyer’s premium
Please be aware all purchasers are subject to a £1,500 + VAT (£1,800 inc VAT) buyer's premium which is always payable upon exchange of contracts whether the sale is concluded before, during or after the auction date.
Guide price
An indication of the seller's current minimum acceptable price at auction. The guide price or range of guide prices is given to assist consumers in deciding whether to pursue a purchase. It is usual, but not always the case, that a provisional reserve range is agreed between the seller and the auctioneer at the start of marketing. As the reserve is not fixed at this stage and can be adjusted by the seller at any time up to the day of the auction in the light of interest shown during the marketing period, a guide price is issued. This guide price can be shown in the form of a minimum and maximum price range within which an acceptable sale price (reserve) would fall, or as a single price figure within 10% of which the minimum acceptable price (reserve) would fall. A guide price is different to a reserve price (see separate definition). Both the guide price and the reserve price can be subject to change up to and including the day of the auction.
Reserve price
The seller's minimum acceptable price at auction and the figure below which the auctioneer cannot sell. The reserve price is not disclosed and remains confidential between the seller and the auctioneer. Both the guide price and the reserve price can be subject to change up to and including the day of the auction.
Pre auction offers
Some vendors are willing to consider offers prior to the auction.
Pre auction offers can only be submitted by completing the online pre auction offer form
The form can be found on the Hollis Morgan website on the individual auction property listing.
Please note offers will not be considered until you have inspected the complete legal pack once it has been released.
There will be a note added to the list to confirm auction pack now complete when our client’s solicitor informs us no further information is due to be added.
In the event of an offer being accepted the property will only be removed from the online auction and viewings stopped once contracts have successfully exchanged subject to the standard auction terms and payment of the buyer’s premium (£1,800 Inclusive of VAT) to Hollis Morgan.
Contracts can be exchanged via the solicitors or at the Hollis Morgan offices by appointment only.
Registration process
The registration process is extremely simple – visit the Hollis Morgan auction website and click on the “Register to Bid” button.
The “Register to Bid” button can be found on the auction home page or on the individual lot listings.
Please note this function is not available on Rightmove or Zoopla.
Stage 1 – Complete the Online Bidding Form
Stage 2 – Upload your certified id
Stage 3 – Invitation to bid
Stage 4 – Pay your security deposit (£6,800)
You are now ready to bid – Good luck!
If your bid is successful, the balance of the deposit monies must be transferred to our client account within 24 hours of the auction sale.
If you are unsuccessful at the auction your holding deposit will be returned within 48 hours.
Surveys and valuations
If you would like to arrange a survey or mortgage valuation of this Lot before the auction, please instruct your appointed surveyor to contact Hollis Morgan and we will arrange access for them to inspect the property. Please note that buyers cannot attend the surveys and the surveyors are responsible for collecting and returning keys to the Hollis Morgan offices in Clifton.
Auction finance & bridging loans
Some properties may require specialist auction finance- please contact Hollis Morgan for access to expert advice and whole of market rates from our independent brokers.
Hollis Morgan may receive introductory fees for this service from the broker.
Auction buyer’s guide video
We have short video guides for both buying and selling by Public Auction on the Hollis Morgan Website. If you have any further questions regarding the process, please don’t hesitate to contact Auction HQ.
2025 charity of the year
Hollis Morgan is supporting Uncle Pauls Chilli Charity empowering socially disadvantaged people with barriers to learning &/or disabilities based in Butcombe, North Somerset, our land overlooks the Mendip Hills and Blagdon lake. There are three main areas of focus at Uncle Paul’s Chilli Charity Education, Wellbeing and Social Prescribing – visit for more details or the Hollis Morgan Charity Page of our website.
Auction property details disclaimer
Hollis Morgan endeavour to make our sales details clear, accurate and reliable in line with the Consumer Protection from Unfair Trading Regulations 2008 but they should not be relied on as statements or representations of fact, and they do not constitute any part of an offer or contract. All Hollis Morgan references to planning, tenants, boundaries, potential development, tenure etc is to be superseded by the information contained in the legal pack. It should not be assumed that this property has all the necessary Planning, Building Regulation, or other consents. Any services, appliances and heating system(s) listed have not been checked or tested. Please note that in some instances the photographs may have been taken using a wide-angle lens. The seller does not make any representation or give any warranty in relation to the property, and we have no authority to do so on behalf of the seller.
For Sale By Live Online Auction
Address | Development Site @ St Aldams Drive, Pucklechurch, Bristol BS16 9QJ ( What 3 Words - ///speeds.pound.toast )
Lot Number tbc
Auction Date tbc
The Auction will be streamed live online via the Hollis Morgan website & you can chose to bid by telephone, proxy or via your computer.
Registration is a simple online process – please visit the Hollis Morgan auction website and click “register to bid”
The Property
A Freehold 0.28 Acres parcel of land, previously used for a compound and storage during the construction of hmp Ashfield, with vehicular access from Aldam's Drive.
Sold with Vacant Possession
Size - 0.28 acres | 0.11 hectares | 1,119 Sq M
Tenure - Freehold
Title # - GR208972
The Opportunity
Freehold development opportunity
The site benefits from a positive response to a Pre-Planning Application submitted in 2025. The application was submitted on the basis of 3 detached 3 bedroom houses with parking and gardens, but with the potential for 4 bedroom houses to be designed subject to a third storey.
The principle of development was well received by South Gloucestershire Council, though the final design and scale of the development will be for the incoming purchaser to decide.
The site offers a great opportunity to acquire a developable site in a popular, sought after location close to Bristol.
Based on the designs submitted within the Pre-Planning Application:
Subject to gaining the necessary consents
gdv | £1.125m
The Hollis Morgan New Homes team would be delighted to assist with appraisals for designed schemes.
For further details on the gdv and market conditions, please contact Dan Harris & Calum Melhuish on
Planning Information
A Pre-Planning Application for 3 x dwellings was submitted to the Local Planning Authority (South Gloucestershire). The principle of development was positively received by the authority, with design and scale to be decided by the incoming purchaser.
Full details of the proposed scheme and drawings can be downloaded with the online legal pack.
Location
The land is situated at the end of St Aldams Drive, a small cul-de-sac style road in Pucklechurch. Pucklechurch is an established country village lying in semi-rural surroundings about 2 miles East of Bristol. The popular and active village community includes local amenities such as village store, cafe/bakery, hairdresser, 2 pubs, primary school, church and other facilities. Sainsburys is under 3 miles away at Emersons Green, as is excellent 'commutability' via the A4174 North Bristol Ring Road - about 1 mile, an alternative access to M4 J18 at Tormarton via A46 - 5 miles, Bristol, Bath, Yate, M4 corridor.
Solicitors & Completion
Heather Jones
Wards
Extended completion
Completion is set for 8 weeks or earlier subject to mutual consent.
Important Auction Information
Viewings
The land can be viewed and accessed openly via St Aldams Drive. We ask that viewers be respectful of the neighbouring residents.
Material information
Information including utilities, Electricity supply, Water supply, Sewerage, Heating, Broadband, Mobile signal / coverage, Parking, Building safety, Restrictions and rights, Rights and easements, Flood risk, Erosion risk, Coastal erosion risk, Planning permission for proposal for development, Property accessibility / adaptations, Coalfield or mining area all of which will be supplied within the legal pack that can be accessed for free via the Hollis Morgan website or via your eig account.
Online legal packs
Digital Copies of the Online legal pack can be downloaded Free of Charge.
Please visit the Hollis Morgan Website and select the chosen lot from our Current Auction List.
Press the green button to "Download Legal Packs" For the first visit you will be required to register simply with your email and a password.
Having set up your account you can download legal packs or if they are not yet available, they will automatically be sent to you when we receive them.
You will be automatically updated by email if any new information is added.
There will be a note added to the list to confirm auction pack now complete when no further information is due to be added.
*** stay updated *** By registering for the legal pack we can ensure you are kept updated on any changes to this Lot in the build up to the sale.
Buyer’s premium
Please be aware all purchasers are subject to a £1,500 + VAT (£1,800 inc VAT) buyer's premium which is always payable upon exchange of contracts whether the sale is concluded before, during or after the auction date.
Guide price
An indication of the seller's current minimum acceptable price at auction. The guide price or range of guide prices is given to assist consumers in deciding whether to pursue a purchase. It is usual, but not always the case, that a provisional reserve range is agreed between the seller and the auctioneer at the start of marketing. As the reserve is not fixed at this stage and can be adjusted by the seller at any time up to the day of the auction in the light of interest shown during the marketing period, a guide price is issued. This guide price can be shown in the form of a minimum and maximum price range within which an acceptable sale price (reserve) would fall, or as a single price figure within 10% of which the minimum acceptable price (reserve) would fall. A guide price is different to a reserve price (see separate definition). Both the guide price and the reserve price can be subject to change up to and including the day of the auction.
Reserve price
The seller's minimum acceptable price at auction and the figure below which the auctioneer cannot sell. The reserve price is not disclosed and remains confidential between the seller and the auctioneer. Both the guide price and the reserve price can be subject to change up to and including the day of the auction.
Pre auction offers
Some vendors are willing to consider offers prior to the auction.
Pre auction offers can only be submitted by completing the online pre auction offer form
The form can be found on the Hollis Morgan website on the individual auction property listing.
Please note offers will not be considered until you have inspected the complete legal pack once it has been released.
There will be a note added to the list to confirm auction pack now complete when our client’s solicitor informs us no further information is due to be added.
In the event of an offer being accepted the property will only be removed from the online auction and viewings stopped once contracts have successfully exchanged subject to the standard auction terms and payment of the buyer’s premium (£1,800 Inclusive of VAT) to Hollis Morgan.
Contracts can be exchanged via the solicitors or at the Hollis Morgan offices by appointment only.
Registration process
The registration process is extremely simple – visit the Hollis Morgan auction website and click on the “Register to Bid” button.
The “Register to Bid” button can be found on the auction home page or on the individual lot listings.
Please note this function is not available on Rightmove or Zoopla.
Stage 1 – Complete the Online Bidding Form
Stage 2 – Upload your certified id
Stage 3 – Invitation to bid
Stage 4 – Pay your security deposit (£6,800)
You are now ready to bid – Good luck!
If your bid is successful, the balance of the deposit monies must be transferred to our client account within 24 hours of the auction sale.
If you are unsuccessful at the auction your holding deposit will be returned within 48 hours.
Surveys and valuations
If you would like to arrange a survey or mortgage valuation of this Lot before the auction, please instruct your appointed surveyor to contact Hollis Morgan and we will arrange access for them to inspect the property. Please note that buyers cannot attend the surveys and the surveyors are responsible for collecting and returning keys to the Hollis Morgan offices in Clifton.
Auction finance & bridging loans
Some properties may require specialist auction finance- please contact Hollis Morgan for access to expert advice and whole of market rates from our independent brokers.
Hollis Morgan may receive introductory fees for this service from the broker.
Auction buyer’s guide video
We have short video guides for both buying and selling by Public Auction on the Hollis Morgan Website. If you have any further questions regarding the process, please don’t hesitate to contact Auction HQ.
2025 charity of the year
Hollis Morgan is supporting Uncle Pauls Chilli Charity empowering socially disadvantaged people with barriers to learning &/or disabilities based in Butcombe, North Somerset, our land overlooks the Mendip Hills and Blagdon lake. There are three main areas of focus at Uncle Paul’s Chilli Charity Education, Wellbeing and Social Prescribing – visit for more details or the Hollis Morgan Charity Page of our website.
Auction property details disclaimer
Hollis Morgan endeavour to make our sales details clear, accurate and reliable in line with the Consumer Protection from Unfair Trading Regulations 2008 but they should not be relied on as statements or representations of fact, and they do not constitute any part of an offer or contract. All Hollis Morgan references to planning, tenants, boundaries, potential development, tenure etc is to be superseded by the information contained in the legal pack. It should not be assumed that this property has all the necessary Planning, Building Regulation, or other consents. Any services, appliances and heating system(s) listed have not been checked or tested. Please note that in some instances the photographs may have been taken using a wide-angle lens. The seller does not make any representation or give any warranty in relation to the property, and we have no authority to do so on behalf of the seller.
Mortgage calculator
Monthly repayment
£700 per month
Whole of market comparison
70+ lenders and 10,000+ products
The monthly repayments provided are estimates and should be used as a guide only. The actual amount you can borrow will depend on your personal financial situation and subject to a full application. For a more precise estimate, please use the Mojo mortgage calculator. Your home or property may be repossessed if you do not keep up repayments on your mortgage.



.png)