Offers over
£200,000
Barn conversion for saleFentons Road, Rayne, Braintree, Essex CM77
EPC Rating: F
Chain free
Freehold
About this property
*lot 2 only listing*
Available as a whole, or in 2 Lots.
Proposed 4 Bedrooms, 2 bathrooms
Proposal of 2,314sqf of accommodation
Array of outbuildings
Planning permissions approved
Tranquil gardens of 0.25 of an acre
*Proceedable Buyers Only*
*No Onward Chain*
Lot 2 - Offers Over £200,000 - Blue on plan
Buildings and Planning
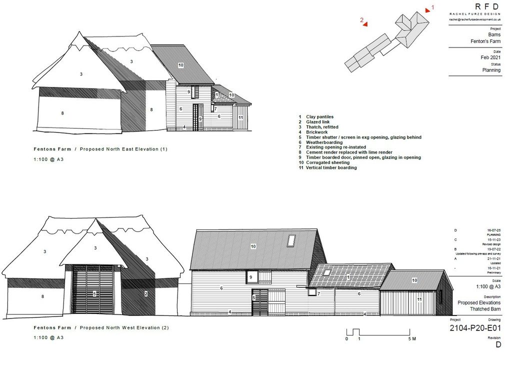
To the north of the farmhouse which is available for sale at a guide price of 'Offers Over £600,000' (pink on the plan), are 3 barns. The largest is a Grade II listed 16/17th century timber framed thatched barn with rendered walls, hipped roof and hipped midstrey. Adjoining is a listed timber-clad 18th century barn with a corrugated iron roof. Abutting this is a timber-clad double garage with pan tile roof.
The vendor has applied for planning permission for these buildings to be converted to a new single residential dwelling, though these buildings could also be used as an annexe to the main house or home office; subject to the necessary consents.
Planning reference 25/01607/lbc | Conversion of barns into 1 No.dwellinghouse, with single-storey extension and single-storey link extension. Planning and Listed building consent submitted on 16th July 2025, has now been granted. Full plans and details available on Braintree District Council's website.
General
Local Authority: Braintree District Council
Services: The following services are available to Lot 1 (the Farmhouse) Mains electricity and shared water mains. Shared private drainage, we understand this does comply with relevant regulations. Oil fired central heating. Buyers for the barns will need to make their own investigations to having separate services.
Grade II Listed
Mobile and Broadband checker: Information can be found here
Council Tax: Band G
Agents Note: Please note there is a proposal for a solar farm in the land to the rear of the farmhouse.
Fentons Farm is accessed via a gravelled driveway that curves around to a parking area between the farmhouse and the array of traditional timber framed barns.
The level grounds are mainly lawned, with mature hedging, and a variety of established trees that offer privacy while allowing views south across open fields.
The property enjoys a rural setting, yet is conveniently located close to the A120, ideal for commuters, just under two miles from the centre of Rayne and five miles from Braintree. The charming village of Rayne offers a public house, shops, restaurant, village hall, and playing field, while the larger town of Braintree provides a wide range of amenities and schools. Braintree railway station offers regular services to London Liverpool Street in around an hour, and from Chelmsford in approximately 30 minutes. The surrounding countryside and the Flitch Way provides walking routes, just a few yards from the farmhouse has been repurposed as a bridleway and traffic-free cycle path connecting nearby towns.
Distances
Braintree 5 miles
Great Dunmow 9.2 miles
Halstead 10.4 miles
Coggeshall 11.2 miles
Chelmsford 11.6 miles
Witham 11.6 miles
Nearby Stations
Braintree
Witham
Chelmsford
Nearby Schools
Rayne Primary
Notley or Tabor
Gosfield
Felsted
New Hall
St Cedd's
Buildings and Planning
To the north of the farmhouse which is available for sale at a guide price of 'Offers Over £600,000' (pink on the plan), are 3 barns. The largest is a Grade II listed 16/17th century timber framed thatched barn with rendered walls, hipped roof and hipped midstrey. Adjoining is a listed timber-clad 18th century barn with a corrugated iron roof. Abutting this is a timber-clad double garage with pan tile roof.
The vendor has applied for planning permission for these buildings to be converted to a new single residential dwelling, though these buildings could also be used as an annexe to the main house or home office; subject to the necessary consents.
Planning reference 25/01607/lbc | Conversion of barns into 1 No.dwellinghouse, with single-storey extension and single-storey link extension. Planning and Listed building consent submitted on 16th July 2025, has now been granted. Full plans and details available on Braintree District Council's website.
General
Local Authority: Braintree District Council
Services: The following services are available to Lot 1 (the Farmhouse) Mains electricity and shared water mains. Shared private drainage, we understand this does comply with relevant regulations. Oil fired central heating. Buyers for the barns will need to make their own investigations to having separate services.
Grade II Listed
Mobile and Broadband checker: Information can be found here
Council Tax: Band G
Agents Note: Please note there is a proposal for a solar farm in the land to the rear of the farmhouse.
Fentons Farm is accessed via a gravelled driveway that curves around to a parking area between the farmhouse and the array of traditional timber framed barns.
The level grounds are mainly lawned, with mature hedging, and a variety of established trees that offer privacy while allowing views south across open fields.
The property enjoys a rural setting, yet is conveniently located close to the A120, ideal for commuters, just under two miles from the centre of Rayne and five miles from Braintree. The charming village of Rayne offers a public house, shops, restaurant, village hall, and playing field, while the larger town of Braintree provides a wide range of amenities and schools. Braintree railway station offers regular services to London Liverpool Street in around an hour, and from Chelmsford in approximately 30 minutes. The surrounding countryside and the Flitch Way provides walking routes, just a few yards from the farmhouse has been repurposed as a bridleway and traffic-free cycle path connecting nearby towns.
Distances
Braintree 5 miles
Great Dunmow 9.2 miles
Halstead 10.4 miles
Coggeshall 11.2 miles
Chelmsford 11.6 miles
Witham 11.6 miles
Nearby Stations
Braintree
Witham
Chelmsford
Nearby Schools
Rayne Primary
Notley or Tabor
Gosfield
Felsted
New Hall
St Cedd's
Mortgage calculator
Monthly repayment
£1,000 per month
Whole of market comparison
70+ lenders and 10,000+ products
The monthly repayments provided are estimates and should be used as a guide only. The actual amount you can borrow will depend on your personal financial situation and subject to a full application. For a more precise estimate, please use the Mojo mortgage calculator. Your home or property may be repossessed if you do not keep up repayments on your mortgage.



.png)