Guide price
£400,000
Land for saleMiddle Street, Thriplow, Royston SG8
Freehold
About this property
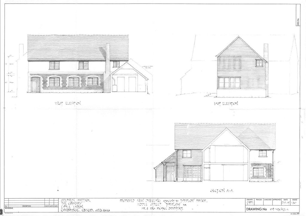
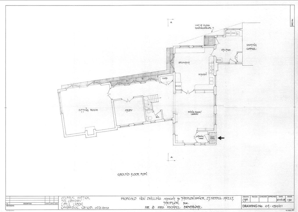
Parcel of land extending to about 0.4 acres, subject to survey, benefitting from a detailed planning consent for the erection of a detached dwelling with accommodation set over two floors extending to about 3500 sq ft with attached double garage within the grounds of this magnificent Grade II* listed manor house in the eagerly sought after and picturesque South Cambridgeshire Village of Thriplow.
Planning Consent
Planning consent granted for a Dwelling and Garage (Ref. S/1805/04/F) that has been implemented. Clued confirming this dated 23/05/2025 with reference 25/00871/clued available on the planning portal.
Planning Consent
Planning consent granted for a Dwelling and Garage (Ref. S/1805/04/F) that has been implemented. Clued confirming this dated 23/05/2025 with reference 25/00871/clued available on the planning portal.



.png)