Guide price
£200,000
Land for saleAbbey Road, Sheringham, Norfolk NR26
Freehold
About this property
Plot with planning permission for a detached 2-bed Chalet with study.
Sought-after seaside town location on North Norfolk Coast
Great self-build opportunity
Popular residential location.
Description
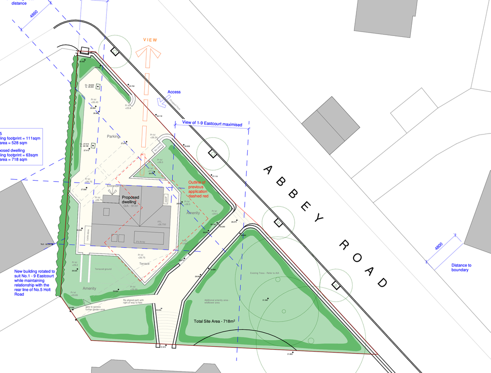
Planning permission has been granted (ref app/Y2620/W/24/3353881) for the erection of a 2 bedroom chalet style dwelling and associated works in accordance with the terms of the planning application, (Ref pf/24/0476). Located in this popular seaside town on the North Norfolk coast, the site is a broadly triangular parcel of land close to the junction between Abbey Road and Holt Road. The site occupies an elevated position on land that rises to the rear towards East Court,
The Site
Located in this popular seaside town on the North Norfolk coast, the site is a broadly triangular parcel of land close to the junction between Abbey Road and Holt Road. The site occupies an elevated position on land that rises to the rear towards East Court, a substantial building facing the junction of Abbey Road and Holt Road. To the side of the site is one of a pair of single-storey dwellings set back from Holt Road within the rising land to the front of East Court. Development in the area typically fronts the roads and varies in scale, form and material finish. Buildings are primarily set in from the boundaries with vegetation to the front boundaries. The existing site is largely laid to grass and partly screened from Holt Road.
Title and Tenure
The land is registered under Title Number NK402199 and will provide vacant possession upon completion.
Method of Sale
The property is for sale by Private Treaty.
Offers
Offers are invited for the freehold purchase of the site. All offers will need to be confirmed in writing to the seller’s sole agent and include the following:
1 - Proof of funding.
2 - Timescales for proposed planning application, exchange and completion.
3 - Proof of id.
4 - Details of Solicitors to be instructed on the purchase
5 - Confirmation that a 10% deposit will be paid on exchange of contracts.
Restrictive Covenants
We are not aware of any restrictive covenants that affect the site, but prospective buyers are advised to seek clarification before legal commitment.
Services
Prospective purchasers are to make their own enquiries as to the location/provision of services.
Wayleaves, Easements & Rights of Way
The land is to be sold subject to all existing rights of way, public or private, light support, drainage, water and electricity supplies and allotted rights and obligations, easements, quasi easements and all wayleaves whether referred to or not in the sales particulars. Purchasers will be deemed to have full knowledge and satisfied themselves as to the provisions of any such matters which may affect the property.
VAT
Should any sale of the land or any right attached to it become chargeable for VAT, then such tax will be the liability of the purchaser to settle in addition to the purchase price.
Local Authority
North Norfolk District Council.
Viewings
All viewings are strictly via the sellers sole agent.
Schedule of planning conditions
1) The development hereby permitted shall begin not later than three years from the date of this decision.
2) The development hereby permitted shall be carried out in accordance with drawing numbers: Site Location Plan, 0001 Rev C, 0002 Rev A and 0003. (Drawings/brochures available for download below)
3) Prior to the commencement of the development hereby permitted, a scheme for hard and soft landscape proposals shall be submitted to and approved in writing by the local planning authority. The proposals shall include plans at no less than 1:200 showing the following details:
Proposed Soft Landscape Details
a) existing trees, shrubs and hedgerows on the site, indicating those to be removed;
b) details of all new planting including: Species, location, number and size of new trees and shrubs;
c) measures for protection of new planting.
Proposed Hard Landscape Details
d) surface materials for vehicle and pedestrian areas; and
e) boundary treatments, including fencing, walling, etc.
Implementation and Retention
f) an implementation programme laying out a timescale for the completion of all landscape works; and
g) a landscape management plan, stating management responsibilities and a schedule of retention and monitoring operations for all landscaped areas for a minimum of five years following implementation.
4) Any tree, shrub or hedgerow forming part of an approved landscape scheme which dies, is removed or become seriously damaged or diseased, within a period of five years from the date of planting, shall be replaced during the next planting season following removal with another of a similar size and species as that originally planted, and in the same place.
5) The development hereby approved shall be carried out in strict accordance with the tree protection measures contained within Sections 6 and 7 and Appendices 4,5 and 6 of the Arboricultural Impact Assessment prepared by A.T. Coombes Associates Ltd, dated 27 February 2024.
6) The development hereby permitted shall be incorporate the following ecological enhancement measures outlined in Section 7 of the approved Design, Access & Planning Statement, received 05th March 2024.
• Bee bricks built into the masonry walls;
• Swift boxes integrated into the building design;
• Bird boxes installed on trees within the site.
The specific details of all of the enhancement measures including number, type and location, shall be submitted to and approved in writing by the local planning authority prior to installation. The enhancement measures shall then be installed, prior to the first occupation of the development, in accordance with the approved details and thereafter retained in a suitable condition to serve the intended purpose.
7) Prior to the first occupation of the development hereby permitted the vehicular/pedestrian/cyclist access over the footway shall be constructed in accordance with the highways specification (trad 4) and thereafter retained at the position shown on the approved plan. Arrangement shall be made for surface water drainage to be intercepted and disposed of separately so that it does not discharge from or onto the highway.
8) Prior to the first occupation of the development hereby permitted the proposed access and on-site car parking and turning area shall be laid out, levelled, surfaced and drained in accordance with the approved plan and retained thereafter available for that specific use.
9) Notwithstanding the provision of the Town and Country Planning (General Permitted Development) Order (2015), (or any Order revoking, amending or re- enacting that Order) no gates/bollard/chain/other means of obstruction shall be erected across the approved access.
10) The developer shall notify the local planning authority in writing of the date of commencement of the development hereby permitted. Such notification shall be provided within 14 days of the date of commencement of the development hereby permitted.
Planning permission has been granted (ref app/Y2620/W/24/3353881) for the erection of a 2 bedroom chalet style dwelling and associated works in accordance with the terms of the planning application, (Ref pf/24/0476). Located in this popular seaside town on the North Norfolk coast, the site is a broadly triangular parcel of land close to the junction between Abbey Road and Holt Road. The site occupies an elevated position on land that rises to the rear towards East Court,
The Site
Located in this popular seaside town on the North Norfolk coast, the site is a broadly triangular parcel of land close to the junction between Abbey Road and Holt Road. The site occupies an elevated position on land that rises to the rear towards East Court, a substantial building facing the junction of Abbey Road and Holt Road. To the side of the site is one of a pair of single-storey dwellings set back from Holt Road within the rising land to the front of East Court. Development in the area typically fronts the roads and varies in scale, form and material finish. Buildings are primarily set in from the boundaries with vegetation to the front boundaries. The existing site is largely laid to grass and partly screened from Holt Road.
Title and Tenure
The land is registered under Title Number NK402199 and will provide vacant possession upon completion.
Method of Sale
The property is for sale by Private Treaty.
Offers
Offers are invited for the freehold purchase of the site. All offers will need to be confirmed in writing to the seller’s sole agent and include the following:
1 - Proof of funding.
2 - Timescales for proposed planning application, exchange and completion.
3 - Proof of id.
4 - Details of Solicitors to be instructed on the purchase
5 - Confirmation that a 10% deposit will be paid on exchange of contracts.
Restrictive Covenants
We are not aware of any restrictive covenants that affect the site, but prospective buyers are advised to seek clarification before legal commitment.
Services
Prospective purchasers are to make their own enquiries as to the location/provision of services.
Wayleaves, Easements & Rights of Way
The land is to be sold subject to all existing rights of way, public or private, light support, drainage, water and electricity supplies and allotted rights and obligations, easements, quasi easements and all wayleaves whether referred to or not in the sales particulars. Purchasers will be deemed to have full knowledge and satisfied themselves as to the provisions of any such matters which may affect the property.
VAT
Should any sale of the land or any right attached to it become chargeable for VAT, then such tax will be the liability of the purchaser to settle in addition to the purchase price.
Local Authority
North Norfolk District Council.
Viewings
All viewings are strictly via the sellers sole agent.
Schedule of planning conditions
1) The development hereby permitted shall begin not later than three years from the date of this decision.
2) The development hereby permitted shall be carried out in accordance with drawing numbers: Site Location Plan, 0001 Rev C, 0002 Rev A and 0003. (Drawings/brochures available for download below)
3) Prior to the commencement of the development hereby permitted, a scheme for hard and soft landscape proposals shall be submitted to and approved in writing by the local planning authority. The proposals shall include plans at no less than 1:200 showing the following details:
Proposed Soft Landscape Details
a) existing trees, shrubs and hedgerows on the site, indicating those to be removed;
b) details of all new planting including: Species, location, number and size of new trees and shrubs;
c) measures for protection of new planting.
Proposed Hard Landscape Details
d) surface materials for vehicle and pedestrian areas; and
e) boundary treatments, including fencing, walling, etc.
Implementation and Retention
f) an implementation programme laying out a timescale for the completion of all landscape works; and
g) a landscape management plan, stating management responsibilities and a schedule of retention and monitoring operations for all landscaped areas for a minimum of five years following implementation.
4) Any tree, shrub or hedgerow forming part of an approved landscape scheme which dies, is removed or become seriously damaged or diseased, within a period of five years from the date of planting, shall be replaced during the next planting season following removal with another of a similar size and species as that originally planted, and in the same place.
5) The development hereby approved shall be carried out in strict accordance with the tree protection measures contained within Sections 6 and 7 and Appendices 4,5 and 6 of the Arboricultural Impact Assessment prepared by A.T. Coombes Associates Ltd, dated 27 February 2024.
6) The development hereby permitted shall be incorporate the following ecological enhancement measures outlined in Section 7 of the approved Design, Access & Planning Statement, received 05th March 2024.
• Bee bricks built into the masonry walls;
• Swift boxes integrated into the building design;
• Bird boxes installed on trees within the site.
The specific details of all of the enhancement measures including number, type and location, shall be submitted to and approved in writing by the local planning authority prior to installation. The enhancement measures shall then be installed, prior to the first occupation of the development, in accordance with the approved details and thereafter retained in a suitable condition to serve the intended purpose.
7) Prior to the first occupation of the development hereby permitted the vehicular/pedestrian/cyclist access over the footway shall be constructed in accordance with the highways specification (trad 4) and thereafter retained at the position shown on the approved plan. Arrangement shall be made for surface water drainage to be intercepted and disposed of separately so that it does not discharge from or onto the highway.
8) Prior to the first occupation of the development hereby permitted the proposed access and on-site car parking and turning area shall be laid out, levelled, surfaced and drained in accordance with the approved plan and retained thereafter available for that specific use.
9) Notwithstanding the provision of the Town and Country Planning (General Permitted Development) Order (2015), (or any Order revoking, amending or re- enacting that Order) no gates/bollard/chain/other means of obstruction shall be erected across the approved access.
10) The developer shall notify the local planning authority in writing of the date of commencement of the development hereby permitted. Such notification shall be provided within 14 days of the date of commencement of the development hereby permitted.
Mortgage calculator
Monthly repayment
£1,000 per month
Whole of market comparison
70+ lenders and 10,000+ products
The monthly repayments provided are estimates and should be used as a guide only. The actual amount you can borrow will depend on your personal financial situation and subject to a full application. For a more precise estimate, please use the Mojo mortgage calculator. Your home or property may be repossessed if you do not keep up repayments on your mortgage.



.png)