£220,000
Land for salePlot 2, 6 Foley Gardens, Bromsgrove B60
5 beds
3 baths
2 receptions
EPC Rating: F
About this property
Five Bedroom Detached Property
Full Planning Permission granted
Ideal for Developers or Self-Build Projects
Semi-Rural Location
Views over Fields
Development Opportunity with Granted Planning Permission - An exciting chance to acquire a prime plot of land, referred to as Plot 2, with full planning permission approved for the construction of a detached, five-bedroom home. Situated in the desirable semi-rural village of Stoke Prior, Bromsgrove, this opportunity offers excellent potential in a sought-after location, ideal for developers or self-build projects.
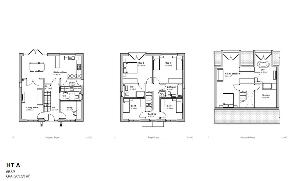
The property will benefit from off-street parking for several vehicles, and a single garage. The second garage shown is associated with the other house, plot 1.
Upon entering, the hallway will feature convenient under-stairs storage and a guest WC. To the left, a door will open into a spacious lounge, which in turn leads through double doors into a generously sized kitchen/diner. French doors from the kitchen/diner will open onto the rear garden, creating an ideal space for indoor-outdoor living. Adjoining the kitchen will be a practical utility room with external doorway to the rear garden. Also located on the ground floor is an additional reception room, perfect for use as a home office, playroom, or gym.
Stairs from the hallway will rise to the first-floor landing, providing access to four double bedrooms. Bedroom two will benefit from its own en-suite shower room, while the remaining bedrooms will be served by a modern family bathroom.
Slightly different to plot 1, the house has a further staircase that leads to the second floor, where the where the impressive master suite will be situated. This spacious room will feature a Juliette balcony, fitted wardrobe space, a dedicated storage area (with potential to be used as a dressing room), and a luxurious en-suite bathroom complete with a bathtub and a second Juliette balcony.
The property will also enjoy a large private rear garden, offering a great space for relaxing or entertaining.
Located in the charming village of Stoke Prior, Foley Gardens is a quiet and sought-after residential area offering a peaceful, semi-rural setting just outside Bromsgrove town centre. The area is well-regarded for its community feel, local amenities, and scenic countryside surroundings. Residents benefit from excellent transport links, with convenient access to the M5 and M42 motorways, making it ideal for commuters. Nearby, you'll find well-regarded schools, local pubs, parks, and canal-side walks, blending rural charm with everyday convenience.
Agent Note:
- Access and Services: Services will need to be laid through the access route, which is highlighted in blue on the site plan.
- Green Belt Land: The land to the rear of the site included in the sale, is within green belt designation and has historically be used as garden space.
Location
Located in the charming village of Stoke Prior, Foley Gardens is a quiet and sought-after residential area offering a peaceful, semi-rural setting just outside Bromsgrove town centre. The area is well-regarded for its community feel, local amenities, and scenic countryside surroundings. Residents benefit from excellent transport links, with convenient access to the M5 and M42 motorways, making it ideal for commuters. Nearby, you'll find well-regarded schools, local pubs, parks, and canal-side walks, blending rural charm with everyday convenience.
Disclaimer
These particulars are for guidance only and based on information approved by the seller. Accuracy cannot be guaranteed and details may contain errors or omissions. They do not form part of any contract. We are not surveyors or legal experts and cannot advise on condition, title, or other legal matters. Buyers should instruct their own professionals before making decisions. Photos are illustrative only and items shown are not necessarily included. Fixtures, fittings and appliances are not tested and may not be in working order. All measurements are approximate. No liability is accepted for loss from use of these details.
By law we must carry out id and aml checks and review buyers’ financial circumstances before a property can be marked sold subject to contract. This due diligence is required by trading standards. Checks start once a provisional offer is agreed. The cost is £30 incl. VAT per property, payable in advance via our onboarding system.
The property will benefit from off-street parking for several vehicles, and a single garage. The second garage shown is associated with the other house, plot 1.
Upon entering, the hallway will feature convenient under-stairs storage and a guest WC. To the left, a door will open into a spacious lounge, which in turn leads through double doors into a generously sized kitchen/diner. French doors from the kitchen/diner will open onto the rear garden, creating an ideal space for indoor-outdoor living. Adjoining the kitchen will be a practical utility room with external doorway to the rear garden. Also located on the ground floor is an additional reception room, perfect for use as a home office, playroom, or gym.
Stairs from the hallway will rise to the first-floor landing, providing access to four double bedrooms. Bedroom two will benefit from its own en-suite shower room, while the remaining bedrooms will be served by a modern family bathroom.
Slightly different to plot 1, the house has a further staircase that leads to the second floor, where the where the impressive master suite will be situated. This spacious room will feature a Juliette balcony, fitted wardrobe space, a dedicated storage area (with potential to be used as a dressing room), and a luxurious en-suite bathroom complete with a bathtub and a second Juliette balcony.
The property will also enjoy a large private rear garden, offering a great space for relaxing or entertaining.
Located in the charming village of Stoke Prior, Foley Gardens is a quiet and sought-after residential area offering a peaceful, semi-rural setting just outside Bromsgrove town centre. The area is well-regarded for its community feel, local amenities, and scenic countryside surroundings. Residents benefit from excellent transport links, with convenient access to the M5 and M42 motorways, making it ideal for commuters. Nearby, you'll find well-regarded schools, local pubs, parks, and canal-side walks, blending rural charm with everyday convenience.
Agent Note:
- Access and Services: Services will need to be laid through the access route, which is highlighted in blue on the site plan.
- Green Belt Land: The land to the rear of the site included in the sale, is within green belt designation and has historically be used as garden space.
Location
Located in the charming village of Stoke Prior, Foley Gardens is a quiet and sought-after residential area offering a peaceful, semi-rural setting just outside Bromsgrove town centre. The area is well-regarded for its community feel, local amenities, and scenic countryside surroundings. Residents benefit from excellent transport links, with convenient access to the M5 and M42 motorways, making it ideal for commuters. Nearby, you'll find well-regarded schools, local pubs, parks, and canal-side walks, blending rural charm with everyday convenience.
Disclaimer
These particulars are for guidance only and based on information approved by the seller. Accuracy cannot be guaranteed and details may contain errors or omissions. They do not form part of any contract. We are not surveyors or legal experts and cannot advise on condition, title, or other legal matters. Buyers should instruct their own professionals before making decisions. Photos are illustrative only and items shown are not necessarily included. Fixtures, fittings and appliances are not tested and may not be in working order. All measurements are approximate. No liability is accepted for loss from use of these details.
By law we must carry out id and aml checks and review buyers’ financial circumstances before a property can be marked sold subject to contract. This due diligence is required by trading standards. Checks start once a provisional offer is agreed. The cost is £30 incl. VAT per property, payable in advance via our onboarding system.
Mortgage calculator
Monthly repayment
£1,100 per month
Whole of market comparison
70+ lenders and 10,000+ products
The monthly repayments provided are estimates and should be used as a guide only. The actual amount you can borrow will depend on your personal financial situation and subject to a full application. For a more precise estimate, please use the Mojo mortgage calculator. Your home or property may be repossessed if you do not keep up repayments on your mortgage.
More information
Tenure
Council tax band
Council tax band not yet known
Ground rent
£0



.png)