Guide price
£400,000
Barn conversion for saleBarn Conversion Opportunity. Mount Castle Lane, Lenham ME17
Freehold
About this property
£400,000 - £450,000 Guide Price
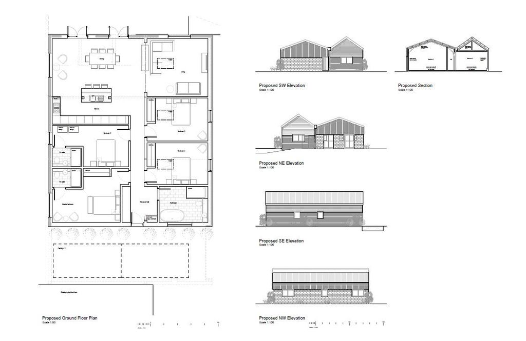
Substantial Barn Conversion Opportunity with Prior Planning Granted
Designs to Create a Single Storey, Four-Bedroom Attached Residence
In-Excess of Two Acres of Sprawling Grounds
Idyllic, Rural Hamlet Setting
Detached Four Bedroom Cottage with Two-Bedroom Annex is Available. Call For More Details
Excellent Road and Rail Networks
Highly Regarded Schooling Options
£400,000 - £450,000 Guide Price. Substantial Barn Conversion Opportunity with Prior Planning Granted. Designs to Create a Single Storey, Four-Bedroom Attached Residence. Detached Four Bedroom Cottage with Two-Bedroom Annex is Available. Call For More Details. In-Excess of Two Acres of Sprawling Grounds. Excellent Road and Rail Networks. Highly Regarded Schooling Options
Fine & Country are delighted to present Mount Castle Barn, with Prior Approval Granted and with designs for a stunning single-storey, four-bedroom attached barn conversion, set within over two acres of private grounds. Tucked away in a tranquil hamlet at the end of Mount Castle Lane, the property will enjoy far-reaching countryside views and an exceptional sense of space. This represents an inspiring opportunity to create a bespoke contemporary residence in a truly peaceful rural setting.
The barn presents an ideal opportunity for those wishing to design and create their own home within an established and characterful setting. Its single-storey design lends itself beautifully to bright, open-plan living, featuring generous proportions and a seamless connection to the surrounding landscape.
Nestled at the foot of the Kentish North Downs, the location combines rural tranquility with exceptional accessibility. The nearby villages of Lenham and Charing provide everyday amenities and mainline rail connections, while Ashford International, just over ten miles away, offers high-speed services to London.
Please note, the adjacent Mount Castle Cottage, a four bedroom detached residence with a two-bedrooms annex, set in approximately one acre of grounds, can be purchased with Mount Castle Barn or separately. Please contact Fine & Country for further details.
Fine & Country are delighted to present Mount Castle Barn, with Prior Approval Granted and with designs for a stunning single-storey, four-bedroom attached barn conversion, set within over two acres of private grounds. Tucked away in a tranquil hamlet at the end of Mount Castle Lane, the property will enjoy far-reaching countryside views and an exceptional sense of space. This represents an inspiring opportunity to create a bespoke contemporary residence in a truly peaceful rural setting.
The barn presents an ideal opportunity for those wishing to design and create their own home within an established and characterful setting. Its single-storey design lends itself beautifully to bright, open-plan living, featuring generous proportions and a seamless connection to the surrounding landscape.
Nestled at the foot of the Kentish North Downs, the location combines rural tranquility with exceptional accessibility. The nearby villages of Lenham and Charing provide everyday amenities and mainline rail connections, while Ashford International, just over ten miles away, offers high-speed services to London.
Please note, the adjacent Mount Castle Cottage, a four bedroom detached residence with a two-bedrooms annex, set in approximately one acre of grounds, can be purchased with Mount Castle Barn or separately. Please contact Fine & Country for further details.



.png)