From
£215,000
Land for saleEdeva Court, Cambridge CB1
Auction
About this property
To be offered on Monday 24 November
A freehold three storey block
Currently twelve flats (sold on leases)
Planning permission granted for an additional storey to comprise 1 x two bedroom and 3 x one bedroom
Structural and fire strategy reports are available in the legal pack
All new flats will benefits from private balcony's
Conveniently located for the amenities of Cambridge
Strapline
Auction Sale - 24/11/2025 - To book viewings, view the legal pack and register to bid please refer to the full sales particulars on the Savills Auctions website. -
Of interest to builders and developers
A detached block of flats with planning permission granted to provide an additional four flats (1 x two bedroom, 3 x one bedroom), will located for the Shopping and Recreational amenities of Cambridge. Existing 12 flats sold on long leases.
Development opportunity
Description
A freehold three storey block arranged as twelve flats (sold on leases)
Location
Edeva Court runs off the east side of Wulfstan Way
An extensive range of Shopping facilities are easily accessible in the centre of Cambridge
Recreational amenities of Wandlebury Country Park and Cherry Hinton Hall Park are within close distance
Transport
National Rail- Cambridge
Planning
Permission (ref 24/01604/ful) was granted by Cambridge City Council on 14th August 2024 for "Construction of a single storey extension at roof level comprising 4 No. Self-contained residential flats (Use Class C3), including provision of car parking, cycle parking and associated works.
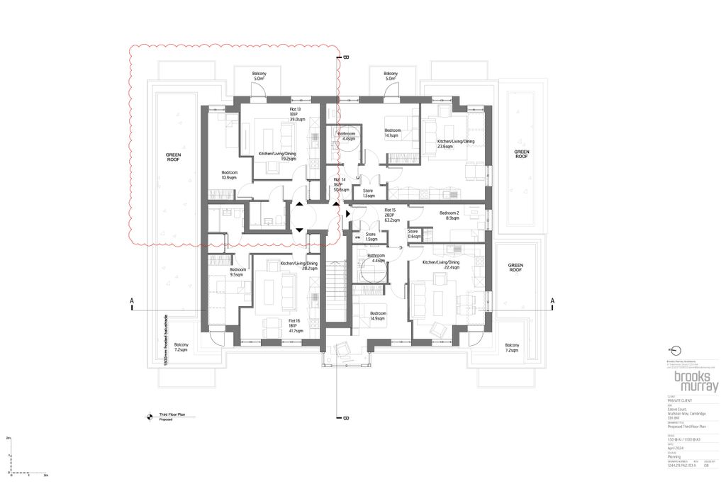
Proposed accommodation:
Third Floor:
Flat 13 (approximately 419 sq ft)- Kitchen/Living/Dining, Bedroom, Bathroom/WC, Balcony
Flat 14 (approximately 544 sq ft)- Kitchen/Living/Dining, Bedroom, Bathroom/WC, Balcony
Flat 15 (approximately 680 sq ft)- Kitchen/Living/Dining, Two Bedrooms, Bathroom/WC, Balcony
Flat 16 (approximately 448 sq ft), Kitchen/Living/Dining, Bedroom, Bathroom/WC, Balcony
Auction Sale - 24/11/2025 - To book viewings, view the legal pack and register to bid please refer to the full sales particulars on the Savills Auctions website. -
Of interest to builders and developers
A detached block of flats with planning permission granted to provide an additional four flats (1 x two bedroom, 3 x one bedroom), will located for the Shopping and Recreational amenities of Cambridge. Existing 12 flats sold on long leases.
Development opportunity
Description
A freehold three storey block arranged as twelve flats (sold on leases)
Location
Edeva Court runs off the east side of Wulfstan Way
An extensive range of Shopping facilities are easily accessible in the centre of Cambridge
Recreational amenities of Wandlebury Country Park and Cherry Hinton Hall Park are within close distance
Transport
National Rail- Cambridge
Planning
Permission (ref 24/01604/ful) was granted by Cambridge City Council on 14th August 2024 for "Construction of a single storey extension at roof level comprising 4 No. Self-contained residential flats (Use Class C3), including provision of car parking, cycle parking and associated works.
Proposed accommodation:
Third Floor:
Flat 13 (approximately 419 sq ft)- Kitchen/Living/Dining, Bedroom, Bathroom/WC, Balcony
Flat 14 (approximately 544 sq ft)- Kitchen/Living/Dining, Bedroom, Bathroom/WC, Balcony
Flat 15 (approximately 680 sq ft)- Kitchen/Living/Dining, Two Bedrooms, Bathroom/WC, Balcony
Flat 16 (approximately 448 sq ft), Kitchen/Living/Dining, Bedroom, Bathroom/WC, Balcony



.png)