Offers in region of
£350,000
Land for saleStaplehurst, Kent TN12
Chain free
Freehold
About this property
Hall
Living Room
Family Room/Diner
Kitchen
Utility Room
Study
Bedroom With Ensuite
Three Further Bedrooms
Family Bathroom
No Onward Chain
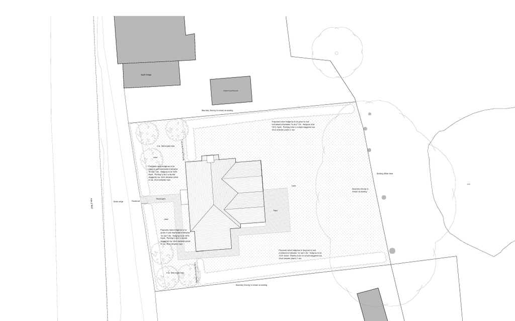
A chance to acquire a unique opportunity to build a fine, detached, family house situated within the heart of the village of Staplehurst. Site and floorplans are attached; fuller information can be accessed by logging onto Maidstone Borough Council Planning Site quoting the reference (5/501163/full).
The building plot is set within the popular Wealden village of Staplehurst with its range of local amenities including post office, supermarket, primary school and mainline station providing commuter services to London Charing Cross, Waterloo, London Bridge and Cannon Street (approximately 55 minutes). The County town of Maidstone is approximately 9 miles away providing a wider range of both shopping and leisure facilities. The property falls within the Cranbrook School catchment area.
The building plot is set within the popular Wealden village of Staplehurst with its range of local amenities including post office, supermarket, primary school and mainline station providing commuter services to London Charing Cross, Waterloo, London Bridge and Cannon Street (approximately 55 minutes). The County town of Maidstone is approximately 9 miles away providing a wider range of both shopping and leisure facilities. The property falls within the Cranbrook School catchment area.
Mortgage calculator
Monthly repayment
£1,750 per month
Whole of market comparison
70+ lenders and 10,000+ products
The monthly repayments provided are estimates and should be used as a guide only. The actual amount you can borrow will depend on your personal financial situation and subject to a full application. For a more precise estimate, please use the Mojo mortgage calculator. Your home or property may be repossessed if you do not keep up repayments on your mortgage.



.png)