Guide price
£295,000
Land for saleLand At The Bush, 199 High Street, Silverdale, Newcastle-Under-Lyme, Staffordshire ST5
Chain free
About this property
Purchase price is subject to 20% VAT
Newcastle Borough Council Planning Reference: 25/00387/ful
Planning approved for 8 residential dwellings (mix of 2- & 3-bed units)
Allocated parking for all homes
Sought-after location close to Newcastle-under-Lyme and Keele University
Established residential setting with strong local demand
Accessible site with good transport links and local amenities nearby
Ideal for developers, investors or joint-venture partners
An exciting opportunity to acquire a prime residential development site with full planning consent for the construction of eight new dwellings comprising a mix of two- and three-bedroom homes, each benefitting from allocated parking.
Situated in a well-established residential area close to the amenities of Silverdale and Newcastle-under-Lyme town centre, the site offers excellent connectivity to Keele University, major road networks including the A34 and M6, and a range of local schools, shops and transport links.
The approved scheme has been thoughtfully designed to complement the surrounding area, offering a balanced mix of homes ideal for local buyers, first-time purchasers and downsizers alike. With strong demand for quality, energy-efficient housing across the region, this development represents a compelling opportunity for small to medium-sized builders or investors seeking a ready-to-go site with planning secured.
For more information, please contact the appointed Land & New homes team of Heywoods Estate Agents.
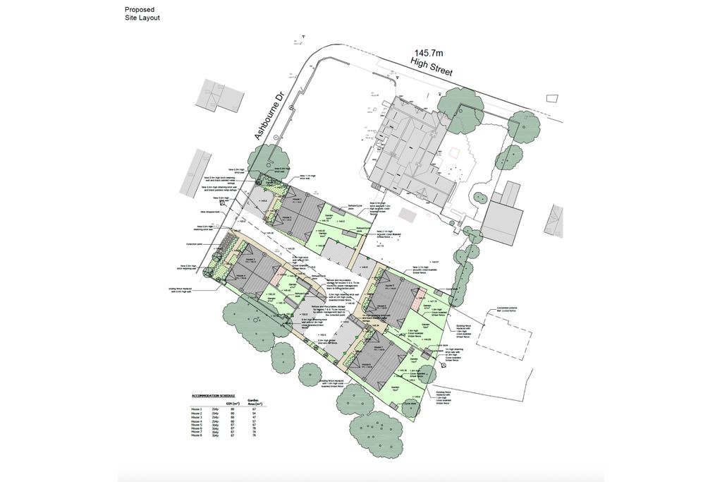
House 1
2 Bedrooms
gia = 80m2
Garden = 67m2
House 2
2 Bedrooms
gia = 80m2
Garden = 54m2
House 3
2 Bedrooms
gia = 80m2
Garden = 47m2
House 4
2 Bedrooms
gia = 80m2
Garden = 57m2
House 5
3 Bedrooms
gia = 87m2
Garden = 67m2
House 6
2 Bedrooms
gia = 87m2
Garden = 78m2
House 7
2 Bedrooms
gia = 87m2
Garden = 74m2
House 8
2 Bedrooms
gia = 87m2
Garden = 76m2
Situated in a well-established residential area close to the amenities of Silverdale and Newcastle-under-Lyme town centre, the site offers excellent connectivity to Keele University, major road networks including the A34 and M6, and a range of local schools, shops and transport links.
The approved scheme has been thoughtfully designed to complement the surrounding area, offering a balanced mix of homes ideal for local buyers, first-time purchasers and downsizers alike. With strong demand for quality, energy-efficient housing across the region, this development represents a compelling opportunity for small to medium-sized builders or investors seeking a ready-to-go site with planning secured.
For more information, please contact the appointed Land & New homes team of Heywoods Estate Agents.
House 1
2 Bedrooms
gia = 80m2
Garden = 67m2
House 2
2 Bedrooms
gia = 80m2
Garden = 54m2
House 3
2 Bedrooms
gia = 80m2
Garden = 47m2
House 4
2 Bedrooms
gia = 80m2
Garden = 57m2
House 5
3 Bedrooms
gia = 87m2
Garden = 67m2
House 6
2 Bedrooms
gia = 87m2
Garden = 78m2
House 7
2 Bedrooms
gia = 87m2
Garden = 74m2
House 8
2 Bedrooms
gia = 87m2
Garden = 76m2



.png)