Guide price
£1,350,000
4 bed country house for saleBow Street, Bramley RG26
4 beds
4 baths
3 receptions
Sold STC
New home
Freehold
About this property
A brand-new detached 'barn-style' house sold off plan
One of just 4 located in a 'farmyard' setting in this popular village.
4 bedrooms, 3 bathrooms.
3 reception rooms and kitchen/breakfast room with utility.
Large, private garden and double garage.
Randalls Residential Estate Agents. An exceptional brand new individual detached barn-style home with a very large garden sold off plan
Reception hall, sitting room, dining room, family room, kitchen/breakfast room, utility room, master bedroom with en-suite dressing room and shower room, guest bedroom with en-suite shower room, two further bedrooms, family bathroom, 'secret' study. Double garage, gardens.
Basingstoke 6 miles
M3 (j 6) 7 miles
London Waterloo from Basingstoke from 45 minutes
London Paddington from Bramley from 51 minutes.
Situation
Bow Street is a select development located off The Street close to the popular The Barn cafe and farm shop in Lantern Courtyard. Bramley itself is a popular Hampshire village located some 6 miles to the north of Basingstoke. In addition to The Barn, the village has a primary school, a shop, a bakery and a public house.
There is a branch line railway station within the village giving access to Basingstoke and Reading and thence to Waterloo and Paddington respectively. There is good access to the A33 which provides easy access to the M3 and M4 at Basingstoke and Reading respectively, and both these larger towns offer a comprehensive range of leisure, educational and recreational facilities.
The property
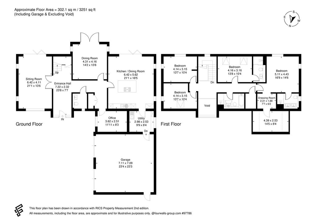
This exceptional development of just four traditionally built detached houses by Fenton Homes is nearing completion. The overall site extends to about 2 acres. The layout follows traditional farmyard arrangements typical for Bramley with a tight-knit, rectilinear courtyard arrangement and a prominent farmhouse. 4 Bow Street is an attractive home built in the style of a converted barn which offers flexible accommodation extending to about 2750sq.ft.
On the ground floor, the front door opens to a spacious reception hall from which the staircase rises and turns to the galleried first floor landing. To one side is the triple aspect sitting room, whilst to the other are the dining room and the study. The dual aspect kitchen/breakfast room has bi-fold doors opening to the rear terrace. It is fully fitted and has an island. There is also a utility room and a cloakroom.
On the first floor, the master bedroom has an en-suite dressing room (with 'secret study off) and shower room. The guest bedroom also has an en-suite shower room. There are two further bedrooms and the family bathroom.
For further details please refer to the floorplan.
Outside
The extensive gardens extend right around the property. To the front, they are landscaped and the paved driveway provides parking in front of the dattached double garage. To the sides and rear the garden is enclosed and laid primarily to lawn with a wide paved terrace.
Local authority
Basingstoke and Deane Borough Council
Services
Mains water, electricity and drainage. Air source heat pump with underfloor heating to the ground floor and radiator heating to the first floor.
Tenure
Freehold with small management charge to cover communal drive area. 10 year warranty.
Viewing
By appointment with Randalls Residential Estate Agents in Basingstoke.
Post code: RG26 5DE
Reception hall, sitting room, dining room, family room, kitchen/breakfast room, utility room, master bedroom with en-suite dressing room and shower room, guest bedroom with en-suite shower room, two further bedrooms, family bathroom, 'secret' study. Double garage, gardens.
Basingstoke 6 miles
M3 (j 6) 7 miles
London Waterloo from Basingstoke from 45 minutes
London Paddington from Bramley from 51 minutes.
Situation
Bow Street is a select development located off The Street close to the popular The Barn cafe and farm shop in Lantern Courtyard. Bramley itself is a popular Hampshire village located some 6 miles to the north of Basingstoke. In addition to The Barn, the village has a primary school, a shop, a bakery and a public house.
There is a branch line railway station within the village giving access to Basingstoke and Reading and thence to Waterloo and Paddington respectively. There is good access to the A33 which provides easy access to the M3 and M4 at Basingstoke and Reading respectively, and both these larger towns offer a comprehensive range of leisure, educational and recreational facilities.
The property
This exceptional development of just four traditionally built detached houses by Fenton Homes is nearing completion. The overall site extends to about 2 acres. The layout follows traditional farmyard arrangements typical for Bramley with a tight-knit, rectilinear courtyard arrangement and a prominent farmhouse. 4 Bow Street is an attractive home built in the style of a converted barn which offers flexible accommodation extending to about 2750sq.ft.
On the ground floor, the front door opens to a spacious reception hall from which the staircase rises and turns to the galleried first floor landing. To one side is the triple aspect sitting room, whilst to the other are the dining room and the study. The dual aspect kitchen/breakfast room has bi-fold doors opening to the rear terrace. It is fully fitted and has an island. There is also a utility room and a cloakroom.
On the first floor, the master bedroom has an en-suite dressing room (with 'secret study off) and shower room. The guest bedroom also has an en-suite shower room. There are two further bedrooms and the family bathroom.
For further details please refer to the floorplan.
Outside
The extensive gardens extend right around the property. To the front, they are landscaped and the paved driveway provides parking in front of the dattached double garage. To the sides and rear the garden is enclosed and laid primarily to lawn with a wide paved terrace.
Local authority
Basingstoke and Deane Borough Council
Services
Mains water, electricity and drainage. Air source heat pump with underfloor heating to the ground floor and radiator heating to the first floor.
Tenure
Freehold with small management charge to cover communal drive area. 10 year warranty.
Viewing
By appointment with Randalls Residential Estate Agents in Basingstoke.
Post code: RG26 5DE


.png)