Offers in region of
£180,000
6 bed detached house for saleNorton Road, Penygroes, Llanelli, Carmarthenshire SA14
6 beds
Freehold
About this property
Substantial Investment Opportunity Close To M4 & Dual Carriageways Historical Local Landmark
Original Features, Decorative Coving & Parquet Flooring
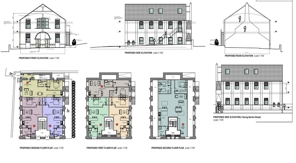
Historic Chapels with Full Planning Permission – Conversion Opportunity into 7 Apartments
An exceptional opportunity to acquire a beautiful historic Chapel, dating back to 1825, with full planning permission granted for conversion into seven stylish apartments.
The approved plans provide for three spacious apartments on the ground floor, three on the first floor, and a large penthouse-style apartment occupying the top level - offering an ideal mix of layouts to suit both investors and owner-occupiers.
This unique property is being sold as seen, retaining a wealth of stunning period features, including original pews, a magnificent pipe organ, and beautiful architectural details that reflect its rich heritage. These features provide the perfect foundation for a sympathetic restoration blending historic character with modern design.
Set within a desirable location, the Chapels present an exciting development prospect with enormous potential for creating luxury residences full of charm and individuality.
A truly rare opportunity to bring new life to an iconic landmark property.
An exceptional opportunity to acquire a beautiful historic Chapel, dating back to 1825, with full planning permission granted for conversion into seven stylish apartments.
The approved plans provide for three spacious apartments on the ground floor, three on the first floor, and a large penthouse-style apartment occupying the top level - offering an ideal mix of layouts to suit both investors and owner-occupiers.
This unique property is being sold as seen, retaining a wealth of stunning period features, including original pews, a magnificent pipe organ, and beautiful architectural details that reflect its rich heritage. These features provide the perfect foundation for a sympathetic restoration blending historic character with modern design.
Set within a desirable location, the Chapels present an exciting development prospect with enormous potential for creating luxury residences full of charm and individuality.
A truly rare opportunity to bring new life to an iconic landmark property.
Mortgage calculator
Monthly repayment
£900 per month
Whole of market comparison
70+ lenders and 10,000+ products
The monthly repayments provided are estimates and should be used as a guide only. The actual amount you can borrow will depend on your personal financial situation and subject to a full application. For a more precise estimate, please use the Mojo mortgage calculator. Your home or property may be repossessed if you do not keep up repayments on your mortgage.



.png)