Guide price
£2,500,000
(£208/sq. ft)
Land for saleChilswell Lane, Oxford OX1
12,000 sq. ft
EPC Rating: E
About this property
Rural Setting
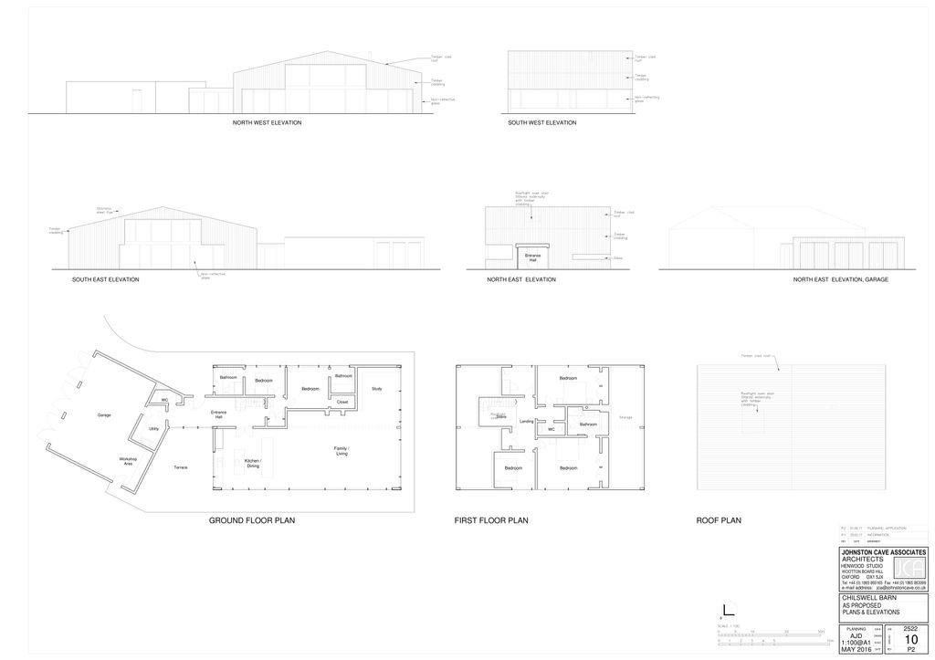
An exciting building opportunity for a best in class contemporary home
12000 square feet of living space
Set in elevated grounds of 4.7 acres
Create a unique legacy house
A very desirable location
Detailed planning consent
Commanding views
Close to first class schools
Situation
Lying approx. 5.2 miles from Oxford city centre, Boars Hill is an extremely well regarded residential area with a significant number of sizeable detached houses in large plots. There is easy access to the Oxford Ring Road, the A34, A420 and subsequent links to the M4 and M40, while London Oxford Airport is approx. 8.4 miles away. Also within easy reach are stations at both Oxford, Oxford Parkway, and Didcot and a number of very highly regarded schools at both Oxford and Abingdon.
Property Ref Number:
Ham-14824
Mortgage calculator
£12,506 per month
70+ lenders and 10,000+ products
The monthly repayments provided are estimates and should be used as a guide only. The actual amount you can borrow will depend on your personal financial situation and subject to a full application. For a more precise estimate, please use the Mojo mortgage calculator. Your home or property may be repossessed if you do not keep up repayments on your mortgage.
More information
Tenure
Freehold
Council tax band
This Property is exempt from Council Tax.



.png)