£150,000
Land for saleCryol Road, Ashford, Kent TN23
Freehold
About this property
Development site
1-9 Cryol Road, Ashford
A resolution to grant planning permission subject to Water Neutrality credits being secured
Two Bungalows
Vacant Site
Ashford 2025/1326
*** development site ***
1-9 Cryol Road, Ashford, Kent, TN23 5AN
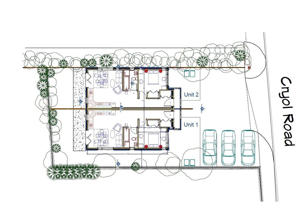
Currently a vacant garage compound with 9 garages and forecourt to redevelop the site into a pair of spacious bungalows at 617sqft each.
A resolution to grant planning permission 2025/1326 subject to Water Neutrality credits being secured.
Each bungalow is currently 1 bedroom with large open plan living space ideal for aging or wheelchair dependant occupiers.
The Property
Currently a concrete forecourt and 9 garages the site is set amongst residential properties and adjacent to the St Francis Church. With good frontage onto Cryol Road sufficient services are expected to be available to serve the site.
Each property has been thoughtfully designed to provide accessible accommodation within the spacious 617sqft of single level living. Making these properties ideal for aging or wheelchair dependant occupiers. To the front of the properties are dedicated parking spaces and both properties have private rear gardens.
Proposal
Offers are invited for the site based on the current planning consent. And a full set of consented plans and reports are available on request.
Location
The property is located in this residential area of Ashford, directly adjacent to St Francis Church.
Contact
We would ask that all site visits are conducted with a high degree of discretion. And please treat this opportunity as Private & Confidential for the time being as the clients do not wish the neighbours to be alerted to the plans to sell the property. But the site is unsecured and vacant so site visits do not need to be organised.
Identification checks
Should a purchaser(s) have an offer accepted on a property marketed by Miles & Barr, they will need to undertake an identification check. This is done to meet our obligation under Anti Money Laundering Regulations (aml) and is a legal requirement. We use a specialist third party service to verify your identity. The cost of these checks is £60 inc. VAT per purchase, which is paid in advance, when an offer is agreed and prior to a sales memorandum being issued. This charge is non-refundable under any circumstances.
Location
Fast becoming a popular place to call home, particularly for commuters; Ashford benefits from a Central Kent Location with great transport links to London via HS1 in under 40 minutes and the Port of Dover via the M20. Ashford also benefits from a vast array of shopping locations including the County Square, Mcarthur Glen Designer Outlet and Eureka Park. With award winning developments taking place and ample surrounding countryside, Ashford really is the place to be right now.
1-9 Cryol Road, Ashford, Kent, TN23 5AN
Currently a vacant garage compound with 9 garages and forecourt to redevelop the site into a pair of spacious bungalows at 617sqft each.
A resolution to grant planning permission 2025/1326 subject to Water Neutrality credits being secured.
Each bungalow is currently 1 bedroom with large open plan living space ideal for aging or wheelchair dependant occupiers.
The Property
Currently a concrete forecourt and 9 garages the site is set amongst residential properties and adjacent to the St Francis Church. With good frontage onto Cryol Road sufficient services are expected to be available to serve the site.
Each property has been thoughtfully designed to provide accessible accommodation within the spacious 617sqft of single level living. Making these properties ideal for aging or wheelchair dependant occupiers. To the front of the properties are dedicated parking spaces and both properties have private rear gardens.
Proposal
Offers are invited for the site based on the current planning consent. And a full set of consented plans and reports are available on request.
Location
The property is located in this residential area of Ashford, directly adjacent to St Francis Church.
Contact
We would ask that all site visits are conducted with a high degree of discretion. And please treat this opportunity as Private & Confidential for the time being as the clients do not wish the neighbours to be alerted to the plans to sell the property. But the site is unsecured and vacant so site visits do not need to be organised.
Identification checks
Should a purchaser(s) have an offer accepted on a property marketed by Miles & Barr, they will need to undertake an identification check. This is done to meet our obligation under Anti Money Laundering Regulations (aml) and is a legal requirement. We use a specialist third party service to verify your identity. The cost of these checks is £60 inc. VAT per purchase, which is paid in advance, when an offer is agreed and prior to a sales memorandum being issued. This charge is non-refundable under any circumstances.
Location
Fast becoming a popular place to call home, particularly for commuters; Ashford benefits from a Central Kent Location with great transport links to London via HS1 in under 40 minutes and the Port of Dover via the M20. Ashford also benefits from a vast array of shopping locations including the County Square, Mcarthur Glen Designer Outlet and Eureka Park. With award winning developments taking place and ample surrounding countryside, Ashford really is the place to be right now.
Mortgage calculator
Monthly repayment
£750 per month
Whole of market comparison
70+ lenders and 10,000+ products
The monthly repayments provided are estimates and should be used as a guide only. The actual amount you can borrow will depend on your personal financial situation and subject to a full application. For a more precise estimate, please use the Mojo mortgage calculator. Your home or property may be repossessed if you do not keep up repayments on your mortgage.



.png)