Offers in region of
£1,100,000
Land for saleLiverpool Road, Burnley, Lancashire BB12
About this property
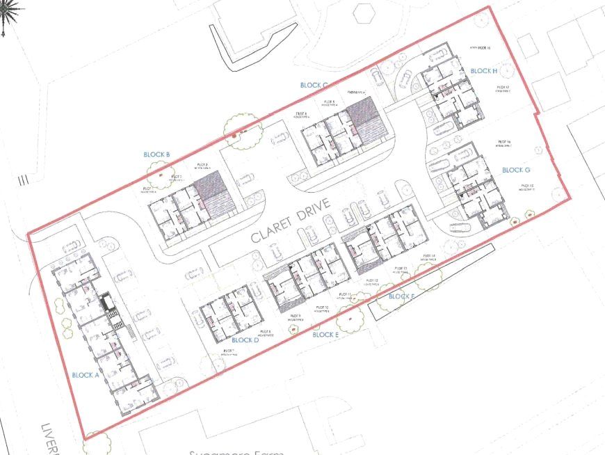
Development opportunity with plans for 28 units
Entwistle Green are delighted to the present this rare development opportunity to the market. Based in the highly convenient and sought after area of Lowerhouse & Rosegrove, Burnley, this site is within very easy reach to the M65 motorway links, supermarkets and schools.
Outline plans have been submitted for the development of 28 residential units, comprising of 18 houses (6x semi-detached & 12x terraced) and 10x duplex apartments.
Planning status is pending approval. Full plans can be found via Burnley Council's public access portal via reference out/2025/0307.
For more information or to make arrangements to view, please contact the team at Entwistle Green Burnley today.
Entwistle Green are delighted to the present this rare development opportunity to the market. Based in the highly convenient and sought after area of Lowerhouse & Rosegrove, Burnley, this site is within very easy reach to the M65 motorway links, supermarkets and schools.
Outline plans have been submitted for the development of 28 residential units, comprising of 18 houses (6x semi-detached & 12x terraced) and 10x duplex apartments.
Planning status is pending approval. Full plans can be found via Burnley Council's public access portal via reference out/2025/0307.
For more information or to make arrangements to view, please contact the team at Entwistle Green Burnley today.
Mortgage calculator
Monthly repayment
£5,502 per month
Whole of market comparison
70+ lenders and 10,000+ products
The monthly repayments provided are estimates and should be used as a guide only. The actual amount you can borrow will depend on your personal financial situation and subject to a full application. For a more precise estimate, please use the Mojo mortgage calculator. Your home or property may be repossessed if you do not keep up repayments on your mortgage.
More information
Tenure
Council tax band
A band has not yet been confirmed.



.png)