£800,000
3 bed bungalow for saleClaverhambury Road, Waltham Abbey, Essex EN9
3 beds
1 bath
1 reception
EPC Rating: C
Just added
Freehold
About this property
1.33 acre plot size
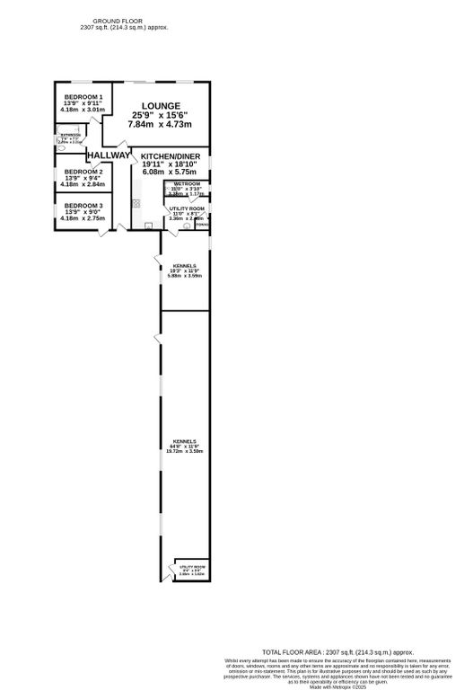
1317 sq ft 3 bedroom bungalow
990 sq ft of Kennel Space
Solar Panels
Air Source Heat Pump
On-Site grooming parlour
No Boarding Licence in Place
4000 Gallon Cesspit
Private Borehole
EPC 69C / Council Tax Band A
Set within a generous plot of approximately 1.33 acres, this unique property offers an excellent opportunity for buyers seeking a versatile home and business setup in a peaceful semi-rural location.
The site includes a well-proportioned three bedroom detached bungalow measuring around 1317 square feet. The home is supported by modern eco-friendly additions including solar panels and an air source heat pump.
To the front is a substantial kennel facility of roughly 990 square feet. There are currently 12 kennels in place, with clear scope to increase capacity subject to any required permissions. A grooming parlour is also situated on site, making this an ideal purchase for those looking to develop or expand a canine-related business. Please note that there is no boarding licence currently in place.
Further features include off street parking for up to five vehicles, a 4000 gallon cesspit and a private borehole, providing valuable infrastructure for the site.
Set within attractive surroundings and offering significant potential, 7 Claverhambury Kennels presents a rare opportunity in this sought-after part of Waltham Abbey.
The site includes a well-proportioned three bedroom detached bungalow measuring around 1317 square feet. The home is supported by modern eco-friendly additions including solar panels and an air source heat pump.
To the front is a substantial kennel facility of roughly 990 square feet. There are currently 12 kennels in place, with clear scope to increase capacity subject to any required permissions. A grooming parlour is also situated on site, making this an ideal purchase for those looking to develop or expand a canine-related business. Please note that there is no boarding licence currently in place.
Further features include off street parking for up to five vehicles, a 4000 gallon cesspit and a private borehole, providing valuable infrastructure for the site.
Set within attractive surroundings and offering significant potential, 7 Claverhambury Kennels presents a rare opportunity in this sought-after part of Waltham Abbey.



.png)