Guide price
£350,000
Land for saleSutton Lane, Sutton Benger SN15
4 beds
2 baths
1 reception
EPC Rating: E
Freehold
About this property
Land for sale with planning
Freehold
Village location
(ref: Pl/2025/06181)
Agent note: All site visits are to be accompanied by Ellis Smith Or Chris Pomphrey, and offers should be submitted in writing to the sellers agent
by the 14th of January 2026, no later than 12pm.
A rare opportunity to acquire a prime site situated in the desirable village of Sutton Benger, a location well regarded for its strong community feel and convenient access to surrounding towns.
Sutton Benger offers a blend of rural charm and essential amenities, including a popular primary school, village hall, playground, tennis courts, recreation field, church, local pub and renowned restaurant, making it an attractive setting for a range of buyers.
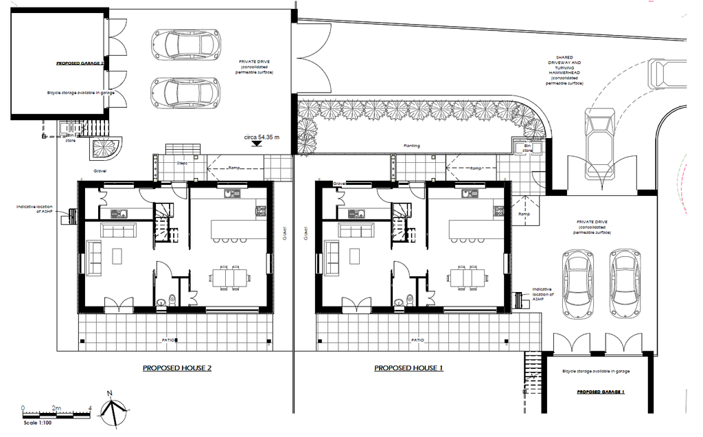
The site benefits from detailed planning permission for two 4-bedroom houses (ref: Pl/2025/06181) and is well positioned for those seeking a balance between village living and connectivity.
Sutton Benger benefits from superb transport links, with easy access to the A350 and M4, providing direct routes to Chippenham, Bath, Bristol, and Swindon. Chippenham railway station, offering mainline services to London and the South West, is also within close reach.
Its strategic position and appealing village environment make this an exciting prospect for investors, developers, or self-builders.
by the 14th of January 2026, no later than 12pm.
A rare opportunity to acquire a prime site situated in the desirable village of Sutton Benger, a location well regarded for its strong community feel and convenient access to surrounding towns.
Sutton Benger offers a blend of rural charm and essential amenities, including a popular primary school, village hall, playground, tennis courts, recreation field, church, local pub and renowned restaurant, making it an attractive setting for a range of buyers.
The site benefits from detailed planning permission for two 4-bedroom houses (ref: Pl/2025/06181) and is well positioned for those seeking a balance between village living and connectivity.
Sutton Benger benefits from superb transport links, with easy access to the A350 and M4, providing direct routes to Chippenham, Bath, Bristol, and Swindon. Chippenham railway station, offering mainline services to London and the South West, is also within close reach.
Its strategic position and appealing village environment make this an exciting prospect for investors, developers, or self-builders.
Mortgage calculator
Monthly repayment
£1,750 per month
Whole of market comparison
70+ lenders and 10,000+ products
The monthly repayments provided are estimates and should be used as a guide only. The actual amount you can borrow will depend on your personal financial situation and subject to a full application. For a more precise estimate, please use the Mojo mortgage calculator. Your home or property may be repossessed if you do not keep up repayments on your mortgage.



.png)