Guide price
£325,000
7 bed property for saleFurnival Street, Sandbach CW11
7 beds
2 baths
3 receptions
EPC Rating: C
Freehold
About this property
Take a moment to view our guided tour of this impressive opportunity!
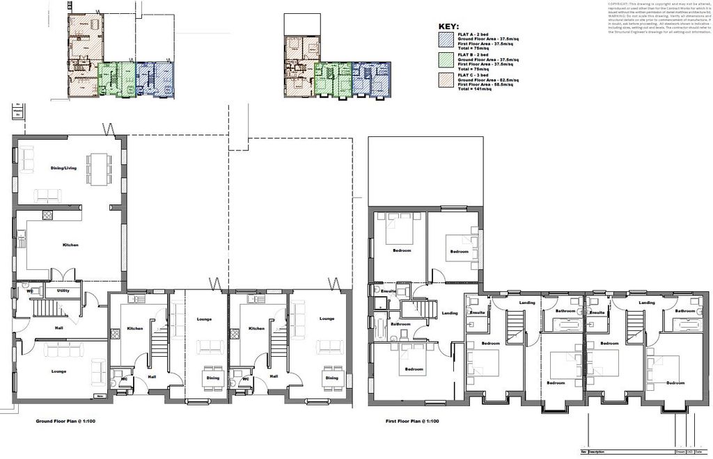
For sale via informal tender - closing date January 31st 2026! Nestled on Furnival Street in the charming town of Sandbach, this versatile business property presents an exciting opportunity for prospective buyers or investors. Originally established as a care home which has been divided into two large semi-detached homes at the front & this substancial detached building spans to approx 296 square meters with a large three bedroom apartment on the first floor and 7 rooms plus bathroom and utility space on the ground floor. The building dates back to the 1970s and boasts a wealth of potential for various uses, whether you envision continuing its legacy in care or transforming it into a different venture.
One of the standout features of this property is the granted planning permission (Ref: 25/1052/ful) for the construction of three terrace houses, providing an excellent opportunity for those looking to develop residential units in a desirable area. This aspect not only enhances the property's value but also opens the door to a range of possibilities for future growth and development.
The property is conveniently located just a stone's throw from the town centre, ensuring easy access to local amenities and services. With parking available for up to seven vehicles, it offers practicality for both staff and visitors alike.
In summary, this property on Furnival Street is a rare find, combining a prime location, generous parking, and significant potential for both business and residential development. Whether you are an entrepreneur seeking a new venture or an investor looking to capitalise on the growing demand for housing, this property is well worth your consideration. Call us today to arrange your all-important viewing on this exciting opportunity.
For sale via informal tender - closing date January 31st 2026! Nestled on Furnival Street in the charming town of Sandbach, this versatile business property presents an exciting opportunity for prospective buyers or investors. Originally established as a care home which has been divided into two large semi-detached homes at the front & this substancial detached building spans to approx 296 square meters with a large three bedroom apartment on the first floor and 7 rooms plus bathroom and utility space on the ground floor. The building dates back to the 1970s and boasts a wealth of potential for various uses, whether you envision continuing its legacy in care or transforming it into a different venture.
One of the standout features of this property is the granted planning permission (Ref: 25/1052/ful) for the construction of three terrace houses, providing an excellent opportunity for those looking to develop residential units in a desirable area. This aspect not only enhances the property's value but also opens the door to a range of possibilities for future growth and development.
The property is conveniently located just a stone's throw from the town centre, ensuring easy access to local amenities and services. With parking available for up to seven vehicles, it offers practicality for both staff and visitors alike.
In summary, this property on Furnival Street is a rare find, combining a prime location, generous parking, and significant potential for both business and residential development. Whether you are an entrepreneur seeking a new venture or an investor looking to capitalise on the growing demand for housing, this property is well worth your consideration. Call us today to arrange your all-important viewing on this exciting opportunity.



.png)