Offers over
£600,000
(£382/sq. ft)
4 bed detached house for saleRoyston Road, Harston CB22
4 beds
1 bath
2 receptions
1,572 sq. ft
EPC Rating: E
About this property
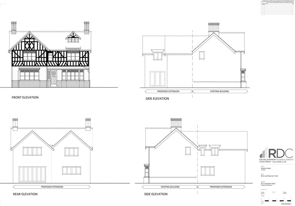
Planning Permission Approved Ref No: 25/01568/hful
Period 4 Bedroom Detached Home
Located in a Highly Sought After Cambridgeshire Village
Fantastic Village Amenities
Excellent Opportunity to Add Value
Ample Parking for 3 Cars
Just a 10 Minute Drive to Cambridge City Centre
No Onward Chain
2 Reception Rooms
4 Spacious Bedrooms
Ensum Brown are delighted to offer for sale this period 4-bedroom detached family home in the highly sought-after Cambridgeshire village of Harston. This property is within walking distance of fantastic amenities and offers great opportunity to add further value, with 2 reception rooms, a large kitchen, 2 cloakroom WCs, 4 well-proportioned double bedrooms, a family bathroom, ample parking for 3 vehicles, and planning permission approved ref No: 25/01568/hful.
This lovely property enjoys excellent kerb appeal, set back from the main road in a private setting and surrounded by fencing and mature trees. Upon stepping inside, the entrance hallway is bright and welcoming, with stairs to the first floor and access through to the downstairs living space, including an ideally situated cloakroom WC.
The kitchen is bright and spacious, enjoying a window and door to the garden and conservatory respectively, a range of base and wall units, laminate worktops, tiled flooring and splashbacks, spotlights, an integrated double oven, hob and extractor and space for a dishwasher and other small kitchen appliances. There is access through to a large store room/utility space, as well as through to a spacious conservatory with lovely garden views and access to a 2nd cloakroom WC.
Adjacent to the kitchen, the dining room is very bright and airy, benefiting from a lovely bay window to a front aspect, a feature fireplace, pendant lighting, space for a large dining setting. The lounge is an incredibly good size, featuring a bay window to a front aspect, double sliding doors to a garden aspect, a feature fireplace, carpets, pendant and sconce lighting, and vast amounts of space for lounge and storage furniture.
Upstairs to the first floor, this lovely home offers further excellent potential, with 4 well-proportioned double bedrooms, integrated storage/wardrobes, and a family bathroom, comprising a bath with an overhead shower, a WC and a hand wash basin.
Outside, to the rear, the garden offers a lovely spot to sit and relax during the warmer months. It is laid to lawn and paved patio, providing space for garden furniture, cooking al fresco and entertaining guests. There is lots of space for potted plants, and huge scope for new owners to transform and make their own.
Contact Ensum Brown today to arrange your private viewing appointment.
Location - Harston
Harston is a highly regarded village situated off the A10, just 3.5 miles south of Cambridge. Local facilities include a post office/general store, doctors’ surgery, primary school and recreation ground. Cambridge is an historic University city providing an attractive combination of ancient and modern buildings, colleges, the tree-lined river Cam, extensive shopping and cultural facilities, together with an excellent choice of independent schools, the majority of which are readily accessible on the south and western sides of the city. Cambridge is not only world renowned for its academic achievements but has also become a 'high tech' and 'bio tech' hub with the University Research and Development Laboratories and the internationally renowned Cambridge Science Park. 16 London Road is also particularly well placed for access to Addenbrooke's Hospital/Biomedical Campus, one of the largest centres of health, science and medical research in the world.
For the commuter, road and rail communications are excellent, with the nearby M11 providing access to Stansted Airport and the M25 to the south and to the A14 and A1, for access to the north. There are mainline railway stations providing services to London's King's Cross at Foxton (about 3 miles) and Royston (about 8 miles - King's Cross 38 minutes). Whittlesford Parkway Station (about 7 miles) provides services to Liverpool Street in about 1 hour.
We encourage you to visit Harston to see for yourself the wonderful features this village has to offer.
EPC Rating: E
Mortgage calculator
£3,001 per month
70+ lenders and 10,000+ products
The monthly repayments provided are estimates and should be used as a guide only. The actual amount you can borrow will depend on your personal financial situation and subject to a full application. For a more precise estimate, please use the Mojo mortgage calculator. Your home or property may be repossessed if you do not keep up repayments on your mortgage.
More information
Tenure
Freehold
Council tax band
Council tax band not yet known
Ground rent
£0



.png)