Guide price
£85,000
Property for sale114 Hilltown, Dundee, Angus DD3
Auction
Freehold
About this property
Development opportunity
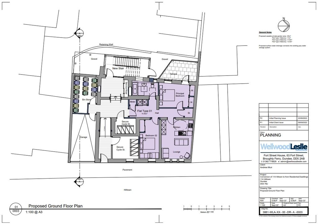
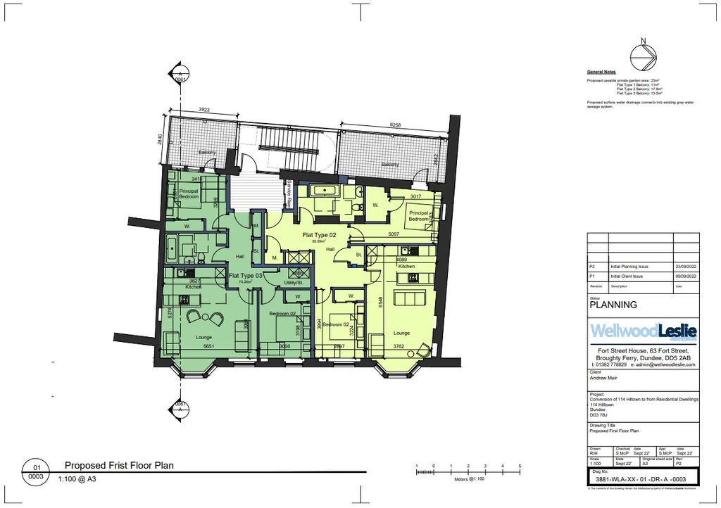
Full planning for five two-bedroom flats
Excellent location
Development opportunity in Dundee
Going under the hammer is this ready-made development opportunity with full planning permission in the Hilltown area of Dundee. The property was a former mill and currently has planning permission to convert into five two-bedroom flats across three storeys with bin shed and cycle storage. Full details of the planning can be accessed by Dundee city council planning portal using the reference 22/00699/full. Similar sized new build flats nearby are achieving up to £200,000. This is sure to attract lots of attention from developers locally and further afield and early expression is highly recommended to avoid missing out.
Located in a well-established residential area of Dundee, close to local amenities, supermarkets, primary and secondary schools, public transport routes and easy access to Dundee city centre and universities. This area is popular with renters, first-time buyers, and students, making it an excellent investment location.
Purchasers notes
Please note that these particulars have been prepared by us on the basis of information provided by our client. If there is any aspect of these particulars that you wish clarified or that you find misleading please contact the office where further information will be made available.
• No tests have been made of services, equipment or fittings.
• No warranty is given or implied as to the condition of buildings, services, fixtures, fittings etc.
• All measurements, distances and acres are approximate.
• Fixtures, fittings and other items are not included unless specified in these details.
This material is protected by the laws of copyright. The owner of the copyright is Auction House Scotland. The property sheet forms part of our database and is protected by the database rights and copyright laws. No unauthorised copying or distribution without permission. Auction House Scotland is revolutionising the sale of property in Scotland.
Remember, if you are buying a property which is being sold by Auction House Scotland you will normally be responsible for payment of a Buyer's Premium or Auction Fee of 3.6% of the purchase price subject to a minimum of £3600 inclusive of VAT. More details can be obtained on application.
Cybercrime Warning:
Please be aware that there is a significant risk posed by cyber fraud, specifically affecting email accounts and bank account details. Please note that our bank account details will not change during the course of A transaction and we will not change our bank details via email. Please be careful to check account details with us in person if in any doubt. We will not accept responsibility if you transfer money into an incorrect account.
Going under the hammer is this ready-made development opportunity with full planning permission in the Hilltown area of Dundee. The property was a former mill and currently has planning permission to convert into five two-bedroom flats across three storeys with bin shed and cycle storage. Full details of the planning can be accessed by Dundee city council planning portal using the reference 22/00699/full. Similar sized new build flats nearby are achieving up to £200,000. This is sure to attract lots of attention from developers locally and further afield and early expression is highly recommended to avoid missing out.
Located in a well-established residential area of Dundee, close to local amenities, supermarkets, primary and secondary schools, public transport routes and easy access to Dundee city centre and universities. This area is popular with renters, first-time buyers, and students, making it an excellent investment location.
Purchasers notes
Please note that these particulars have been prepared by us on the basis of information provided by our client. If there is any aspect of these particulars that you wish clarified or that you find misleading please contact the office where further information will be made available.
• No tests have been made of services, equipment or fittings.
• No warranty is given or implied as to the condition of buildings, services, fixtures, fittings etc.
• All measurements, distances and acres are approximate.
• Fixtures, fittings and other items are not included unless specified in these details.
This material is protected by the laws of copyright. The owner of the copyright is Auction House Scotland. The property sheet forms part of our database and is protected by the database rights and copyright laws. No unauthorised copying or distribution without permission. Auction House Scotland is revolutionising the sale of property in Scotland.
Remember, if you are buying a property which is being sold by Auction House Scotland you will normally be responsible for payment of a Buyer's Premium or Auction Fee of 3.6% of the purchase price subject to a minimum of £3600 inclusive of VAT. More details can be obtained on application.
Cybercrime Warning:
Please be aware that there is a significant risk posed by cyber fraud, specifically affecting email accounts and bank account details. Please note that our bank account details will not change during the course of A transaction and we will not change our bank details via email. Please be careful to check account details with us in person if in any doubt. We will not accept responsibility if you transfer money into an incorrect account.
Mortgage calculator
Monthly repayment
£425 per month
Whole of market comparison
70+ lenders and 10,000+ products
The monthly repayments provided are estimates and should be used as a guide only. The actual amount you can borrow will depend on your personal financial situation and subject to a full application. For a more precise estimate, please use the Mojo mortgage calculator. Your home or property may be repossessed if you do not keep up repayments on your mortgage.



.png)