£449,950
4 bed detached house for saleGerddi Rhosyn, Kilgetty, Pembrokeshire SA68
4 beds
3 baths
2 receptions
EPC Rating: A
Just added
New home
Freehold
About this property
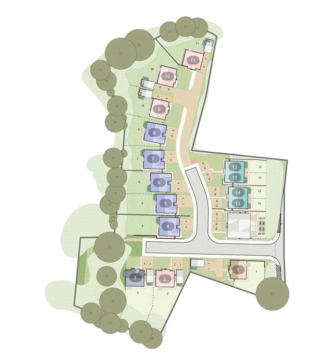
Welcome to Gerddi Rhosyn, Kilgetty – A Brand New, Exclusive Development of 15 Executive Houses by Obsidian Homes.
Discover the exceptional lifestyle at Gerddi Rhosyn, a stunning new development offering an exclusive collection of 15 executive homes in the charming village of Kilgetty. With a combination of modern design, superior finishes, and attention to detail, these homes are built to the highest standards, offering the perfect blend of luxury and practicality. Each property also offers integrated solar panels and an EPC rating A.
9, The Grantham – 4 Bedroom Property
The Grantham is an impressive four-bedroom detached home designed to offer the very best in family living. The exterior features a charming combination of cream render and slate grey roof tiles, creating an elegant first impression. The spacious hallway leads onto a living space with a generous lounge & separate study area. To the back of the property an open plan dining area, and a large kitchen with utility - ideal for family gatherings and entertaining guests. On warmer days, the dining room doors open up to extend your living space into the beautiful garden, creating an effortless flow for al fresco dining. Upstairs, both the master bedroom and the second double bedroom enjoy their own ensuite bathrooms, offering a high level of comfort and privacy. With its own driveway and detached garage, the Grantham offers both convenience and elegance. Perfect for modern family living, this home is both generous in space and high in style.
Gerddi Rhosyn offers a rare opportunity to own a luxurious, high-end property in one of Kilgetty’s most sought-after locations. Various house styles are available, Scan the qr code or visit our website for full listing details. Reservations now being taken for homes ready for completion in Spring 2026, now is the time to secure your future dream home at this exclusive development.
Don’t miss out on the chance to be part of this prestigious new community – book your viewing and reservation today!
Discover the exceptional lifestyle at Gerddi Rhosyn, a stunning new development offering an exclusive collection of 15 executive homes in the charming village of Kilgetty. With a combination of modern design, superior finishes, and attention to detail, these homes are built to the highest standards, offering the perfect blend of luxury and practicality. Each property also offers integrated solar panels and an EPC rating A.
9, The Grantham – 4 Bedroom Property
The Grantham is an impressive four-bedroom detached home designed to offer the very best in family living. The exterior features a charming combination of cream render and slate grey roof tiles, creating an elegant first impression. The spacious hallway leads onto a living space with a generous lounge & separate study area. To the back of the property an open plan dining area, and a large kitchen with utility - ideal for family gatherings and entertaining guests. On warmer days, the dining room doors open up to extend your living space into the beautiful garden, creating an effortless flow for al fresco dining. Upstairs, both the master bedroom and the second double bedroom enjoy their own ensuite bathrooms, offering a high level of comfort and privacy. With its own driveway and detached garage, the Grantham offers both convenience and elegance. Perfect for modern family living, this home is both generous in space and high in style.
Gerddi Rhosyn offers a rare opportunity to own a luxurious, high-end property in one of Kilgetty’s most sought-after locations. Various house styles are available, Scan the qr code or visit our website for full listing details. Reservations now being taken for homes ready for completion in Spring 2026, now is the time to secure your future dream home at this exclusive development.
Don’t miss out on the chance to be part of this prestigious new community – book your viewing and reservation today!
Mortgage calculator
Monthly repayment
£2,250 per month
Whole of market comparison
70+ lenders and 10,000+ products
The monthly repayments provided are estimates and should be used as a guide only. The actual amount you can borrow will depend on your personal financial situation and subject to a full application. For a more precise estimate, please use the Mojo mortgage calculator. Your home or property may be repossessed if you do not keep up repayments on your mortgage.


.png)