£175,000
3 bed terraced house for saleEbenezer Terrace, Newport NP20
3 beds
2 baths
3 receptions
EPC Rating: D
Chain free
Freehold
About this property
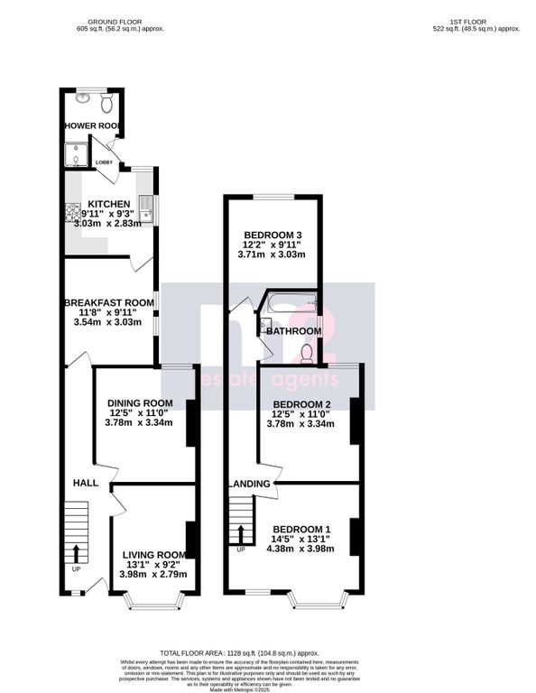
Spacious mid terrace house
3 bedrooms
3 reception rooms
Modern kitchen
Ground floor shower room & first floor bathroom
City centre location
No chain
Small enclosed rear yard
In need of A little tlc
*no chain! Spacious mid terrace house in city centre location with 3 bedrooms, 3 reception rooms, modern kitchen, ground floor shower room, first floor bathroom in need of A little tlc*
Situated in the heart of Newport City Centre within easy walking distance to all the usual shops at Friars Walk, gyms, pubs, restaurants, bus station and train station is this spacious, three bedroom mid terrace house.
Although in need of a little updating the property boasts spacious living accommodation briefly comprising, to the ground floor: Entrance hallway, living room, dining room, breakfast room, modern kitchen and shower room. On the first floor: Three generous bedrooms and a family bathroom. Outside, to the front is a small forecourt with on street permit parking and to the rear is an enclosed yard.
The property further benefits from having gas central heating, double glazing and no onward chain.
Situated in the heart of Newport City Centre within easy walking distance to all the usual shops at Friars Walk, gyms, pubs, restaurants, bus station and train station is this spacious, three bedroom mid terrace house.
Although in need of a little updating the property boasts spacious living accommodation briefly comprising, to the ground floor: Entrance hallway, living room, dining room, breakfast room, modern kitchen and shower room. On the first floor: Three generous bedrooms and a family bathroom. Outside, to the front is a small forecourt with on street permit parking and to the rear is an enclosed yard.
The property further benefits from having gas central heating, double glazing and no onward chain.
Mortgage calculator
Monthly repayment
£875 per month
Whole of market comparison
70+ lenders and 10,000+ products
The monthly repayments provided are estimates and should be used as a guide only. The actual amount you can borrow will depend on your personal financial situation and subject to a full application. For a more precise estimate, please use the Mojo mortgage calculator. Your home or property may be repossessed if you do not keep up repayments on your mortgage.



.png)