£145,000
Land for salePitcher Row Lane, Algarkirk, Boston PE20
1 bed
1 bath
1 reception
Freehold
About this property
Development
Planning persmission for change of use with an extension
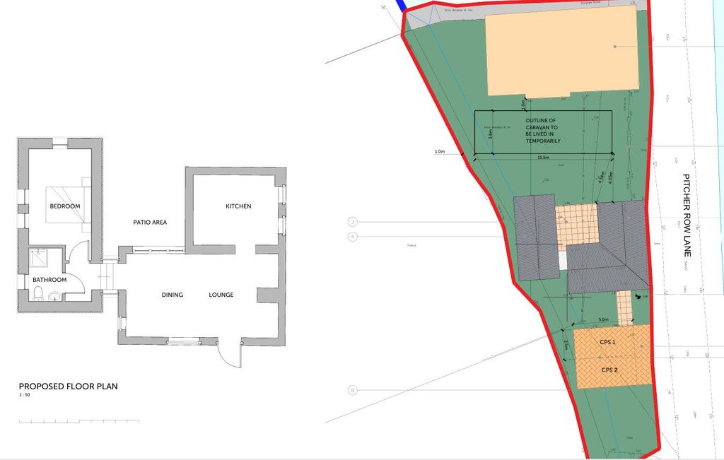
Approx 0.5 acre plot
Double garage workshop
1 bed static included in the sale
Planning reference under boston council B/21/0490
Bradley James Estate Agents are pleased to offer for sale this development opportunity. Nestled down Pitchers Lane, Algarkirk, Boston, this unique development property offers an exciting opportunity for those looking to create their dream home. Formerly a blacksmith's workshop, the property has full planning permission for a one-bedroom residential dwelling, making it an ideal project for both investors and first-time buyers. Planning was granted in January 2022 and the reference number is B/21/0490.
Set on a generous plot of approximately 0.5 acres, the site includes a one-bedroom static caravan, which features a cosy log burner, an open-plan lounge and kitchen, a utility room, a shower room, and a bedroom complete with a dressing room and en-suite cloakroom. This arrangement provides comfortable living while you plan your new home.
The property benefits from existing water and electricity connections, although it is important to note that there are currently no sewage connections or gas supply. Additionally, the plot boasts a detached double garage workshop, equipped with a sunken car inspection pit, perfect for those who enjoy diy projects or require extra storage space.
Conveniently located, the property is within easy reach of Sutterton village, which offers essential amenities including a shop, a primary school, and a traditional thatched pub. Fast food options are also nearby, and excellent road links to the A16 provide easy access to Lincoln, Norfolk, Spalding, and Boston.
This property presents a rare chance to invest in a versatile space with great potential. Whether you are looking to develop a new home or seeking a project with promise, this property is not to be missed.
Main
Planning Permission
The Old Forge, Pitcher Lane was granted full planning permission in January 2022 for the change of existing use to a 1-bedroom residential property which comes with 2 parking spaces. The bedroom and bathroom are new build joined to the original building with a glazed link. Planning reference number is B/21/0490.
Conditions of Sale/Covenants
a) Please note there is a covenant on the sale to ensure that no noisy or offensive businesses are conducted from the property. B) The property is only to be developed for a single dwelling.
Easement and Rights of Way
The property is sold subject to and with the benefit of all existing rights of way, whether it's public or private, light support, drainage, water and electricity supplies and all other rights and obligations, easements, and all wayleaves whether referred to or not in these sales particulars.
Services
Water and Electricity are connected, services are in the vicinity.
Asbestos
We are informed that the current roofing sheets on the Old Forge may contain asbestos.
Plans and photos
The photos attached to these sales particulars have been produced in good faith. They are for illustrative purposes.
Workshop (12.55m x 6.88m (41'2 x 22'7))
The garage workshop has an electric roller door which is higher than average for a higher vehicle and then there's a wooden double door to the front which leads to a car inspection pit which is sunken into the floor, there's power and lighting connected and it's on a separate fuse box.
Static Caravan (11.73m x 3.66m (38'6 x 12'0))
The lounge area has a multi fuel burner, UPVC French doors to the front and UPVC double glazed windows to the side, Power points, radiator, the kitchen has base and eyelevel units with worksurface over, there's a four burner gas hob with extract over, sink and drainer with mixer tap over, double half size electric oven and grill, Space and point for fridge, go through to the internal hallway where there's a radiator and a door leading to your shower room.
Shower room has a UPVC obscured double glaze window to the rear, separate shower cubicle, pedestal wash and basin with mixer taps over, WC with push and flush.
One of the bedrooms has been turned into a utility room which has UPVC double glazed window to the front, space and plumbing for washing machine, base and eyelevel units with worksurface over, sink with mixer taps over and extractor fan.
Bedroom one has a UPVC double glazed window to the side, which has a dressing room, a ensuite cloakroom, a dressing table in the bedroom, and radiator, power points.
Land
The plot is on approximately 0.5 acres, it is enclosed by post and rail fencing and is laid to lawn.
Set on a generous plot of approximately 0.5 acres, the site includes a one-bedroom static caravan, which features a cosy log burner, an open-plan lounge and kitchen, a utility room, a shower room, and a bedroom complete with a dressing room and en-suite cloakroom. This arrangement provides comfortable living while you plan your new home.
The property benefits from existing water and electricity connections, although it is important to note that there are currently no sewage connections or gas supply. Additionally, the plot boasts a detached double garage workshop, equipped with a sunken car inspection pit, perfect for those who enjoy diy projects or require extra storage space.
Conveniently located, the property is within easy reach of Sutterton village, which offers essential amenities including a shop, a primary school, and a traditional thatched pub. Fast food options are also nearby, and excellent road links to the A16 provide easy access to Lincoln, Norfolk, Spalding, and Boston.
This property presents a rare chance to invest in a versatile space with great potential. Whether you are looking to develop a new home or seeking a project with promise, this property is not to be missed.
Main
Planning Permission
The Old Forge, Pitcher Lane was granted full planning permission in January 2022 for the change of existing use to a 1-bedroom residential property which comes with 2 parking spaces. The bedroom and bathroom are new build joined to the original building with a glazed link. Planning reference number is B/21/0490.
Conditions of Sale/Covenants
a) Please note there is a covenant on the sale to ensure that no noisy or offensive businesses are conducted from the property. B) The property is only to be developed for a single dwelling.
Easement and Rights of Way
The property is sold subject to and with the benefit of all existing rights of way, whether it's public or private, light support, drainage, water and electricity supplies and all other rights and obligations, easements, and all wayleaves whether referred to or not in these sales particulars.
Services
Water and Electricity are connected, services are in the vicinity.
Asbestos
We are informed that the current roofing sheets on the Old Forge may contain asbestos.
Plans and photos
The photos attached to these sales particulars have been produced in good faith. They are for illustrative purposes.
Workshop (12.55m x 6.88m (41'2 x 22'7))
The garage workshop has an electric roller door which is higher than average for a higher vehicle and then there's a wooden double door to the front which leads to a car inspection pit which is sunken into the floor, there's power and lighting connected and it's on a separate fuse box.
Static Caravan (11.73m x 3.66m (38'6 x 12'0))
The lounge area has a multi fuel burner, UPVC French doors to the front and UPVC double glazed windows to the side, Power points, radiator, the kitchen has base and eyelevel units with worksurface over, there's a four burner gas hob with extract over, sink and drainer with mixer tap over, double half size electric oven and grill, Space and point for fridge, go through to the internal hallway where there's a radiator and a door leading to your shower room.
Shower room has a UPVC obscured double glaze window to the rear, separate shower cubicle, pedestal wash and basin with mixer taps over, WC with push and flush.
One of the bedrooms has been turned into a utility room which has UPVC double glazed window to the front, space and plumbing for washing machine, base and eyelevel units with worksurface over, sink with mixer taps over and extractor fan.
Bedroom one has a UPVC double glazed window to the side, which has a dressing room, a ensuite cloakroom, a dressing table in the bedroom, and radiator, power points.
Land
The plot is on approximately 0.5 acres, it is enclosed by post and rail fencing and is laid to lawn.
Mortgage calculator
Monthly repayment
£725 per month
Whole of market comparison
70+ lenders and 10,000+ products
The monthly repayments provided are estimates and should be used as a guide only. The actual amount you can borrow will depend on your personal financial situation and subject to a full application. For a more precise estimate, please use the Mojo mortgage calculator. Your home or property may be repossessed if you do not keep up repayments on your mortgage.



.png)