Guide price
£325,000
Land for saleSt. Philips Road, Cambridge CB1
2 beds
2 baths
2 receptions
Freehold
About this property
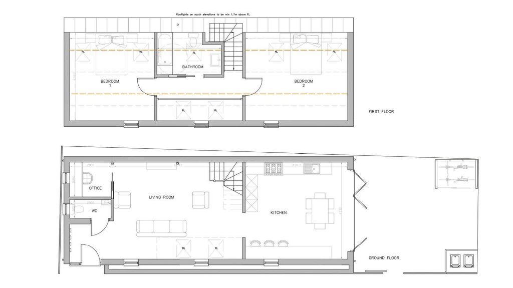
An opportunity to purchase a building plot in the heart of the vibrant Romsey area of the city, benefitting from detailed planning consent to erect a stylish 1.5 storey two or three bedroom self-build dwelling
The Site
The northern boundary of the site runs along St Philips Road. Access to the site is over a pedestrian footpath. On the eastern boundary, a footpath provides the access to the rear garden of 76 St Philips Road. On the western boundary is the garden of 50 Hemingford Road, and the southern boundary backs onto the garden of 48 Hemingford Road.
The properties on the northern side of this area are predominantly two-storey terraced houses, facing St Philips Rd. Some of the properties are set back from the pedestrian footpath. The southern side has two street facing properties adjacent to the site.
Planning Consent
Detailed planning consent for 1 No. 1.5 storey self-build dwellinghouse under Greater Cambridge Shared Planning reference: 24/01861/ful approved on 12th February 2025.
Gross internal Area of the dwelling is approximately 1,300 sq.ft
The plot previously benefitted from outline planning permission for 1 No. One and a half storey dwellinghouse with no matters reserved.22/00265/out decided on 14th March 2023
New Homes
Please contact Cheffins New Homes team for more information on the local market and resale values in the area
Location
The plot is located in the highly sought-after Romsey area of the city, just a stone's throw from the vibrant Mill Road with its range of independent shops and restaurants and a short walk or cycle from Cambridge station.
The Site
The northern boundary of the site runs along St Philips Road. Access to the site is over a pedestrian footpath. On the eastern boundary, a footpath provides the access to the rear garden of 76 St Philips Road. On the western boundary is the garden of 50 Hemingford Road, and the southern boundary backs onto the garden of 48 Hemingford Road.
The properties on the northern side of this area are predominantly two-storey terraced houses, facing St Philips Rd. Some of the properties are set back from the pedestrian footpath. The southern side has two street facing properties adjacent to the site.
Planning Consent
Detailed planning consent for 1 No. 1.5 storey self-build dwellinghouse under Greater Cambridge Shared Planning reference: 24/01861/ful approved on 12th February 2025.
Gross internal Area of the dwelling is approximately 1,300 sq.ft
The plot previously benefitted from outline planning permission for 1 No. One and a half storey dwellinghouse with no matters reserved.22/00265/out decided on 14th March 2023
New Homes
Please contact Cheffins New Homes team for more information on the local market and resale values in the area
Location
The plot is located in the highly sought-after Romsey area of the city, just a stone's throw from the vibrant Mill Road with its range of independent shops and restaurants and a short walk or cycle from Cambridge station.
Mortgage calculator
Monthly repayment
£1,625 per month
Whole of market comparison
70+ lenders and 10,000+ products
The monthly repayments provided are estimates and should be used as a guide only. The actual amount you can borrow will depend on your personal financial situation and subject to a full application. For a more precise estimate, please use the Mojo mortgage calculator. Your home or property may be repossessed if you do not keep up repayments on your mortgage.



.png)