Guide price
£135,000
Land for saleIvyhouse Lane, Bilston WV14
Auction
Freehold
About this property
Sale by Modern Auction (T&Cs apply)
Subject to an undisclosed Reserve Price
Buyers fees apply
Land for sale
Potential for two detached properties
Popular residential location
Close to Coseley train station
Viewing highly recommended - contact connells wolverhampton today
Summary
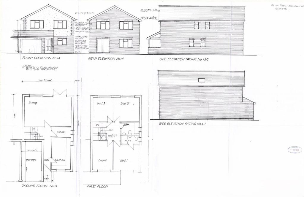
"A parcel of land with planning application for two detached houses"
Planning Ref P08/1575
This land has the potential to build two detached properties in the popular Coseley area.
Description
Connells Wolverhampton bring to the market this parcel of land with planning for two detached property ref P08/1575 for two detached dwellings on this large and spacious plot. Records are available from the Dudley Council website.
Benefiting from being a short distance away from the popular Coseley train station offering easy access into Wolverhampton and Birmingham, this land is ideal for development just to necessary planning permissions and regulations.
Auctioneer's Comments
This property is offered through Modern Method of Auction. Should you view, offer or bid your data will be shared with the Auctioneer, iamsold Limited. This method requires both parties to complete the transaction within 56 days, allowing buyers to proceed with mortgage finance (subject to lending criteria, affordability and survey).
The buyer is required to sign a reservation agreement and make payment of a non-refundable Reservation Fee of 4.5% of the purchase price including VAT, subject to a minimum of £6600.00 including VAT. This fee is paid in addition to purchase price and will be considered as part of the chargeable consideration for the property in the calculation for stamp duty liability. Buyers will be required to complete an identification process with iamsold and provide proof of how the purchase would be funded.
The property has a Buyer Information Pack containing documents about the property. The documents may not tell you everything you need to know, so you must complete your own due diligence before bidding. A sample of the Reservation Agreement and terms and conditions are contained within this pack. The buyer will also make payment of no more than £349 inc. VAT towards the preparation cost of the pack. Please confirm exact costs with the auctioneer.
The estate agent and auctioneer may recommend the services of other providers to you, in which they will be paid for the referral. These services are optional, and you will be advised of any payment, in writing before any services are accepted. Listing is subject to a start price and undisclosed reserve price that can change.
The Location & Area
Conveniently located for the main Birmingham New Road with links to the M54 and M6 motorways including Dudley, Wolverhampton and Birmingham areas. There is a fantastic selection of local shopping and schooling nearby, as well as doctors and dentists.
1. Money laundering regulations - Intending purchasers will be asked to produce identification documentation at a later stage and we would ask for your co-operation in order that there will be no delay in agreeing the sale.
2: These particulars do not constitute part or all of an offer or contract.
3: The measurements indicated are supplied for guidance only and as such must be considered incorrect.
4: Potential buyers are advised to recheck the measurements before committing to any expense.
5: Connells has not tested any apparatus, equipment, fixtures, fittings or services and it is the buyers interests to check the working condition of any appliances.
6: Connells has not sought to verify the legal title of the property and the buyers must obtain verification from their solicitor.
"A parcel of land with planning application for two detached houses"
Planning Ref P08/1575
This land has the potential to build two detached properties in the popular Coseley area.
Description
Connells Wolverhampton bring to the market this parcel of land with planning for two detached property ref P08/1575 for two detached dwellings on this large and spacious plot. Records are available from the Dudley Council website.
Benefiting from being a short distance away from the popular Coseley train station offering easy access into Wolverhampton and Birmingham, this land is ideal for development just to necessary planning permissions and regulations.
Auctioneer's Comments
This property is offered through Modern Method of Auction. Should you view, offer or bid your data will be shared with the Auctioneer, iamsold Limited. This method requires both parties to complete the transaction within 56 days, allowing buyers to proceed with mortgage finance (subject to lending criteria, affordability and survey).
The buyer is required to sign a reservation agreement and make payment of a non-refundable Reservation Fee of 4.5% of the purchase price including VAT, subject to a minimum of £6600.00 including VAT. This fee is paid in addition to purchase price and will be considered as part of the chargeable consideration for the property in the calculation for stamp duty liability. Buyers will be required to complete an identification process with iamsold and provide proof of how the purchase would be funded.
The property has a Buyer Information Pack containing documents about the property. The documents may not tell you everything you need to know, so you must complete your own due diligence before bidding. A sample of the Reservation Agreement and terms and conditions are contained within this pack. The buyer will also make payment of no more than £349 inc. VAT towards the preparation cost of the pack. Please confirm exact costs with the auctioneer.
The estate agent and auctioneer may recommend the services of other providers to you, in which they will be paid for the referral. These services are optional, and you will be advised of any payment, in writing before any services are accepted. Listing is subject to a start price and undisclosed reserve price that can change.
The Location & Area
Conveniently located for the main Birmingham New Road with links to the M54 and M6 motorways including Dudley, Wolverhampton and Birmingham areas. There is a fantastic selection of local shopping and schooling nearby, as well as doctors and dentists.
1. Money laundering regulations - Intending purchasers will be asked to produce identification documentation at a later stage and we would ask for your co-operation in order that there will be no delay in agreeing the sale.
2: These particulars do not constitute part or all of an offer or contract.
3: The measurements indicated are supplied for guidance only and as such must be considered incorrect.
4: Potential buyers are advised to recheck the measurements before committing to any expense.
5: Connells has not tested any apparatus, equipment, fixtures, fittings or services and it is the buyers interests to check the working condition of any appliances.
6: Connells has not sought to verify the legal title of the property and the buyers must obtain verification from their solicitor.
Mortgage calculator
Monthly repayment
£675 per month
Whole of market comparison
70+ lenders and 10,000+ products
The monthly repayments provided are estimates and should be used as a guide only. The actual amount you can borrow will depend on your personal financial situation and subject to a full application. For a more precise estimate, please use the Mojo mortgage calculator. Your home or property may be repossessed if you do not keep up repayments on your mortgage.



.png)