Guide price
£265,000
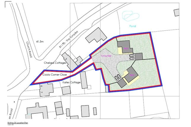
Land for saleSelf- Build Plot 9, Cavendish View, Thurston IP31
Freehold
About this property
Self build plot for single detached home.
Edge of a brand new development
Popular Suffolk Village
Rail station and fantastic transport links into Bury St Edmunds
Close to 6th Form College & Schools.
Choice of 9 plots adjacent countryside
Utilities supplied to plots.
Download brochures below.
Description
Offered for sale are a selection of 9 self-build plots located on the brand-new premium development by Linden Homes on the outskirts of the sought-after village of Thurston. The generously sized plots benefit from being situated in a premium area of the site, overlooking open green space and the rolling Suffolk Countryside.
Hybrid planning permission for the third phase of Cavendish View was granted by Mid Suffolk District Council in December 2023 (lpa Ref: DC/20/01716) for the erection of 112 no. Dwellings (including 43 affordable units), together with associated access, infrastructure, landscaping, and amenity space (applied for in full), as well as the 9 self-build plots (applied for in outline with all matters reserved; access to be considered). Conditions 35-40 of that permission apply to the self-build plots.
Location
Cavendish View by Linden Homes is a new high-quality development offering 2,3,4 & 5 bed houses located in the thriving Suffolk village of Thurston, five miles east of Bury St Edmunds. Situated in the heart of open countryside, Thurston is a warm, well-served community that offers a range of amenities including two pubs, shops, a library and a village hall which is home to many clubs, groups and activities for all ages, plus there is a community centre and sports facilities for the local area to enjoy.
Thurston Community College - (Ofsted-rated 'Good'), is less than half a mile away and includes a thriving sixth-form college. Thurston primary school is 0.6 miles away and is also Ofsted-rated 'Good', making it an ideal place for growing families. Further afield are St Edmund's Roman Catholic primary - 6 miles away, Westley Middle School - 8.1 miles away and King Edward V1 Church of England Upper school - 7.1 miles away which are all Ofsted-rated 'Good'. You'll find a great offering of after-school clubs for all ages at these schools, delivering affordable childcare all year round.
The Cavendish View development boasts fantastic local transport links into Bury St Edmunds and nearby towns and cities. The development is less than a mile from Thurston train station, from where trains travel regularly between Cambridge, Ipswich and London making it a great choice for commuters. There is easy access to the A14 and the A143 from Cavendish View and with regular buses running from Thurston to Bury St Edmunds, as well as services to and from Stowmarket, (11 Miles) and Ipswich, (23 Miles).
Planning conditions
35: Time limit for reserved matters application.
Application for approval of all of the reserved matters must be made within four years from the date of this permission which shall include the marketing period described in the associated S106 agreement. Development of each Self Build / Custom Build plot shall then commence within two years from the approval date of the last of the reserved matters for that plot.
36: Approval of reserved matters.
Before any development is commenced, approval of the details of the appearance, scale and layout of the building(s) and the landscaping of the site (hereinafter called “the reserved matters”) shall be obtained in writing from the Local Planning Authority.
37: Specific restriction on development.
The 9 dwellings as identified on plan P18-2417-72 shall solely be built out as self-builds in line with the associated s106 agreement unless otherwise agreed in writing with the Local Planning Authority.
38: Foul and surface water drainage.
Foul and surface water drainage details shall be submitted as part of the reserved matters application for each self-build dwelling. (Note: This condition does not need to be formally discharged -t he details just need to be provided within the reserved matters submission).
39: Ecological appraisal recommendations.
All mitigation measures and/or works shall be carried out in accordance with the details contained in the Updated Ecology Walkover Survey and Badger Check 2021 (James Blake Associates Ltd., January 2022) and the Preliminary Ecological Appraisal (Base Ecology, December 2016). This may include the appointment of an appropriately competent person e.g. An ecological clerk of works (ECoW, ) to provide on-site ecological expertise during construction. The appointed person shall undertake all activities, and works shall be carried out, in accordance with the approved details.
40: Biodiversity enhancement layout.
Prior to development above slab level for each plot, a Biodiversity Enhancement Layout, providing the finalised details and
locations of the enhancement measures contained within the Preliminary Ecological Appraisal (BASEcology, December 2016) shall be submitted to and approved in writing by the Local Planning Authority. The approved enhancement measures shall be implemented in full prior to first occupation, and all features shall then be retained. Reason: To enhance protected and Priority Species and allow the Local Planning Authority to discharge its duties under the s40 of the nerc Act 2006 (Priority habitats & species).
Definition of self build/custom build
The statutory definition can effectively be simplified to. “A home built to plans or specifications decided by the occupant. When considering whether a home is a Custom Build or Self-Build home, relevant authorities must be satisfied that the initial owner of the home will have primary input into its final design and layout.” The principles are based on the site- wide Design and Access Statement. The purpose is to ensure that the development of Self-Build or Custom-Build units follows the principles established within the site-wide code, including materiality and character, while providing design options to the end user to meet the Self-Build / Custom-Build obligations.
Vistry Group are seeking a self-build purchaser or builder which can deliver the plots as custom-build.
Plot information & design
building heights, layout & appearance
The 9 no. Self-Build plots will be provided as serviced plots to the north of the development and constructed by the purchaser. It is envisaged that the units built in this location will reflect the local vernacular, front onto the open space, and will be up to 2 storeys in accordance with the sensitive green edge location.
Dormers will not be permitted by the Council but may be acceptable on a bungalow. The Council will not accept any dwellings that are or are perceived to be 2.5 storeys. It is intended that these nine plots will represent innovative and bespoke designs that respond to the local vernacular of Thurston and the character of the Cavendish View development in which they are situated, and that they will also incorporate high sustainability standards.
The likely materials palette and planting requirements for the Self-Build units will be based upon the character area materials palette within the wider site and will be consistent with the das and Design Code.
Parking requirements
Parking should be designed in line with the guidance contained within Manual for Streets and Suffolk Guidance for Parking Technical Guidance (fourth edition October 23 or may be updated ), as follows:
•1-bedroom dwellings to be provided with 1 no. Parking space,
•2-bed and 3-bed dwellings with 2 no. Spaces,
•4-bed dwellings with 3 no. Spaces.
Allocated parking should be provided on-plot and generally located to the side of dwellings with an individual parking bay and/or garage set just back from the building line to allow ease of access to dwellings.
Ecology
Prior to development above slab level for each plot, a Biodiversity Enhancement Layout, providing the finalised details and locations of the enhancement measures contained within the Preliminary Ecological Appraisal (base Ecology, December 2016) shall be submitted to and approved in writing by the Local Planning Authority. Within the built development phase neighbouring these nine plots, enhancements have focused on hedgehogs, integrated bat boxes, and bird boxes. The Council also has an application validation checklist outlining its expectations regarding biodiversity enhancements. It is recommended that advice from an ecologist be sought on the enhancement measures directly suitable for each plot.
Reserved matters
The applicants of each plot will need to lead and inform the design evolution from the start and clearly demonstrate this in the submission of a Reserved Matters application. The Council expects there to be engagement with them through pre-application advice to discuss stylistic approach and details.
Services/utilities
The plots will be provided with access to a public highway and connections for electricity, telecommunications, water and wastewater.
Energy statement
Individual energy statements will be required for each plot, and the Council has its own application validation requirements for Sustainability Design and Construction Statements. Noting the sustainability principles established for the wider site, individual statements will need to be provided to demonstrate how individual plots will meet the Council’s requirements to achieve sap A Rating.
Plot 1 - Specific Conditions
Access and Parking
Access to the plot is required to be maintained. There should also be pedestrian access from the shared surface to the front door. The design code also specifies allocation of parking spaces and cycle storage on the plot in accordance with the local standards. The parking provided is set between the housing to reduce massing.
Boundaries
Boundaries are to be maintained by the plot owner, and the front boundary should be implemented once the house is completed.
Community
Land at Norton Road, Thurston, is designed to create a long-term friendly community. Surrounding Plots will most likely be at different stages of construction throughout the initial term of occupancy. Neighbouring plots are encouraged to engage with each other, notifying each other of any deliveries, large machinery or construction on shared surfaces for a smooth construction process, and to create a lasting community.
Household Waste and Recycling
Household waste and recycling is collected from the bin collection point, and the responsibility lies with the owner to place bins out for collection on the allocated day.
Landscaping
Plot 09 will allow for 4.1m of ornamental shrub planting to be implemented at the front of the house as per the outlined requirements. Awareness is given to the plot owners that all planting, landscaping, and biodiversity measures undertaken during construction may be at risk of damage and must be replaced. It is advised to allow for regular irrigation and inspection of any planting throughout construction works. Any landscaping should be in accordance with the specification set out in the Design Code including species and planting requirements.
Materials
As specified in earlier document the material palette range will likely need to be in-keeping with the adjacent scheme, subject to the relevant Reserved Matters consent and discussions with the Local Planning Authority. - The technical requirements may be subject to minor changes. Checks with the sales agent can be made for clarification.
Offers
All offers are to be submitted in writing to the seller’s agent and include proof of funds, estimated timescales, proof of id and solicitor details.
Notes
All measurements shown and plans are supplied by the seller or from working drawings and are subject to checking and measured survey. Whilst we take every effort to ensure their accuracy, buyers are advised to satisfy themselves of this before committing to purchase. Sizes and plans are a guide only and buyers should ensure their legal representative is able to verify them before legally committing to purchase.
Offered for sale are a selection of 9 self-build plots located on the brand-new premium development by Linden Homes on the outskirts of the sought-after village of Thurston. The generously sized plots benefit from being situated in a premium area of the site, overlooking open green space and the rolling Suffolk Countryside.
Hybrid planning permission for the third phase of Cavendish View was granted by Mid Suffolk District Council in December 2023 (lpa Ref: DC/20/01716) for the erection of 112 no. Dwellings (including 43 affordable units), together with associated access, infrastructure, landscaping, and amenity space (applied for in full), as well as the 9 self-build plots (applied for in outline with all matters reserved; access to be considered). Conditions 35-40 of that permission apply to the self-build plots.
Location
Cavendish View by Linden Homes is a new high-quality development offering 2,3,4 & 5 bed houses located in the thriving Suffolk village of Thurston, five miles east of Bury St Edmunds. Situated in the heart of open countryside, Thurston is a warm, well-served community that offers a range of amenities including two pubs, shops, a library and a village hall which is home to many clubs, groups and activities for all ages, plus there is a community centre and sports facilities for the local area to enjoy.
Thurston Community College - (Ofsted-rated 'Good'), is less than half a mile away and includes a thriving sixth-form college. Thurston primary school is 0.6 miles away and is also Ofsted-rated 'Good', making it an ideal place for growing families. Further afield are St Edmund's Roman Catholic primary - 6 miles away, Westley Middle School - 8.1 miles away and King Edward V1 Church of England Upper school - 7.1 miles away which are all Ofsted-rated 'Good'. You'll find a great offering of after-school clubs for all ages at these schools, delivering affordable childcare all year round.
The Cavendish View development boasts fantastic local transport links into Bury St Edmunds and nearby towns and cities. The development is less than a mile from Thurston train station, from where trains travel regularly between Cambridge, Ipswich and London making it a great choice for commuters. There is easy access to the A14 and the A143 from Cavendish View and with regular buses running from Thurston to Bury St Edmunds, as well as services to and from Stowmarket, (11 Miles) and Ipswich, (23 Miles).
Planning conditions
35: Time limit for reserved matters application.
Application for approval of all of the reserved matters must be made within four years from the date of this permission which shall include the marketing period described in the associated S106 agreement. Development of each Self Build / Custom Build plot shall then commence within two years from the approval date of the last of the reserved matters for that plot.
36: Approval of reserved matters.
Before any development is commenced, approval of the details of the appearance, scale and layout of the building(s) and the landscaping of the site (hereinafter called “the reserved matters”) shall be obtained in writing from the Local Planning Authority.
37: Specific restriction on development.
The 9 dwellings as identified on plan P18-2417-72 shall solely be built out as self-builds in line with the associated s106 agreement unless otherwise agreed in writing with the Local Planning Authority.
38: Foul and surface water drainage.
Foul and surface water drainage details shall be submitted as part of the reserved matters application for each self-build dwelling. (Note: This condition does not need to be formally discharged -t he details just need to be provided within the reserved matters submission).
39: Ecological appraisal recommendations.
All mitigation measures and/or works shall be carried out in accordance with the details contained in the Updated Ecology Walkover Survey and Badger Check 2021 (James Blake Associates Ltd., January 2022) and the Preliminary Ecological Appraisal (Base Ecology, December 2016). This may include the appointment of an appropriately competent person e.g. An ecological clerk of works (ECoW, ) to provide on-site ecological expertise during construction. The appointed person shall undertake all activities, and works shall be carried out, in accordance with the approved details.
40: Biodiversity enhancement layout.
Prior to development above slab level for each plot, a Biodiversity Enhancement Layout, providing the finalised details and
locations of the enhancement measures contained within the Preliminary Ecological Appraisal (BASEcology, December 2016) shall be submitted to and approved in writing by the Local Planning Authority. The approved enhancement measures shall be implemented in full prior to first occupation, and all features shall then be retained. Reason: To enhance protected and Priority Species and allow the Local Planning Authority to discharge its duties under the s40 of the nerc Act 2006 (Priority habitats & species).
Definition of self build/custom build
The statutory definition can effectively be simplified to. “A home built to plans or specifications decided by the occupant. When considering whether a home is a Custom Build or Self-Build home, relevant authorities must be satisfied that the initial owner of the home will have primary input into its final design and layout.” The principles are based on the site- wide Design and Access Statement. The purpose is to ensure that the development of Self-Build or Custom-Build units follows the principles established within the site-wide code, including materiality and character, while providing design options to the end user to meet the Self-Build / Custom-Build obligations.
Vistry Group are seeking a self-build purchaser or builder which can deliver the plots as custom-build.
Plot information & design
building heights, layout & appearance
The 9 no. Self-Build plots will be provided as serviced plots to the north of the development and constructed by the purchaser. It is envisaged that the units built in this location will reflect the local vernacular, front onto the open space, and will be up to 2 storeys in accordance with the sensitive green edge location.
Dormers will not be permitted by the Council but may be acceptable on a bungalow. The Council will not accept any dwellings that are or are perceived to be 2.5 storeys. It is intended that these nine plots will represent innovative and bespoke designs that respond to the local vernacular of Thurston and the character of the Cavendish View development in which they are situated, and that they will also incorporate high sustainability standards.
The likely materials palette and planting requirements for the Self-Build units will be based upon the character area materials palette within the wider site and will be consistent with the das and Design Code.
Parking requirements
Parking should be designed in line with the guidance contained within Manual for Streets and Suffolk Guidance for Parking Technical Guidance (fourth edition October 23 or may be updated ), as follows:
•1-bedroom dwellings to be provided with 1 no. Parking space,
•2-bed and 3-bed dwellings with 2 no. Spaces,
•4-bed dwellings with 3 no. Spaces.
Allocated parking should be provided on-plot and generally located to the side of dwellings with an individual parking bay and/or garage set just back from the building line to allow ease of access to dwellings.
Ecology
Prior to development above slab level for each plot, a Biodiversity Enhancement Layout, providing the finalised details and locations of the enhancement measures contained within the Preliminary Ecological Appraisal (base Ecology, December 2016) shall be submitted to and approved in writing by the Local Planning Authority. Within the built development phase neighbouring these nine plots, enhancements have focused on hedgehogs, integrated bat boxes, and bird boxes. The Council also has an application validation checklist outlining its expectations regarding biodiversity enhancements. It is recommended that advice from an ecologist be sought on the enhancement measures directly suitable for each plot.
Reserved matters
The applicants of each plot will need to lead and inform the design evolution from the start and clearly demonstrate this in the submission of a Reserved Matters application. The Council expects there to be engagement with them through pre-application advice to discuss stylistic approach and details.
Services/utilities
The plots will be provided with access to a public highway and connections for electricity, telecommunications, water and wastewater.
Energy statement
Individual energy statements will be required for each plot, and the Council has its own application validation requirements for Sustainability Design and Construction Statements. Noting the sustainability principles established for the wider site, individual statements will need to be provided to demonstrate how individual plots will meet the Council’s requirements to achieve sap A Rating.
Plot 1 - Specific Conditions
Access and Parking
Access to the plot is required to be maintained. There should also be pedestrian access from the shared surface to the front door. The design code also specifies allocation of parking spaces and cycle storage on the plot in accordance with the local standards. The parking provided is set between the housing to reduce massing.
Boundaries
Boundaries are to be maintained by the plot owner, and the front boundary should be implemented once the house is completed.
Community
Land at Norton Road, Thurston, is designed to create a long-term friendly community. Surrounding Plots will most likely be at different stages of construction throughout the initial term of occupancy. Neighbouring plots are encouraged to engage with each other, notifying each other of any deliveries, large machinery or construction on shared surfaces for a smooth construction process, and to create a lasting community.
Household Waste and Recycling
Household waste and recycling is collected from the bin collection point, and the responsibility lies with the owner to place bins out for collection on the allocated day.
Landscaping
Plot 09 will allow for 4.1m of ornamental shrub planting to be implemented at the front of the house as per the outlined requirements. Awareness is given to the plot owners that all planting, landscaping, and biodiversity measures undertaken during construction may be at risk of damage and must be replaced. It is advised to allow for regular irrigation and inspection of any planting throughout construction works. Any landscaping should be in accordance with the specification set out in the Design Code including species and planting requirements.
Materials
As specified in earlier document the material palette range will likely need to be in-keeping with the adjacent scheme, subject to the relevant Reserved Matters consent and discussions with the Local Planning Authority. - The technical requirements may be subject to minor changes. Checks with the sales agent can be made for clarification.
Offers
All offers are to be submitted in writing to the seller’s agent and include proof of funds, estimated timescales, proof of id and solicitor details.
Notes
All measurements shown and plans are supplied by the seller or from working drawings and are subject to checking and measured survey. Whilst we take every effort to ensure their accuracy, buyers are advised to satisfy themselves of this before committing to purchase. Sizes and plans are a guide only and buyers should ensure their legal representative is able to verify them before legally committing to purchase.
Mortgage calculator
Monthly repayment
£1,325 per month
Whole of market comparison
70+ lenders and 10,000+ products
The monthly repayments provided are estimates and should be used as a guide only. The actual amount you can borrow will depend on your personal financial situation and subject to a full application. For a more precise estimate, please use the Mojo mortgage calculator. Your home or property may be repossessed if you do not keep up repayments on your mortgage.



.png)