£83,000
2 bed bungalow for saleSanctuary Road, Holsworthy, Devon EX22
2 beds
3 baths
1 reception
Freehold
About this property
Building plot
Full planning permission granted
Detached bungalow
Open plan kitchen/dining/living room
2 bedrooms 1 ensuite
Separate bathroom and cloakroom
Utility room
Off road parking
Garden
Sought after location
An exciting opportunity to create your own home in the heart of this popular market town.
Occupying a highly convenient location close to local amenities, this well-positioned building plot comes with full planning permission for a beautifully designed detached bungalow.
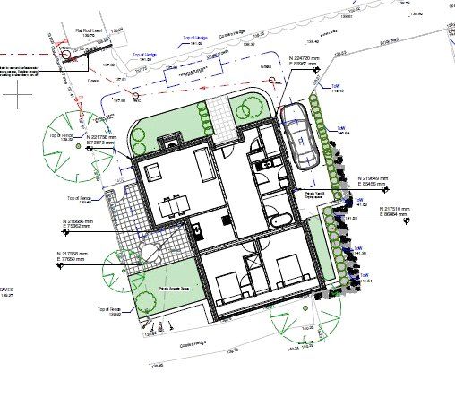
The approved plans allow for a modern open-plan kitchen/dining and living area, creating a bright and sociable space ideal for contemporary living. The layout further includes two well-proportioned bedrooms, comprising a principal bedroom with en-suite, along with a family bathroom.
Thoughtfully planned throughout, the bungalow will also feature a spacious entrance hall, utility room, and cloakroom, adding practicality and comfort to the overall design.
Externally, the property benefits from off-road parking and a private garden area, offering the perfect blank canvas for landscaping to your own style.
The property is situated just a couple minutes walk of Holsworthy's bustling market square with its weekly Pannier Market, good range of national and local shops together with a Waitrose supermarket, bp filling station, Marks & Spencers Simply Food and Wild Bean café. There are a whole range of amenities within the town including a heated swimming pool, sports hall, bowling green, cricket club, 18 hole golf course etc. Bude on the North Cornish coast is some 9 miles. Okehampton, Dartmoor National Park and the market town of Bideford are some 20 miles distant, whilst Barnstaple, the Regional North Devon Centre is some 30 miles. Launceston, Cornwall's ancient capital, is some 14 miles distant. Holsworthy is in the heart of “Ruby Country”, named after the famous local Red Ruby cattle.
Directions
From Holsworthy's main square, take the left hand junction by the old bank into Victoria Square. Proceed down Victoria Hill, taking the first left into Sanctuary Road, after a short distance take the left hand turn and immediately after, take the next right hand turn, following a single lane down to the plot. The entrance to the lane will have a Bond Oxborough Phillips "For Sale" board clearly displayed.
Planning Permission
Full planning permission has been granted to erected a 2 bedroom detached single storey dwelling. Additional information and plans can be found on the Torridge District Council website using the planning reference number: 1/0226/2019/ful.
The Dwelling
Full planning permission has been granted for the construction of a single-storey detached bungalow. The approved scheme comprises a generous entrance hall providing access to a cloakroom, utility room, and an open-plan kitchen, dining, and living area. The proposed accommodation further includes two well-proportioned bedrooms, one of which benefits from an en-suite shower room. In addition to the approved layout, the plot also offers ample space for a good-sized garden and off-road parking.
Services
The sewerage pipe has been connected. Electric and water are not currently connected, but are nearby.
Viewing Appointment
Viewing appointments to be accompanied by a member of the Bond Oxborough Phillips team.
Agents Note
Before any sale is formally agreed, we have a legal obligation under the Money Laundering regulations and Terrorist Financing Act 2017 to obtain proof of your identity and of your address, take copies and retain on file for five years and will only be used for this purpose. We carry out this through a secure platform to protect your data. Each purchaser will be required to pay £20 upon an offer verbally being agreed to carry out these checks prior to the property being advertised as sale agreed.
Occupying a highly convenient location close to local amenities, this well-positioned building plot comes with full planning permission for a beautifully designed detached bungalow.
The approved plans allow for a modern open-plan kitchen/dining and living area, creating a bright and sociable space ideal for contemporary living. The layout further includes two well-proportioned bedrooms, comprising a principal bedroom with en-suite, along with a family bathroom.
Thoughtfully planned throughout, the bungalow will also feature a spacious entrance hall, utility room, and cloakroom, adding practicality and comfort to the overall design.
Externally, the property benefits from off-road parking and a private garden area, offering the perfect blank canvas for landscaping to your own style.
The property is situated just a couple minutes walk of Holsworthy's bustling market square with its weekly Pannier Market, good range of national and local shops together with a Waitrose supermarket, bp filling station, Marks & Spencers Simply Food and Wild Bean café. There are a whole range of amenities within the town including a heated swimming pool, sports hall, bowling green, cricket club, 18 hole golf course etc. Bude on the North Cornish coast is some 9 miles. Okehampton, Dartmoor National Park and the market town of Bideford are some 20 miles distant, whilst Barnstaple, the Regional North Devon Centre is some 30 miles. Launceston, Cornwall's ancient capital, is some 14 miles distant. Holsworthy is in the heart of “Ruby Country”, named after the famous local Red Ruby cattle.
Directions
From Holsworthy's main square, take the left hand junction by the old bank into Victoria Square. Proceed down Victoria Hill, taking the first left into Sanctuary Road, after a short distance take the left hand turn and immediately after, take the next right hand turn, following a single lane down to the plot. The entrance to the lane will have a Bond Oxborough Phillips "For Sale" board clearly displayed.
Planning Permission
Full planning permission has been granted to erected a 2 bedroom detached single storey dwelling. Additional information and plans can be found on the Torridge District Council website using the planning reference number: 1/0226/2019/ful.
The Dwelling
Full planning permission has been granted for the construction of a single-storey detached bungalow. The approved scheme comprises a generous entrance hall providing access to a cloakroom, utility room, and an open-plan kitchen, dining, and living area. The proposed accommodation further includes two well-proportioned bedrooms, one of which benefits from an en-suite shower room. In addition to the approved layout, the plot also offers ample space for a good-sized garden and off-road parking.
Services
The sewerage pipe has been connected. Electric and water are not currently connected, but are nearby.
Viewing Appointment
Viewing appointments to be accompanied by a member of the Bond Oxborough Phillips team.
Agents Note
Before any sale is formally agreed, we have a legal obligation under the Money Laundering regulations and Terrorist Financing Act 2017 to obtain proof of your identity and of your address, take copies and retain on file for five years and will only be used for this purpose. We carry out this through a secure platform to protect your data. Each purchaser will be required to pay £20 upon an offer verbally being agreed to carry out these checks prior to the property being advertised as sale agreed.
Mortgage calculator
Monthly repayment
£415 per month
Whole of market comparison
70+ lenders and 10,000+ products
The monthly repayments provided are estimates and should be used as a guide only. The actual amount you can borrow will depend on your personal financial situation and subject to a full application. For a more precise estimate, please use the Mojo mortgage calculator. Your home or property may be repossessed if you do not keep up repayments on your mortgage.



.png)