£350,000
Land for saleThe Woodlands, Whitchurch BS14
Just added
Freehold
About this property
950.76m2 Plot
Planning Permission
5 Bed Detached House
Orchard Views
Quiet Location
Development Opportunity
CJ Hole are delighted to offer for sale Plot B The Woodlands, presenting a rare opportunity to acquire an individual building plot set within a desirable and well-established residential location, ideal for those seeking to create a bespoke home.
A fantastic opportunity to acquire a substantial plot of approximately 950.76m2, positioned between two neighbouring plots of equal size. Quietly tucked away from busy roads, this attractive setting offers a wonderful sense of privacy while still being within easy reach of local amenities and nearby towns.
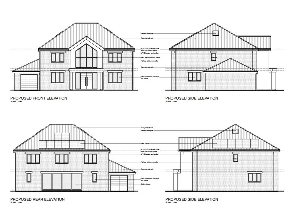
Full planning permission has already been granted for a large five-bedroom detached family home featuring a triple driveway, garage, and a spacious rear garden, allowing a buyer to move straight ahead with an impressive build. The proposed layout offers generous living areas and ample outdoor space, ideal for a growing family or those seeking a bespoke forever home.
Full plans can be found under planning application reference: 25/03390/var .
To the rear, the site enjoys a beautiful outlook across an orchard and open fields where horses and donkeys graze, providing a lovely rural backdrop and a genuine sense of countryside living. The peaceful position and natural surroundings create a rare lifestyle opportunity that feels both secluded and scenic.
An exceptional chance to create a substantial property in a quiet, established location with planning already in place, ready for someone’s vision to become reality.
Located in a quiet, rural area on the outskirts of Whitchurch, this plot is situated approximately 10 miles from Bath and 4 miles from Bristol City Centre. There is easy access to both cities with Bristol and Bath road only being a short distance away. Whitchurch has a number of local amenities such as shops, pubs, a supermarket, Sports Centre and Primary Schools, perfect for a growing family.
A fantastic opportunity to acquire a substantial plot of approximately 950.76m2, positioned between two neighbouring plots of equal size. Quietly tucked away from busy roads, this attractive setting offers a wonderful sense of privacy while still being within easy reach of local amenities and nearby towns.
Full planning permission has already been granted for a large five-bedroom detached family home featuring a triple driveway, garage, and a spacious rear garden, allowing a buyer to move straight ahead with an impressive build. The proposed layout offers generous living areas and ample outdoor space, ideal for a growing family or those seeking a bespoke forever home.
Full plans can be found under planning application reference: 25/03390/var .
To the rear, the site enjoys a beautiful outlook across an orchard and open fields where horses and donkeys graze, providing a lovely rural backdrop and a genuine sense of countryside living. The peaceful position and natural surroundings create a rare lifestyle opportunity that feels both secluded and scenic.
An exceptional chance to create a substantial property in a quiet, established location with planning already in place, ready for someone’s vision to become reality.
Located in a quiet, rural area on the outskirts of Whitchurch, this plot is situated approximately 10 miles from Bath and 4 miles from Bristol City Centre. There is easy access to both cities with Bristol and Bath road only being a short distance away. Whitchurch has a number of local amenities such as shops, pubs, a supermarket, Sports Centre and Primary Schools, perfect for a growing family.
Mortgage calculator
Monthly repayment
£1,750 per month
Whole of market comparison
70+ lenders and 10,000+ products
The monthly repayments provided are estimates and should be used as a guide only. The actual amount you can borrow will depend on your personal financial situation and subject to a full application. For a more precise estimate, please use the Mojo mortgage calculator. Your home or property may be repossessed if you do not keep up repayments on your mortgage.



.gif)