Guide price
£1,100,000
Land for saleSite With Planning Permission, Maidenhead SL6
12 beds
12 baths
8 receptions
Freehold
About this property
Site with planning permission
Scheme of 4 well-designed family homes
Sought after altwood area
Close to schools
Nearby local amenities
Easy reach of town & station
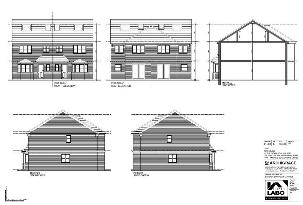
An exciting development opportunity to acquire a parcel of land with full planning permission granted for the construction of four well-proportioned three-bedroom family homes, Planning Reference Number 24/00630/full. The site is conveniently located in the sought-after Altwood area within a short walk to local amenities, popular schooling and within easy reach of Maidenhead town centre and train station with Elizabeth Line trains direct into central London. The approved scheme offers a thoughtfully designed residential development, ideal for owner-occupiers or as an attractive investment opportunity offering strong potential for resale or rental income.
Mortgage calculator
Monthly repayment
£5,502 per month
Whole of market comparison
70+ lenders and 10,000+ products
The monthly repayments provided are estimates and should be used as a guide only. The actual amount you can borrow will depend on your personal financial situation and subject to a full application. For a more precise estimate, please use the Mojo mortgage calculator. Your home or property may be repossessed if you do not keep up repayments on your mortgage.



.png)