£9,000
Land for saleShelone Road, Briton Ferry, Neath SA11
Available immediately
About this property
Description
We are delighted to bring to the market a significant plot of land located off Shelone Road in Neath, measuring approximately 0.39 acres.
This site presents a huge potential for savvy investors or developers due to its current usage and strategic location.
Key Features & Potential
* Size: Approximately 0.39 acres.
* Current Use: A portion of the land is currently occupied by garages which have been sold off on long leases or as freehold interests to nearby residents.
* Development Potential: A significant portion of the land remains unused, offering exceptional development potential.
This could include:
O Further Garaging: Capitalising on the existing demand and usage.
O Residential Development: Subject to obtaining all necessary planning permissions and local authority consents.
We anticipate a high level of interest in this unique site. Early enquiries are strongly advised to secure viewing and access to the information pack.
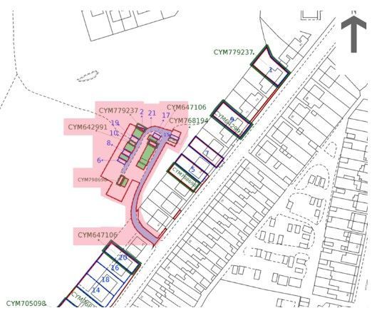
The land area being sold is all red on the attached plan less the garages (shown on the attached pictures) which have been sold as freehold to the 3rd parties or will be retained by the seller. To confirm, no garages are included within the sale. The sale is only the residual land around the garages.
This land is being sold on behalf of family members. All legally authorised owners have provided consent for the land to be marketed. In accordance with Section 21 of the Estate Agents Act 1979, the agent confirms that a personal interest or connection with the seller exists. A formal written declaration of this personal interest will be provided to all prospective purchasers prior to any negotiations.
Council Tax Band: Exempt
We are delighted to bring to the market a significant plot of land located off Shelone Road in Neath, measuring approximately 0.39 acres.
This site presents a huge potential for savvy investors or developers due to its current usage and strategic location.
Key Features & Potential
* Size: Approximately 0.39 acres.
* Current Use: A portion of the land is currently occupied by garages which have been sold off on long leases or as freehold interests to nearby residents.
* Development Potential: A significant portion of the land remains unused, offering exceptional development potential.
This could include:
O Further Garaging: Capitalising on the existing demand and usage.
O Residential Development: Subject to obtaining all necessary planning permissions and local authority consents.
We anticipate a high level of interest in this unique site. Early enquiries are strongly advised to secure viewing and access to the information pack.
The land area being sold is all red on the attached plan less the garages (shown on the attached pictures) which have been sold as freehold to the 3rd parties or will be retained by the seller. To confirm, no garages are included within the sale. The sale is only the residual land around the garages.
This land is being sold on behalf of family members. All legally authorised owners have provided consent for the land to be marketed. In accordance with Section 21 of the Estate Agents Act 1979, the agent confirms that a personal interest or connection with the seller exists. A formal written declaration of this personal interest will be provided to all prospective purchasers prior to any negotiations.
Council Tax Band: Exempt
Mortgage calculator
Monthly repayment
£45 per month
Whole of market comparison
70+ lenders and 10,000+ products
The monthly repayments provided are estimates and should be used as a guide only. The actual amount you can borrow will depend on your personal financial situation and subject to a full application. For a more precise estimate, please use the Mojo mortgage calculator. Your home or property may be repossessed if you do not keep up repayments on your mortgage.


.png)