£139,950
Land for saleCondurrow Road, Beacon, Camborne, Cornwall TR14
Freehold
About this property
No cil liability
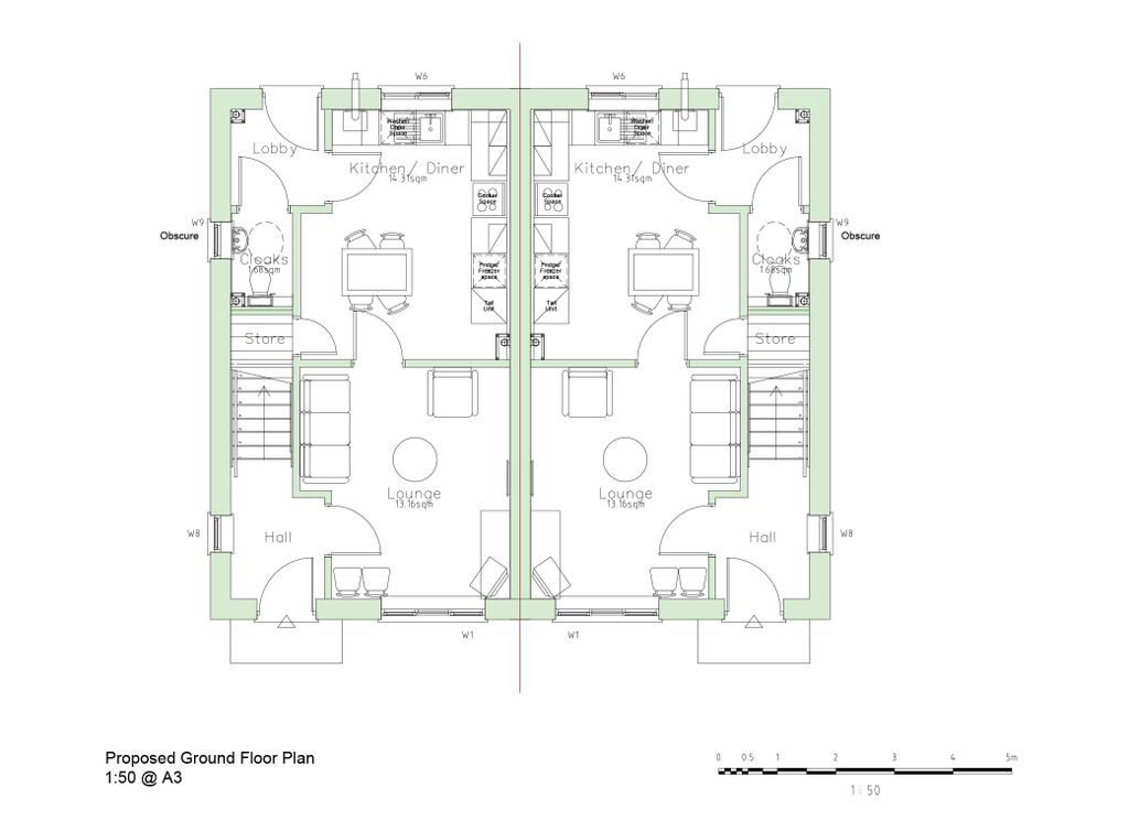
Permission for a pair of semi-detached houses
3 bedrooms
Driveway parking
South facing gardens
Close to amenities
Countryside views
A development site with planning permission under planning reference number PA25/00920 and no cil payment liability. Consent has been granted for a pair of semi-detached, 3 bedroom houses with driveway parking and far reaching countryside views. Situated in a small enclave of new build dwellings and conveniently positioned to make the most of the nearby town’s vast array of amenities.
Mortgage calculator
Monthly repayment
£700 per month
Whole of market comparison
70+ lenders and 10,000+ products
The monthly repayments provided are estimates and should be used as a guide only. The actual amount you can borrow will depend on your personal financial situation and subject to a full application. For a more precise estimate, please use the Mojo mortgage calculator. Your home or property may be repossessed if you do not keep up repayments on your mortgage.



.png)