Offers in region of
£775,000
3 bed semi-detached house for saleLayters Avenue, Chalfont St Peter, Gerrards Cross SL9
3 beds
2 baths
2 receptions
EPC Rating: D
Freehold
About this property
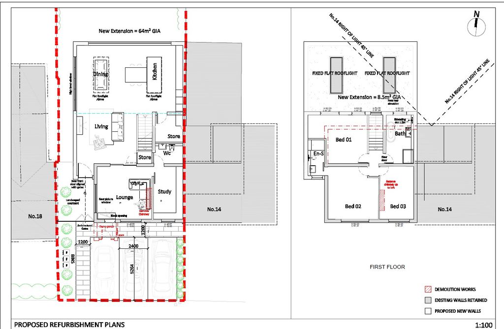
Exceptional Redevelopment Opportunity with Planning Permisson and Building Regulations Approved.
An outstanding opportunity for developers, investors, or ambitious homeowners—this property property benefits from full planning permission, with all approvals in place and ready for immediate construction with full plans for substantial extensions and remarkable scope for large-scale redevelopment. Set on an expansive plot, it provides the perfect canvas for creating a high-value, bespoke home.
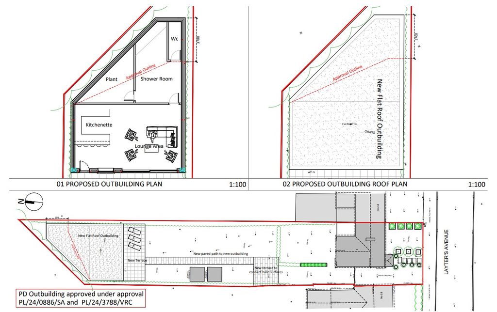
The existing structure offers a strong starting point, with approved proposals allowing for a significant increase in internal space and the creation of a modern, high-specification residence. In addition, the generous garden presents the potential to build a 1,000 sq ft annexe at the rear of the plot, ideal for guest accommodation or multigenerational living.
Key Features:
1. Extensive plot with excellent redevelopment potential
2. Approved plans for major extensions to the main property
3. Potential to build a 1,000 sq ft g outbuilding, providing potential use as a separate self-contained annexe, with approved planning.
4. Opportunity to create a high-value, custom home
5. Desirable location with strong buyer demand
6. Ideal for developers, builders, or visionary homeowners
Planning reference - pl/24/3788/vrc & pl/25/0902/fa
Layters Avenue is extremely convenient for access to local amenities and transport links. Gerrards Cross is 1 mile from the property and provides a wider range of shopping facilities and Mainline station with fast trains into London Marylebone in approximately 22 minutes. Central London is easily accessible by road via the M40 (J1A) and M25 (J16) plus access to Heathrow and Gatwick Airports. Should you wish to access the tube network directly, Amersham (approx. 6.5 miles) and Chalfont & Latimer (within 6 miles) Tube stations are all easily accessible.
Buckinghamshire is renowned for its education system, with an excellent choice of state and independent schools, including Dr Challoners High School for Girls and Dr Challoners Grammar School for Boys. Chalfont St Peter Infant School, Church of England Academy and Community College are all nearby.
The area is also well served for sporting facilities with Chalfont Leisure Centre just minutes away, The Buckinghamshire, Gerrards Cross and Denham Golf Courses within the area. Lawn tennis is available at Gerrards Cross and Beaconsfield.
An outstanding opportunity for developers, investors, or ambitious homeowners—this property property benefits from full planning permission, with all approvals in place and ready for immediate construction with full plans for substantial extensions and remarkable scope for large-scale redevelopment. Set on an expansive plot, it provides the perfect canvas for creating a high-value, bespoke home.
The existing structure offers a strong starting point, with approved proposals allowing for a significant increase in internal space and the creation of a modern, high-specification residence. In addition, the generous garden presents the potential to build a 1,000 sq ft annexe at the rear of the plot, ideal for guest accommodation or multigenerational living.
Key Features:
1. Extensive plot with excellent redevelopment potential
2. Approved plans for major extensions to the main property
3. Potential to build a 1,000 sq ft g outbuilding, providing potential use as a separate self-contained annexe, with approved planning.
4. Opportunity to create a high-value, custom home
5. Desirable location with strong buyer demand
6. Ideal for developers, builders, or visionary homeowners
Planning reference - pl/24/3788/vrc & pl/25/0902/fa
Layters Avenue is extremely convenient for access to local amenities and transport links. Gerrards Cross is 1 mile from the property and provides a wider range of shopping facilities and Mainline station with fast trains into London Marylebone in approximately 22 minutes. Central London is easily accessible by road via the M40 (J1A) and M25 (J16) plus access to Heathrow and Gatwick Airports. Should you wish to access the tube network directly, Amersham (approx. 6.5 miles) and Chalfont & Latimer (within 6 miles) Tube stations are all easily accessible.
Buckinghamshire is renowned for its education system, with an excellent choice of state and independent schools, including Dr Challoners High School for Girls and Dr Challoners Grammar School for Boys. Chalfont St Peter Infant School, Church of England Academy and Community College are all nearby.
The area is also well served for sporting facilities with Chalfont Leisure Centre just minutes away, The Buckinghamshire, Gerrards Cross and Denham Golf Courses within the area. Lawn tennis is available at Gerrards Cross and Beaconsfield.
Mortgage calculator
Monthly repayment
£3,876 per month
Whole of market comparison
70+ lenders and 10,000+ products
The monthly repayments provided are estimates and should be used as a guide only. The actual amount you can borrow will depend on your personal financial situation and subject to a full application. For a more precise estimate, please use the Mojo mortgage calculator. Your home or property may be repossessed if you do not keep up repayments on your mortgage.



.png)