Guide price
£275,000
Land for saleWest Coker Road, Yeovil BA22
Freehold
About this property
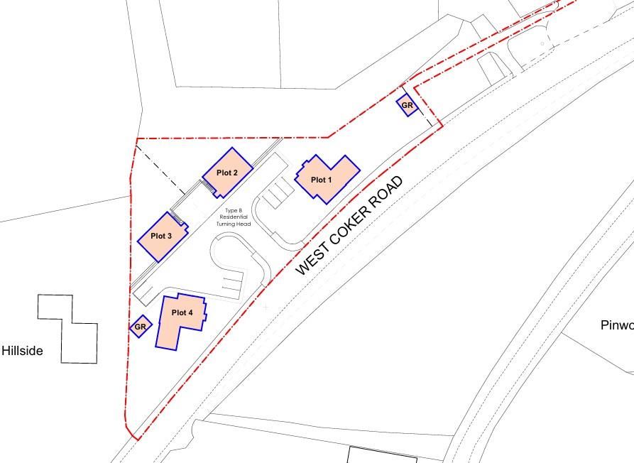
Planning Permission for 4 Detached Houses of 7,689sqft (714 sq m)
Residential Development Site of 0.83 Acres
Convenient Location
Planning Ref: 20/02304/rem & 17/03394/out
A residential development site of 0.83 acres/0.338 hectares) with planning for 4 (four) detached houses (714m2 / 7,689 sqft).
The Site
A residential development site of 0.83 acres/0.338 hectares with planning for 4 (four) detached houses of 7,689sqft (714 sq m) in total (gia).
The site stands proudly adjacent to the A30, close to The White Post bp Garage, incorporating Marks & Spencer's convenience store and food shop, and adjacent to a car sales area.
Location
Located on the outskirts of Yeovil town, adjacent to the A30 (between West Coker and Yeovil) providing very good road and rail links.
Current Planning
20/02304/rem - Application for reserved matters following approval of 17/03394/out for the erection of four residential dwellings with associated access and parking.
Directions
What3words:
///hammocks.received.senders
We recommend viewers park at the petrol station/M&S food store and walk up to the site.
Solicitors
Lola Skuse
Associate
Direct Mobile Ashfords llp
Princess Court 23 Princess Street Plymouth PL1 2EX
The Site
A residential development site of 0.83 acres/0.338 hectares with planning for 4 (four) detached houses of 7,689sqft (714 sq m) in total (gia).
The site stands proudly adjacent to the A30, close to The White Post bp Garage, incorporating Marks & Spencer's convenience store and food shop, and adjacent to a car sales area.
Location
Located on the outskirts of Yeovil town, adjacent to the A30 (between West Coker and Yeovil) providing very good road and rail links.
Current Planning
20/02304/rem - Application for reserved matters following approval of 17/03394/out for the erection of four residential dwellings with associated access and parking.
Directions
What3words:
///hammocks.received.senders
We recommend viewers park at the petrol station/M&S food store and walk up to the site.
Solicitors
Lola Skuse
Associate
Direct Mobile Ashfords llp
Princess Court 23 Princess Street Plymouth PL1 2EX
Mortgage calculator
Monthly repayment
£1,375 per month
Whole of market comparison
70+ lenders and 10,000+ products
The monthly repayments provided are estimates and should be used as a guide only. The actual amount you can borrow will depend on your personal financial situation and subject to a full application. For a more precise estimate, please use the Mojo mortgage calculator. Your home or property may be repossessed if you do not keep up repayments on your mortgage.



.png)