Offers in region of
£115,000
Land for saleKings Road, Llandybie, Ammanford SA18
EPC Rating: D
Freehold
About this property
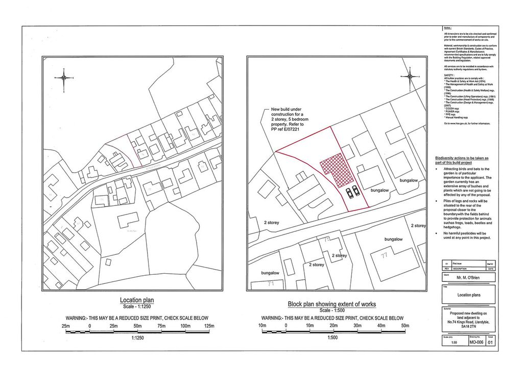
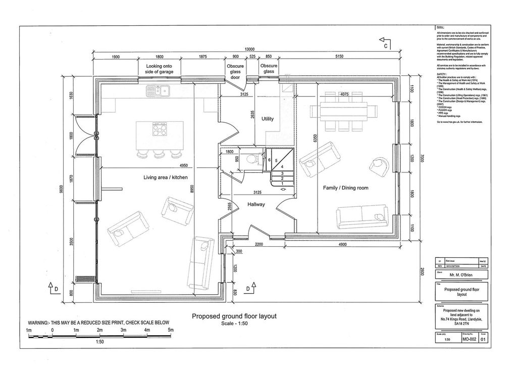
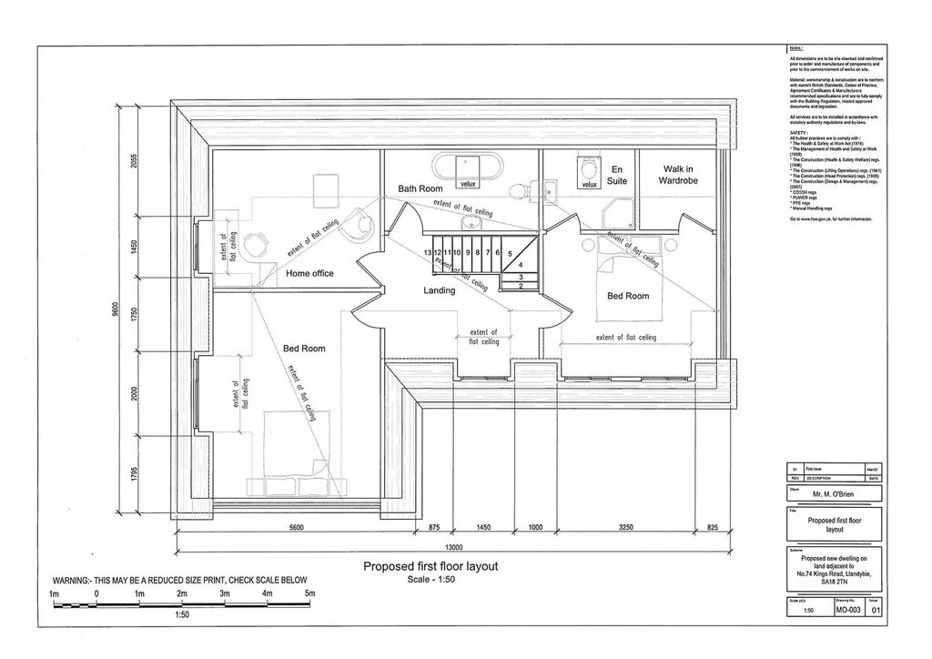
Building Plot
Full Planning Permission Granted
Planning Ref: Pl/03847
Sought After Location
Dormer Bungalow
An opportunity to purchase A building plot in A sought after location.
A freehold building plot with full planning permission granted on 31/8/2022, planning reference pl/03847 for a detached dormer dwelling situated in a sought after location on Kings Road in the village of Llandybie. There are services available subject to the necessary connection charges.
The village of Llandybie offers good basic amenities such as a Co-op, bakery, hairdressers and beauty salon, public houses, restaurants, places of worship, public transport, primary school and more. The main shopping and leisure facilities are located at Ammanford town centre. Access to the M4 motorway is via junction 49 at Pont Abraham.
Building Plot:
A building plot located in a sought after location on Kings Road in the village of Llandybie.
Planning Permission:
Full planning permission has been granted for a detached dormer bungalow granted on 31/8/2022, planning reference pl/03847.
Services:
We are advised mains services are available subject to the necessary connection charges. Prospective purchasers should make their own enquires regarding the costs involved.
Tenure:
Freehold.
Council Tax:
N/A
Broadband/Mobile Phone Coverage:
There is basic broadband and mobile phone coverage in the area.
Disclaimer:
Every care has been taken with the preparation of particulars however please note room dimensions and floor plan's should not be relied upon and any appliances or services listed on these details have not been tested.
A freehold building plot with full planning permission granted on 31/8/2022, planning reference pl/03847 for a detached dormer dwelling situated in a sought after location on Kings Road in the village of Llandybie. There are services available subject to the necessary connection charges.
The village of Llandybie offers good basic amenities such as a Co-op, bakery, hairdressers and beauty salon, public houses, restaurants, places of worship, public transport, primary school and more. The main shopping and leisure facilities are located at Ammanford town centre. Access to the M4 motorway is via junction 49 at Pont Abraham.
Building Plot:
A building plot located in a sought after location on Kings Road in the village of Llandybie.
Planning Permission:
Full planning permission has been granted for a detached dormer bungalow granted on 31/8/2022, planning reference pl/03847.
Services:
We are advised mains services are available subject to the necessary connection charges. Prospective purchasers should make their own enquires regarding the costs involved.
Tenure:
Freehold.
Council Tax:
N/A
Broadband/Mobile Phone Coverage:
There is basic broadband and mobile phone coverage in the area.
Disclaimer:
Every care has been taken with the preparation of particulars however please note room dimensions and floor plan's should not be relied upon and any appliances or services listed on these details have not been tested.
Mortgage calculator
Monthly repayment
£575 per month
Whole of market comparison
70+ lenders and 10,000+ products
The monthly repayments provided are estimates and should be used as a guide only. The actual amount you can borrow will depend on your personal financial situation and subject to a full application. For a more precise estimate, please use the Mojo mortgage calculator. Your home or property may be repossessed if you do not keep up repayments on your mortgage.



.png)