Guide price
£200,000
Land for saleBrier Lane, Havercroft WF4
Just added
Freehold
About this property
0.25 acre plot of land
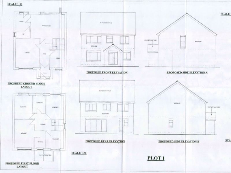
Planning granted for 3 detached houses
Application No 24/00956
Decision issued 10th October 2025
Freehold site
Proposal for 3No 4 bed properties
All with garage and driveway access
Popular village location
Direct access onto Willow Drive
For all enquiries contact fsl Estate Agents
0.25 acre freehold site with outline planning granted for 3 detached houses in popular village location
Details
Offered for sale is this 0.25 acre parcel of land with the benefit of outline planning permission for the proposed construction of three detached houses, each having 4 bedrooms, garage, driveway and shared access. For further details contact FSL Estate Agents on .
Location
The land is located adjacent to the junction of Brier Lane and Willow Drive within Havercroft, a popular village to the South East of Wakefield.
Tenure
The plot offered for sale includes the freehold land registered under title number WYK845377 and part of the freehold land registered under title number WYK880106.
Planning Consent
Outline planning consent has been granted 10th October for the residential development of 3 No dwellings under application number 24/00956/out. Full details of the application and particulars of the decision can be viewed and downloaded from The Wakefield Council Planning Portal.
Viewings
For further information and to arrange a viewing call our friendly team on .
Important Notice
These particulars are intended only as general guidance. The Company therefore gives notice that none of the material issued or visual depictions of any kind made on behalf of the Company can be relied upon as accurately describing any of the Specified Matters prescribed by any Order made under the Property Misdescriptions Act 1991. Nor do they constitute a contract, part of a contract or a warranty.
Details
Offered for sale is this 0.25 acre parcel of land with the benefit of outline planning permission for the proposed construction of three detached houses, each having 4 bedrooms, garage, driveway and shared access. For further details contact FSL Estate Agents on .
Location
The land is located adjacent to the junction of Brier Lane and Willow Drive within Havercroft, a popular village to the South East of Wakefield.
Tenure
The plot offered for sale includes the freehold land registered under title number WYK845377 and part of the freehold land registered under title number WYK880106.
Planning Consent
Outline planning consent has been granted 10th October for the residential development of 3 No dwellings under application number 24/00956/out. Full details of the application and particulars of the decision can be viewed and downloaded from The Wakefield Council Planning Portal.
Viewings
For further information and to arrange a viewing call our friendly team on .
Important Notice
These particulars are intended only as general guidance. The Company therefore gives notice that none of the material issued or visual depictions of any kind made on behalf of the Company can be relied upon as accurately describing any of the Specified Matters prescribed by any Order made under the Property Misdescriptions Act 1991. Nor do they constitute a contract, part of a contract or a warranty.
Mortgage calculator
Monthly repayment
£1,000 per month
Whole of market comparison
70+ lenders and 10,000+ products
The monthly repayments provided are estimates and should be used as a guide only. The actual amount you can borrow will depend on your personal financial situation and subject to a full application. For a more precise estimate, please use the Mojo mortgage calculator. Your home or property may be repossessed if you do not keep up repayments on your mortgage.



.png)