Guide price
£70,000
Land for salePlot Of Land, Lowestoft Road, Carlton Colville NR33
1 bed
1 bath
1 reception
Chain free
Freehold
About this property
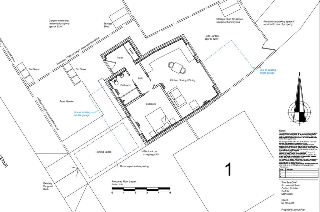
** plot of land ** for sale
Planning permission granted
Plans for a 1 bedroom bungalow with parking
& Front and rear gardens
Popular Carlton Colville location
Close to local amenities
Great investment opportunity
Chain free
This plot offers a fantastic development opportunity with planning permission already granted for a 1 bedroom detached bungalow with parking, front and rear gardens. This means you have the chance to create your dream home or even consider it as an investment opportunity!
Located in a chain-free situation, this plot provides you with the flexibility to make your move hassle-free. Don't miss out on the chance to transform this plot into something truly special.
Location
This plot of land is situated in the desirable area of Carlton Colville, prominently positioned at the junction of Lowestoft Road and Shaw Avenue. Carlton Colville lies on the edge of Lowestoft and Oulton Broad, one of the main gateways to the picturesque Norfolk Broads. The location benefits from a wide range of local amenities, including schools and supermarkets, while also offering convenient access to Lowestoft town centre. Lowestoft itself provides a central railway station and an extensive selection of further amenities.
Summary
This plot presents an excellent development opportunity, with planning permission already approved for a one-bedroom detached bungalow, complete with parking and both front and rear gardens. It offers the perfect chance to create a bespoke home tailored to your own requirements, or to pursue a rewarding investment opportunity.
Offered chain-free, the plot allows for a straightforward and hassle-free purchase. An exciting opportunity to develop something truly special in a desirable location.
Agent Note
For more information, or to book in for a viewing, please call the sales team today on .
Located in a chain-free situation, this plot provides you with the flexibility to make your move hassle-free. Don't miss out on the chance to transform this plot into something truly special.
Location
This plot of land is situated in the desirable area of Carlton Colville, prominently positioned at the junction of Lowestoft Road and Shaw Avenue. Carlton Colville lies on the edge of Lowestoft and Oulton Broad, one of the main gateways to the picturesque Norfolk Broads. The location benefits from a wide range of local amenities, including schools and supermarkets, while also offering convenient access to Lowestoft town centre. Lowestoft itself provides a central railway station and an extensive selection of further amenities.
Summary
This plot presents an excellent development opportunity, with planning permission already approved for a one-bedroom detached bungalow, complete with parking and both front and rear gardens. It offers the perfect chance to create a bespoke home tailored to your own requirements, or to pursue a rewarding investment opportunity.
Offered chain-free, the plot allows for a straightforward and hassle-free purchase. An exciting opportunity to develop something truly special in a desirable location.
Agent Note
For more information, or to book in for a viewing, please call the sales team today on .
Mortgage calculator
Monthly repayment
£350 per month
Whole of market comparison
70+ lenders and 10,000+ products
The monthly repayments provided are estimates and should be used as a guide only. The actual amount you can borrow will depend on your personal financial situation and subject to a full application. For a more precise estimate, please use the Mojo mortgage calculator. Your home or property may be repossessed if you do not keep up repayments on your mortgage.



.png)