Offers in region of
£105,000
1 bed terraced house for saleBurnley Road, Rossendale BB4
1 bed
1 bath
1 reception
EPC Rating: C
Chain free
About this property
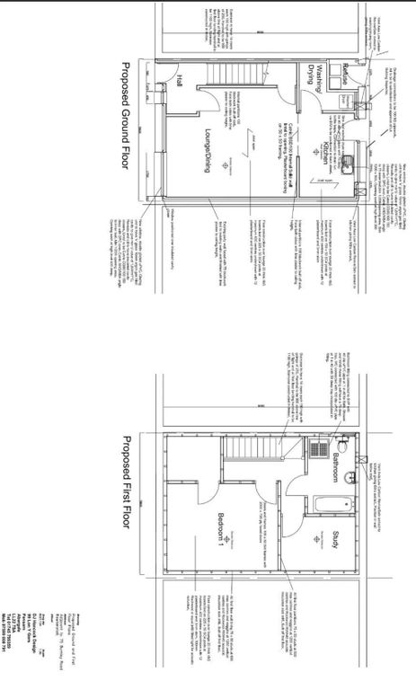
Property With Development Potential
Available Immediately
Tenure: Leasehold
🏡 Burnley Road, Rawtenstall – Redevelopment Opportunity
An excellent redevelopment opportunity located on Burnley Road, within easy reach of Rawtenstall town centre, popular local schools, and the convenient X43 bus route offering direct links to Manchester.
This property is awaiting redevelopment and already benefits from approved planning permission to convert into a one bedroom dwelling, offering great potential for investors, developers, or those seeking a bespoke home project.
The site offers scope to redevelop and add significant value, making it an ideal purchase for cash buyers looking for their next project in this sought-after area of the Rossendale Valley.
Offered to the market chain free and available for cash buyers only.
Key Features
Planning permission granted for conversion to a one-bedroom dwelling
Convenient location close to Rawtenstall centre
On the X43 bus route with direct access to Manchester
Within easy reach of popular local schools and amenities
Excellent potential to add value through redevelopment
Chain free sale
Cash buyers only
EPC Rating: C
🏡 Burnley Road, Rawtenstall – Redevelopment Opportunity
An excellent redevelopment opportunity located on Burnley Road, within easy reach of Rawtenstall town centre, popular local schools, and the convenient X43 bus route offering direct links to Manchester.
This property is awaiting redevelopment and already benefits from approved planning permission to convert into a one bedroom dwelling, offering great potential for investors, developers, or those seeking a bespoke home project.
The site offers scope to redevelop and add significant value, making it an ideal purchase for cash buyers looking for their next project in this sought-after area of the Rossendale Valley.
Offered to the market chain free and available for cash buyers only.
Key Features
Planning permission granted for conversion to a one-bedroom dwelling
Convenient location close to Rawtenstall centre
On the X43 bus route with direct access to Manchester
Within easy reach of popular local schools and amenities
Excellent potential to add value through redevelopment
Chain free sale
Cash buyers only
EPC Rating: C
Mortgage calculator
Monthly repayment
£525 per month
Whole of market comparison
70+ lenders and 10,000+ products
The monthly repayments provided are estimates and should be used as a guide only. The actual amount you can borrow will depend on your personal financial situation and subject to a full application. For a more precise estimate, please use the Mojo mortgage calculator. Your home or property may be repossessed if you do not keep up repayments on your mortgage.



.png)