Guide price
£2,000,000
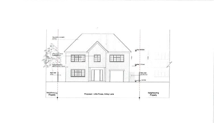
Land for saleArkley Lane, Arkley, Hertfordshire EN5
EPC Rating: C
About this property
Development Opportunity
Planning Permission Granted
To Comprise:
6 Bedrooms
5 Bathrooms
3 Receptions
Plus Outhouse
Tranquil Setting
Further Options Available
** development opportunity with planning permission for A new detached house plus outhouse **
Planning permission has been granted for a new house incorporating a lift of circa 3,773sqft plus an outhouse. There is also a second option to create a new house of circa 6,244sqft with a basement.
The site is located in the prestigious and sought-after North-London area of Arkley in a private, idyllic and peaceful country lane, (a no-through road), central London can be reached within thirty minutes by car. A number of nearby train stations include Totteridge, Mill Hill and Barnet, also within 5 miles of both the M1 and M25 motorways providing easy access to all of London's airports.
Schools including Haberdasher's Aske's, Mill Hill, Dame Alice, Aldenham, Belmont, Lochinver and Queen Elizabeth's provide top class education in the area. Many schools operate their coach service through Arkley.
Local Authority: Barnet
Band: G
Tenure: Freehold
Planning permission has been granted for a new house incorporating a lift of circa 3,773sqft plus an outhouse. There is also a second option to create a new house of circa 6,244sqft with a basement.
The site is located in the prestigious and sought-after North-London area of Arkley in a private, idyllic and peaceful country lane, (a no-through road), central London can be reached within thirty minutes by car. A number of nearby train stations include Totteridge, Mill Hill and Barnet, also within 5 miles of both the M1 and M25 motorways providing easy access to all of London's airports.
Schools including Haberdasher's Aske's, Mill Hill, Dame Alice, Aldenham, Belmont, Lochinver and Queen Elizabeth's provide top class education in the area. Many schools operate their coach service through Arkley.
Local Authority: Barnet
Band: G
Tenure: Freehold
Mortgage calculator
Monthly repayment
£10,004 per month
Whole of market comparison
70+ lenders and 10,000+ products
The monthly repayments provided are estimates and should be used as a guide only. The actual amount you can borrow will depend on your personal financial situation and subject to a full application. For a more precise estimate, please use the Mojo mortgage calculator. Your home or property may be repossessed if you do not keep up repayments on your mortgage.



.png)