£45,000
Land for saleRobert Street, Milford Haven, Pembrokeshire SA73
EPC Rating: D
About this property
Building opportunity for sale in Milford Haven town centre
Planning permission conditionally approved: April 2025
Application reference: 24/1188/pa
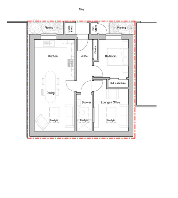
Development plot with permission for a newly built, single-storey, one-bedroom dwelling
Bungalow-style design
Proposed accommodation includes:
Spacious open-plan kitchen and dining area
Separate lounge (can be used as a second reception room or study)
Family shower room
Generous internal and external storage (as shown on plans)
Application Reference Number : 24/1188/pa
We are pleased to offer an excellent opportunity to purchase a development plot with condition planning permission for a newly built single-storey, one-bedroom dwelling, ideally located in Milford Haven town centre. Planning permission was approved in April 2025.
The approved plans propose a well-designed bungalow-style home comprising a spacious open-plan kitchen and dining area, along with a separate lounge that could also be utilised as a second reception room or study. The property also benefits from a family shower room, generous internal and external storage as shown on the plans, and off-road parking spaces to the front. With planning there is a large roof space which has been designed to allow for a further two bedrooms.
This is an ideal town-centre opportunity for anyone seeking a low-maintenance, single-level home in a convenient and accessible location.
For further information or to arrange a viewing, please contact us today on .
Mortgage calculator
£225 per month
70+ lenders and 10,000+ products
The monthly repayments provided are estimates and should be used as a guide only. The actual amount you can borrow will depend on your personal financial situation and subject to a full application. For a more precise estimate, please use the Mojo mortgage calculator. Your home or property may be repossessed if you do not keep up repayments on your mortgage.



.png)